Найти в Дзене
Александра Туше

Как выбрали планировку и квартиру в новостройке ПИК

В «меню» застройщика были студии 19,7 / 23 / 25 кв. метров. Жаль, что только в 2024 году и только в Москве приняли решение больше не строить меньше 28кв.м. Для полноценной жизни в таких маленьких метрах элементарно не хватает воздуха и комнат) Но для любого дизайнер – это вызов. Часто можно услышать, как мы говорим «Обожаю работать с маленькими пространствами». Это увлекательная задачка, вместить все и даже больше! Но все же, лучше больше, чем меньше.
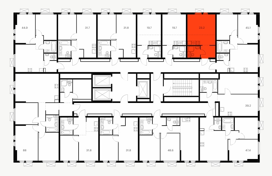
📌Мы могли взять 19 квадратов, сэкономить почти миллион и подписаться на неликвид. Это не квартира – это номер в гостинице. Максимум, что с ней можно сделать – это сдавать посуточно, и их должно быть много. На фото от застройщика видно, что из мебели может там поместиться. Я указала примерные размеры стен в метрах, для вашего понимания. 📌Идеальный вариант 25 квадратов. Но в нашем, выбранном доме, к сожалению такого размера, не было. А ради 2ух квадратов ждать еще год, но в другом доме – было не разумно. 📌Мы выбрали 23 квадрата. Ком
Оглавление

В «меню» застройщика были студии 19,7 / 23 / 25 кв. метров. Жаль, что только в 2024 году и только в Москве приняли решение больше не строить меньше 28кв.м.

Для полноценной жизни в таких маленьких метрах элементарно не хватает воздуха и комнат) Но для любого дизайнер – это вызов. Часто можно услышать, как мы говорим «Обожаю работать с маленькими пространствами». Это увлекательная задачка, вместить все и даже больше!

Но все же, лучше больше, чем меньше.
📌Мы могли взять 19 квадратов, сэкономить почти миллион и подписаться на неликвид. Это не квартира – это номер в гостинице. Максимум, что с ней можно сделать – это сдавать посуточно, и их должно быть много.

На фото от застройщика видно, что из мебели может там поместиться. Я указала примерные размеры стен в метрах, для вашего понимания.

-2

📌Идеальный вариант 25 квадратов. Но в нашем, выбранном доме, к сожалению такого размера, не было. А ради 2ух квадратов ждать еще год, но в другом доме – было не разумно.

-3

📌Мы выбрали 23 квадрата. Компромисс. Понимая, что может туда уместится, и как вписать целую спальную комнату внутрь. За плечами дача в 23 квадрата, построенная своими руками с 4 изолированными помещениями.

Посмотрим на фото с тем, что предлагает застройщик.

-4

С виду – опять гостиничный номер. Никакого зонирования, все просматривается с порога входной двери. Такая планировка сплошь и рядом. Тут, как минимум скучно, а как максимум морально тяжело жить.

Для меня, как дизайнера, в первую очередь всегда важна планировка пространства. Только на втором плане, может выступать дизайн, и на последнем декор.

Еще никогда не бывав в реальности в помещении, я начала рассчитывать, что и как можно поставить, чтобы визуально разделить помещение.

  1. Со входа не должно быть видно конца квартиры.
  2. Не должно быть прохода до конца, как в вагоне поезда.
  3. Уйти от стандартных расположений мебели и техники, как у всех. Важна отстройка от конкурентов для сдачи и дальнейшей продажи.

У меня получилось 3 варианта расположения. Покажу 2 из них. (1 в заначке на будущее, такого никогда еще не видела, чтобы делали, но сама пока не решилась, чтобы не усложнять перенос мокрой точки, и не ставить насос)

Расчёт был на то, что перемычка между окнами будет ровно посередине комнаты. Тогда квартира делилась бы пополам, и получались идеальные комнаты с ровной стеной посередине. Но на приемке, первым делом измерив расстояние, оказалось, что перемычка заканчивается на 190см от стены, и ровного квадрата, чтобы влезла кровать в 2 метра – ну никак не получается.

1 вариант

Был с кроватью, поставленной боком к стене и с ровной перегородкой между окнами. Мне он не нравился. Меня как будто вынудила эта перегородка плясать от нее. Сразу нарушалась идея красивого вида, при заходе в спальню. Кровать бы упиралась в окно. Ей мешал бы подоконник, шторы не закрыть красиво, да и просто это все смотрелось нелепо.

-5


2 вариант

Это вызов строителю – перфекционисту ))) Ну и что, что стенка будет выступать вперед от оконной перемычки? У меня же не капитальная стена из блоков. А легко демонтируемая деревянная перегородка. (Кстати, это важно, потому при продаже не должно быть капитальных элементов, которые намудрили дизайнеры – это очень сказывается на цену)

-6

Я обязательно напишу подробный обзор нашей итоговой планировки. Почему все именно так, а не иначе. А для тех, кому понравится финальный результат – я сделаю готовый дизайн проект со сметой и размерами, который можно будет приобрести и повторить один в один самостоятельно. Либо обратиться ко мне за услугой полной упаковки квартиры под ключ, без вашего участия.

В следующей статье – расскажу про особенности квартир ПИК, которые нужно учитывать при выборе, и о которых не знают люди ни разу не покупавших у них недвижимость.

-7