Найти в Дзене

Четыре одноэтажных дома 100 - 110 м2, - планировки и подборка проектов.

В прошлых постах рассматривали проекты домов 70-80 м2, 80-90 м2 и 90-100 м2, теперь ещё чуть увеличим рассматриваемый метраж. Сегодня представляем вам четыре проекта. Дом, площадь которого перевалила за сотню метров, из сегмента жилья "эконом" потихоньку выбирается, и движется к сегменту "бизнес", но ещё не достиг его. Маленько застрял посередине. Комфортно, красиво, без излишеств, но всё сугубо практично. Изучая планировки, обратите внимание, что все дома - с открытым планом без внутренних капитальных стен, положение перегородок можно немного менять. !! Все представленные проекты - готовые, заказать можно на нашем основном сайте. Ссылки на сайт в конце статьи и в статьях проектов. !! Простой дом 12х12 с вариантами планировки (листайте галерею), 2-4 спальни ✅ Проект дома готовый, предоставляется в кратчайший срок. Стоимость и порядок заказа чертежей - на основном сайте. Планировка одноэтажного дома с 2-3 спальнями, террасой и сауной, с вариантами планировки (листайте галерею) ✅ Проект
Оглавление

В прошлых постах рассматривали проекты домов 70-80 м2, 80-90 м2 и 90-100 м2, теперь ещё чуть увеличим рассматриваемый метраж. Сегодня представляем вам четыре проекта.

Дом, площадь которого перевалила за сотню метров, из сегмента жилья "эконом" потихоньку выбирается, и движется к сегменту "бизнес", но ещё не достиг его. Маленько застрял посередине. Комфортно, красиво, без излишеств, но всё сугубо практично.

Изучая планировки, обратите внимание, что все дома - с открытым планом без внутренних капитальных стен, положение перегородок можно немного менять.

!! Все представленные проекты - готовые, заказать можно на нашем основном сайте. Ссылки на сайт в конце статьи и в статьях проектов. !!

1. Проект дома КРАСНОДАР 103 м2

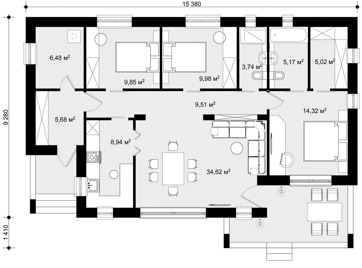
Простой дом 12х12 с вариантами планировки (листайте галерею), 2-4 спальни

Проект дома готовый, предоставляется в кратчайший срок. Стоимость и порядок заказа чертежей - на основном сайте.

2. МАРЦИО 104 м2

Планировка одноэтажного дома с 2-3 спальнями, террасой и сауной, с вариантами планировки (листайте галерею)

Проект дома готовый, предоставляется в кратчайший срок. Стоимость и порядок заказа чертежей - на основном сайте.

3. Проект дома ЕНИСЕЙ 105 м2

Планировка одноэтажного деревянного дома 13х15 из бруса, с 3 спальнями и большой террасой.

-3

Проект дома готовый, предоставляется в кратчайший срок. Стоимость и порядок заказа чертежей - на основном сайте

4. Проект дома АДРИАТИКА-2 105 м2

Планировка практичного квадратного дома 12 х 12 на 3 спальни, с колоннами в гостиной (2 варианта плана в галерее)

Проект дома готовый, предоставляется в кратчайший срок. Стоимость и порядок заказа чертежей - на основном сайте

ПОДБОРКА СТАТЕЙ О ПРОЕКТАХ ДОМОВ 100 - 110 м. кв.

1. КРАСНОДАР 103 м2 - проект дома 12 х 12 с вариантами планировки

КРАСНОДАР 103 м2 - дом 12х12 с вариантами планировки
Инваполис - проекты рациональных домов 25 марта 2021

2. МАРЦИО 104 м2 - проект одноэтажного дома с 2 спальнями и сауной

МАРЦИО 104 м2 - проект одноэтажного дома с 2 спальнями, террасой и сауной
Инваполис - проекты рациональных домов 10 марта 2022

3. ЕНИСЕЙ 105 м2- проект одноэтажного дома 13 х 15 из бруса, с 3 спальнями

ЕНИСЕЙ - проект одноэтажного деревянного дома 13х15 с 3 спальнями и террасой, из бруса
Инваполис - проекты рациональных домов 14 января 2022

4. АДРИАТИКА-2 105 м2 - проект квадратного дома 12х12 с колоннами

Квадратиш практиш гут! - проект практичного дома 105 м2 на 3 спальни
Инваполис - проекты рациональных домов 22 января 2022
Напоминаем, что на основном сайте 📖 каталог из более чем 200 готовых проектов домов, половина из них - одноэтажные.

► Чтобы не пропускать наши публикации, лайк 👍 и подписывайтесь на канал

► Также в Телеграмм публикуем анонсы новых статей и короткие обзоры