Найти в Дзене

Пять одноэтажников 90 - 100 м2 - планировки и подборка проектов домов

В прошлых постах рассматривали проекты домов 70-80 м2 и 80-90 м2, теперь пять проектов домов ещё чуть больше. Дом площадью до 100 кв м от ИНВАПОЛИС вполне может быть полноценным жильём, - дома капитальные, они удобны и могут послужить заменой городской трёхкомнатной квартире. Здесь, как обычно, показываем только планировки домов. Все проекты домов - с открытым планом без внутренних несущих стен, положение перегородок можно менять. Подробности заинтересовавшего вас проекта можно изучить, перейдя по ссылке на соответствующую статью. !! Все представленные тут проекты - готовые. Заказать документацию на строительство можно на нашем основном сайте. Ссылки на сайт в конце статьи и в статьях проектов. !! 1. ДОЛИНА 90 м2 - проект одноэтажного дома 10х11 с двумя спальнями, большой ванной, котельной и террасой 2. БРИЗ 92 м2 - проект одноэтажного дома 9х14 с двумя спальнями (листайте галерею) 3. АРМАВИР 97 м2 - проект одноэтажного дома 10х12, может быть с 2, 3, или 4 спальнями (листайте галерею)
Оглавление

В прошлых постах рассматривали проекты домов 70-80 м2 и 80-90 м2, теперь пять проектов домов ещё чуть больше.

Дом площадью до 100 кв м от ИНВАПОЛИС вполне может быть полноценным жильём, - дома капитальные, они удобны и могут послужить заменой городской трёхкомнатной квартире.

Здесь, как обычно, показываем только планировки домов. Все проекты домов - с открытым планом без внутренних несущих стен, положение перегородок можно менять.

Подробности заинтересовавшего вас проекта можно изучить, перейдя по ссылке на соответствующую статью.

!! Все представленные тут проекты - готовые. Заказать документацию на строительство можно на нашем основном сайте. Ссылки на сайт в конце статьи и в статьях проектов. !!

ПЛАНИРОВКИ ПЯТИ ДОМОВ 90 - 100 м2

1. ДОЛИНА 90 м2 - проект одноэтажного дома 10х11 с двумя спальнями, большой ванной, котельной и террасой

2. БРИЗ 92 м2 - проект одноэтажного дома 9х14 с двумя спальнями (листайте галерею)

3. АРМАВИР 97 м2 - проект одноэтажного дома 10х12, может быть с 2, 3, или 4 спальнями (листайте галерею)

4. АДРИАТИКА 100 м2 - одноэтажный дом 12х12 в классическом стиле, с 3 спальнями.

-4

5. КРЫМ 101 м2 - проект одноэтажного дома 10х12 с террасой,с 3 спальнями, панорамным окном в гостиной

-5

ПОДБОРКА ПРОЕКТОВ ДОМОВ 90 - 100 м2

!! Все представленные тут проекты - готовые. Заказать документацию на строительство можно на нашем основном сайте. Ссылки на сайт в конце статьи и в статьях проектов. !!

1. ДОЛИНА 90 м2 - проект одноэтажного дома 10 х 11 с двумя спальнями, большой ванной, котельной и террасой

ДОЛИНА 90 м2 - проект одноэтажного дома 10х11 с двумя спальнями, большой ванной, котельной и террасой
Инваполис - проекты рациональных домов 19 января 2023

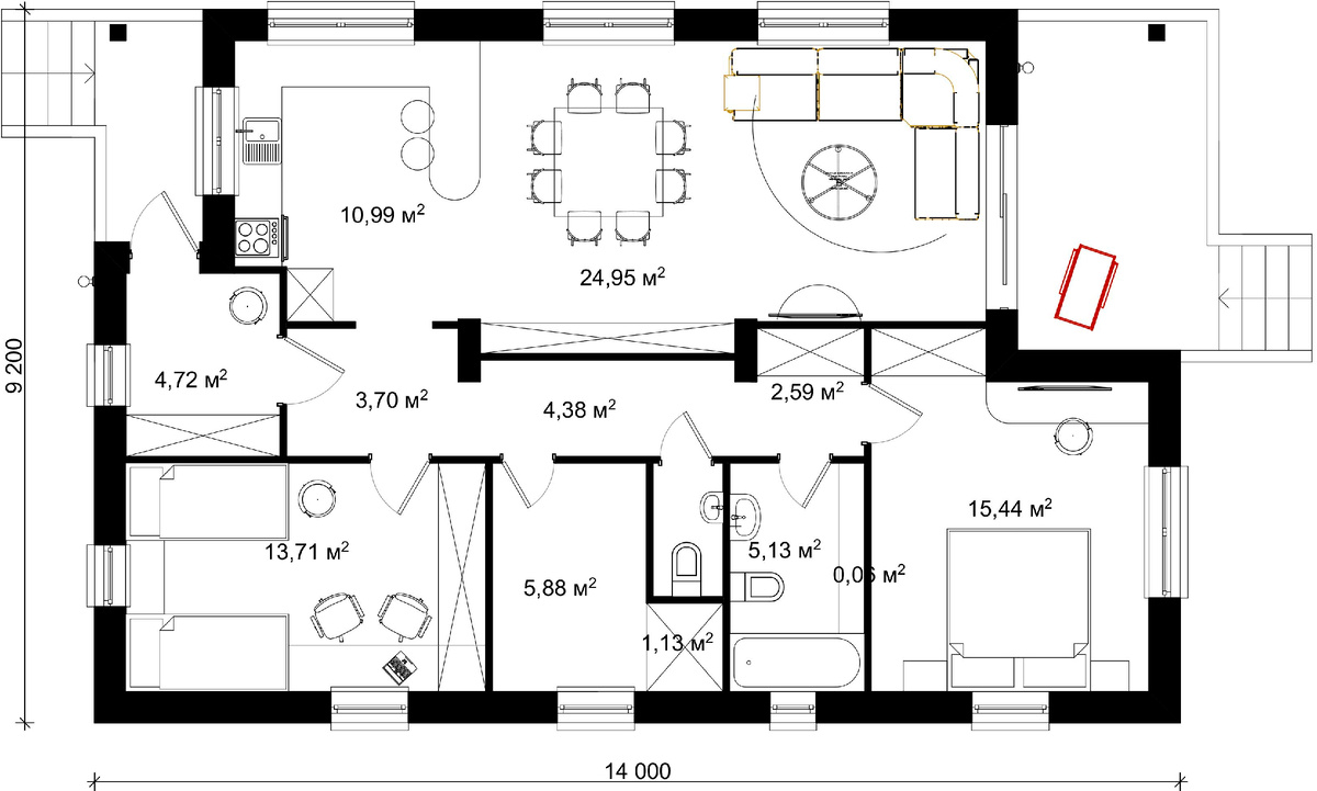
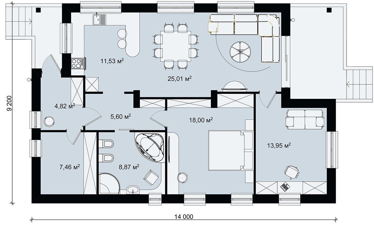
2. БРИЗ 92 м2 - проект одноэтажного дома 9 х 14 с двумя спальнями и большой ванной

БРИЗ 92 м2 - проект одноэтажного дома 9х14 с двумя спальнями
Инваполис - проекты рациональных домов 27 апреля 2021

3. АРМАВИР 97 м2 - проект простого одноэтажного дома 10 х 12 с 3 спальнями

АРМАВИР 97 м2 - проект одноэтажного дома 10х12 с 3 спальнями
Инваполис - проекты рациональных домов 2 января 2022

4. АДРИАТИКА 100 м2 - одноэтажный дом 12 х 12 в классическом стиле, с 3 спальнями.

АДРИАТИКА 100 м2 - одноэтажный дом 12х12 в классическом стиле, с 3 спальнями.
Инваполис - проекты рациональных домов 4 января 2022

5. КРЫМ 101 м2 - проект одноэтажного дома 10 х 12 с террасой,с 3 спальнями, панорамным окном в гостиной

КРЫМ 101 м2 - проект одноэтажного дома 10х12 с террасой,с 3 спальнями, панорамным окном в гостиной
Инваполис - проекты рациональных домов 6 ноября 2022
Напоминаем, что у нас есть основной сайт, на котором 👀 каталог из более чем 200 готовых проектов домов, примерно половина из них - одноэтажные.

► Чтобы не пропускать наши публикации, лайк 👍 и подписывайтесь на канал

► Также в Телеграмм публикуем анонсы новых статей и короткие обзоры