Добавить в корзинуПозвонить
Найти в Дзене
NORD-HOUSE

Баня из клеёного бруса

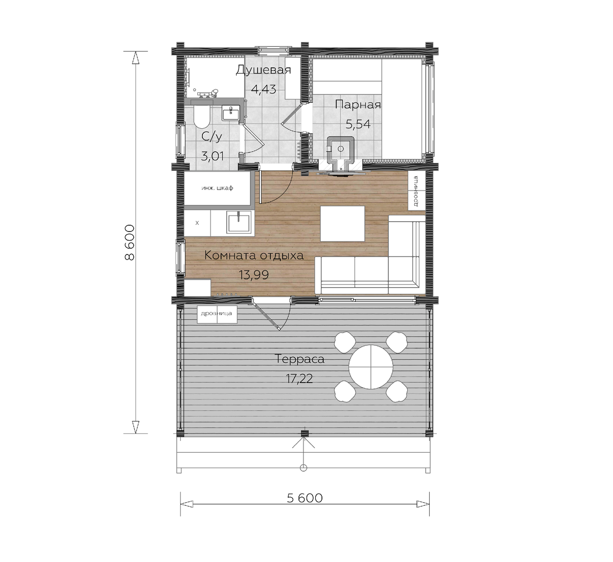
Проект бани из клеёного бруса "Берси". Планировка бани небольшой площади отлично подойдет тем, кто ценит русские традиции и любит проводить свободное время с комфортом. Интересно оформленная баня с небольшой террасой никого из гостей вашего дома не заставит усомниться в своем назначении. Площадь бани - 44,2 м2. В проекте бани предусмотрено все, что необходимо для проведение времени с комфортом: парная комната, душевая, санузел, а так же комната отдыха. Вариант с комнатой отдыха имеет множество преимуществ. Если кому-то наскучит долгое время находиться в парилке, присутствие дополнительного помещения для отдыха будет большим плюсом. Комнату для отдыха можно оборудовать всем необходимым для комфортного досуга: холодильником для хранения прохладительных напитков, телевизором, плитой, диваном. Площадь помещения позволяет одновременно находиться в нем небольшой компании людей. Терраса, в которой можно дополнительно разместить кухонные приспособления имеет площадь в 17 квадратных метров. От
Берси
Берси

Проект бани из клеёного бруса "Берси". Планировка бани небольшой площади отлично подойдет тем, кто ценит русские традиции и любит проводить свободное время с комфортом. Интересно оформленная баня с небольшой террасой никого из гостей вашего дома не заставит усомниться в своем назначении.

Площадь бани - 44,2 м2.

Планировка
Планировка

В проекте бани предусмотрено все, что необходимо для проведение времени с комфортом: парная комната, душевая, санузел, а так же комната отдыха.

Вариант с комнатой отдыха имеет множество преимуществ. Если кому-то наскучит долгое время находиться в парилке, присутствие дополнительного помещения для отдыха будет большим плюсом. Комнату для отдыха можно оборудовать всем необходимым для комфортного досуга: холодильником для хранения прохладительных напитков, телевизором, плитой, диваном. Площадь помещения позволяет одновременно находиться в нем небольшой компании людей.

-3

Терраса, в которой можно дополнительно разместить кухонные приспособления имеет площадь в 17 квадратных метров. Отличное место для проведения времени на свежем воздухе.

-4

Эффектная баня с комнатой отдыха расположенная в вашем дворе будет служить отличным дополнением для вашего участка, подчеркнет представительность и хороший вкус.

Подробности по тел.: 8 (800) 250-50-43