Добавить в корзинуПозвонить
Найти в Дзене

Кран-балка подвесная 10 т

Подвесные кран-балки на 10 тонн отличаются прочной конструкцией и оптимальной комплектацией, что делает его незаменимым для выполнения тяжелых подъемно-транспортных операций в различных отраслях промышленности. Такие краны изготавливаются нами с учётом всех современных стандартов безопасности и производительности. Их конструкция предусматривает использование высококачественных материалов и передовых технологий. Основные сферы применения кран-балок грузоподъемностью 10 т: Наши клиенты часто заказывают такие кран-балки для решения задач, связанных с перемещением массивных деталей, заготовок и оборудования. Для повышения эффективности работы мы оснащаем краны дополнительными функциями, такими как частотные преобразователи, позволяющие плавно регулировать скорость движения, и системы радиоуправления для удобства оператора. Одним из успешных проектов нашей компании стала поставка подвесной двухпролетный электрической кран-балки г/п до 10 тн для ООО «Твик» в городе Магнитогорск, Челябинская

Подвесные кран-балки на 10 тонн отличаются прочной конструкцией и оптимальной комплектацией, что делает его незаменимым для выполнения тяжелых подъемно-транспортных операций в различных отраслях промышленности. Такие краны изготавливаются нами с учётом всех современных стандартов безопасности и производительности. Их конструкция предусматривает использование высококачественных материалов и передовых технологий.

Основные сферы применения кран-балок грузоподъемностью 10 т:

  • Металлургическую и машиностроительную отрасли;
  • Производственные цеха и склады;
  • Логистические комплексы и терминалы.

Наши клиенты часто заказывают такие кран-балки для решения задач, связанных с перемещением массивных деталей, заготовок и оборудования. Для повышения эффективности работы мы оснащаем краны дополнительными функциями, такими как частотные преобразователи, позволяющие плавно регулировать скорость движения, и системы радиоуправления для удобства оператора.

-2

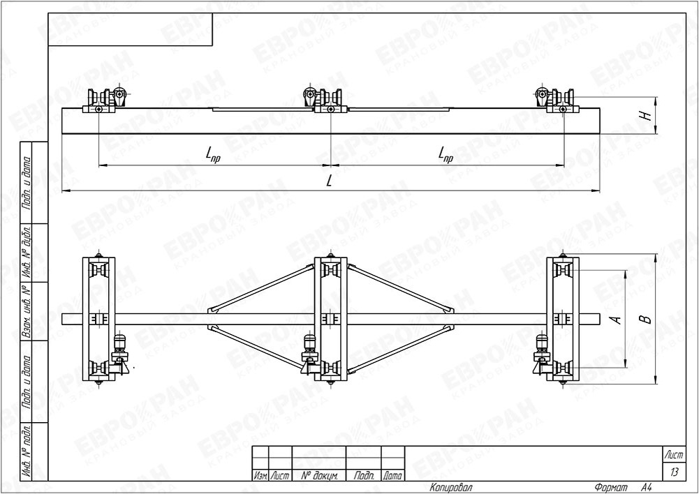
Одним из успешных проектов нашей компании стала поставка подвесной двухпролетный электрической кран-балки г/п до 10 тн для ООО «Твик» в городе Магнитогорск, Челябинская область. Проект включал изготовление и поставку следующего оборудования:

  • Подвесная двухпролетная электрическая кран-балка грузоподъемностью 10 тонн, пролёт крана – 10,5 + 10,5 м, полная длина крана – 22,2 м;
  • Канатный передвижной тельфер болгарского производства.

Для повышения удобства и безопасности эксплуатации в штатную комплектацию были включены:

  • Частотные преобразователи на все органы управления крана для плавного пуска и торможения;
  • Система радиоуправления, обеспечивающая дистанционное управление краном.

Данное оборудование позволило ООО «Твик» значительно повысить производительность работ при монтаже систем отопления, вентиляции, кондиционирования, холодоснабжения, водоснабжения и канализации. Благодаря внедрению современных решений по управлению краном удалось сократить время на выполнение грузоподъемных операций, минимизировать риски простоя и повысить общую безопасность на объекте.

Реализация этого проекта стала ещё одним подтверждением нашей компетентности в разработке и производстве надежного подъемного оборудования, отвечающего высоким требованиям заказчиков.