Найти в Дзене

Каркасный дом с заполнением теплоизоляционными композитными панелями

Добрый день! Мы завершили разработку архитектурной концепции совместно с нашими партнерами — командой ИП Аршинова А.В. Новый комплекс из семи участков будет расположен на склоне, что потребовало значительных усилий, чтобы не только создать дом, но и сразу спланировать окружающее его пространство.
Оглавление

Добрый день! Мы завершили разработку архитектурной концепции совместно с нашими партнерами — командой ИП Аршинова А.В. Новый комплекс из семи участков будет расположен на склоне, что потребовало значительных усилий, чтобы не только создать дом, но и сразу спланировать окружающее его пространство.

  • Общая площадь дома: 280 м²
  • Каркас: сборно-разборный, железобетонный или металлический.
  • Заполнение стен: теплоизоляционные композитные панели.
  • Крыша плоская, неэксплуатируемая.
  • Двери наружные: алюминиевый профиль с двойными стеклопакетами.
  • Окна: пластиковые или алюминиевые с двойным стеклопакетами.
  • Полы дома: керамогранит, ламинат, паркет.

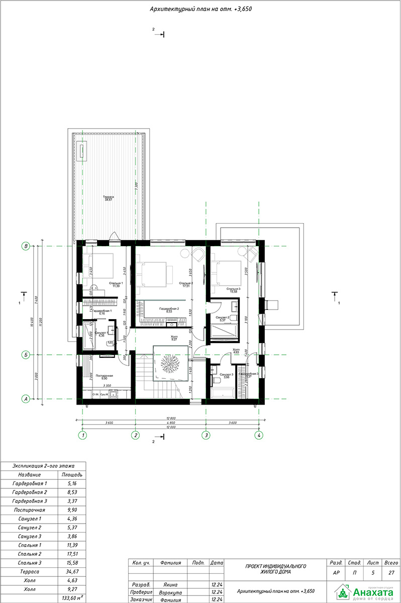
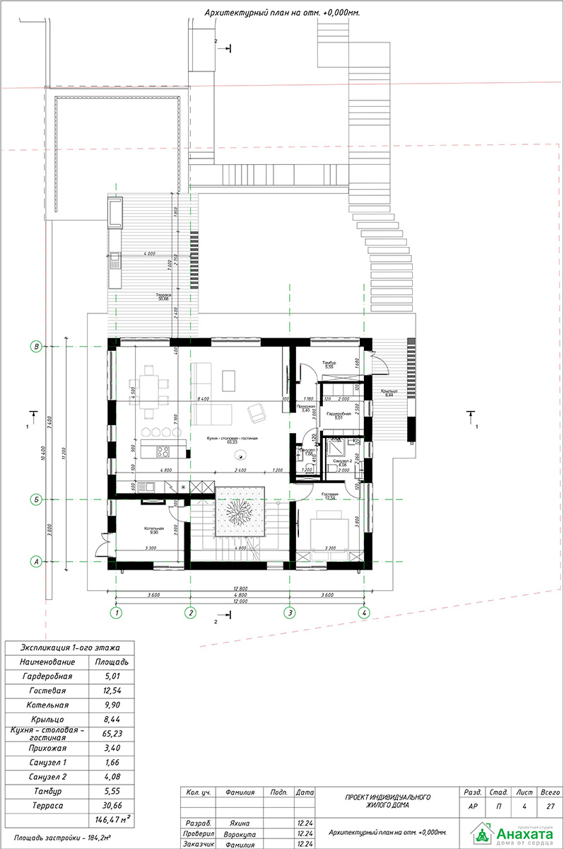
Архитектурный план дома

Дом в разрезах

Фасады дома

План кровли

-5

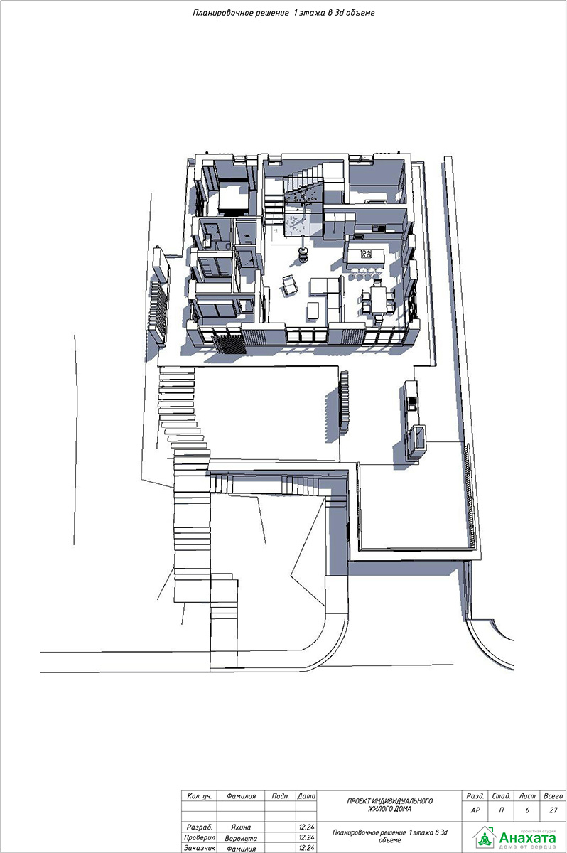
Визуализация дома

-6
-7
-8
-9