Найти в Дзене
INMYROOM

Круто переделали ремонт от ПИК в евротрешке 61 м²

Грандиозный ремонт, удачная перепланировка, много цвета и хранения В этой квартире проживают молодые супруги с маленькой дочкой и котом. На момент покупки в квартире был типовой ремонт от застройщика. Юлия с мужем полностью все демонтировали, сделали перепланировку и обустроили уютное функциональное пространство, в котором комфортно жить и работать. Дизайн-проект помогла разработать дизайнер из компании Irooms. Место: г. Москва
Метраж: 61 м²
Количество комнат: 3
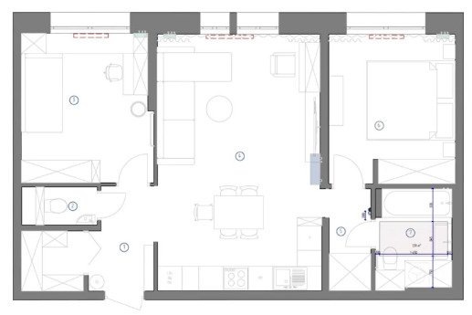
Санузел: 2 Планировку от застройщика полностью переделали: какие-то стены достраивали, какие-то возводили заново. Мокрые зоны остались на своих местах. По новому плану в квартире есть просторная кухня-гостиная, мастер-спальня, детская, прихожая и два санузла. Стены в кухне-гостиной покрашены светлой краской и декорированы молдингами. На полу единым контуром уложена каменно-полимерная плитка. Она не боится влаги, не деформируется от ударов и тяжелой мебели. Чтобы красиво разместить угловой гарнитур, с одной стороны достроили сте
Оглавление

Грандиозный ремонт, удачная перепланировка, много цвета и хранения

В этой квартире проживают молодые супруги с маленькой дочкой и котом. На момент покупки в квартире был типовой ремонт от застройщика. Юлия с мужем полностью все демонтировали, сделали перепланировку и обустроили уютное функциональное пространство, в котором комфортно жить и работать. Дизайн-проект помогла разработать дизайнер из компании Irooms.

Место: г. Москва
Метраж: 61 м²
Количество комнат: 3
Санузел: 2

Румтур этой квартиры (29 минут)

О планировке

Планировку от застройщика полностью переделали: какие-то стены достраивали, какие-то возводили заново. Мокрые зоны остались на своих местах. По новому плану в квартире есть просторная кухня-гостиная, мастер-спальня, детская, прихожая и два санузла.

 📷
📷

О кухне-гостиной

Стены в кухне-гостиной покрашены светлой краской и декорированы молдингами. На полу единым контуром уложена каменно-полимерная плитка. Она не боится влаги, не деформируется от ударов и тяжелой мебели.

Чтобы красиво разместить угловой гарнитур, с одной стороны достроили стену и вписали мебель в образовавшуюся нишу. Белая кухня смотрится элегантно и «воздушно», а помещение выглядит визуально просторнее. Яркий акцент — бирюзовый фартук из глянцевой плитки. Он привносит в интерьер ощущение свежести и прохлады. Фишка кухни — красивая стеклянная витрина с подсветкой. Она помогла сэкономить место и уютно оформить комнату.

 📷
📷
 📷
📷
 📷
📷
 📷
📷

Между кухней и гостиной располагается обеденная зона с большим раскладным столом. Стулья подбирали в цвет обивки дивана. Они оснащены поворотным механизмом: ножки крепятся к крестовине, которая вращается на 360°.

 📷
📷
 📷
📷

В гостиной — угловой диван в велюровой мягкой обивке изумрудного цвета. Шторы для окна подбирали в таком же оттенке — так интерьер выглядит целостно и гармонично. Напротив дивана — зона ТВ, которая плавно переходит в удобное рабочее место. Юлия работает дома, поэтому важно было предусмотреть комфортный и хорошо освещенный уголок с удобными столом и стулом.

 📷
📷
 📷
📷
 📷
📷

О спальне

Стены в спальне окрашены в глубокий бирюзовый оттенок, а за изголовьем кровати оклеены красивыми обоями с абстрактным рисунком. Кровать с мягким изголовьем оснащена подъемным механизмом и коробом для хранения. Напротив — комод с фасадами в цвет стен. Для хранения предусмотрен большой встроенный шкаф.

 📷
📷
 📷
📷
 📷
📷

В небольшом коридоре перед спальней сделали встроенный шкаф для хозяйственных нужд. Это очень удобно — шкаф получился очень глубоким, все хранение в нем сделано по размерам бытовых принадлежностей. А в антресольных секциях хранится елка с новогодними украшениями.

 📷
📷

О детской

В этой комнате часть стен покрашена в светло-розовый оттенок, стена за диваном оклеена обоями с красивым сказочным рисунком. Вдоль окна обустроили уютный уголок для чтения и отдыха. Для сна служит раскладной удобный диван. Напротив — рабочее место с открытым и закрытым хранением. Вся мебель подбиралась с прицелом на будущее. Большой шкаф оснащен зеркальными фасадами — они отражают свет из окна и визуально делают комнату больше. Функциональное решение — открытые полки с торца шкафа, которые решили вопрос с хранением книг и детских рисунков.

 📷
📷
 📷
📷
 📷
📷
 📷
📷

О прихожей

В прихожей удалось разместить полноценную гардеробную. Ее скрыли за красивыми зеркальными дверьми. Для хранения ключей и разных мелочей предусмотрели подвесную тумбу, для удобства при обувании — мягкий пуф.

 📷
📷
 📷
📷
 📷
📷

О санузлах

Санузел, который находится рядом со спальней, расширили и уместили в нем все необходимое: полноценную ванну, инсталляцию, постирочный блок и много хранения. Главным акцентом стала плитка ручной работы в форме рыбьих чешуек, ею облицевали стену над ванной. Полки в нишах и в зоне инсталляции оснастили красивой атмосферной подсветкой. Для отделки второго санузла использовали микс белой и бирюзовой шестиугольной плитки.

 📷
📷
 📷
📷
 📷
📷

Сейчас читают: