Добавить в корзинуПозвонить
Найти в Дзене

Какие чертежи должны быть в дизайн-проекте. Показываю на конкретном примере

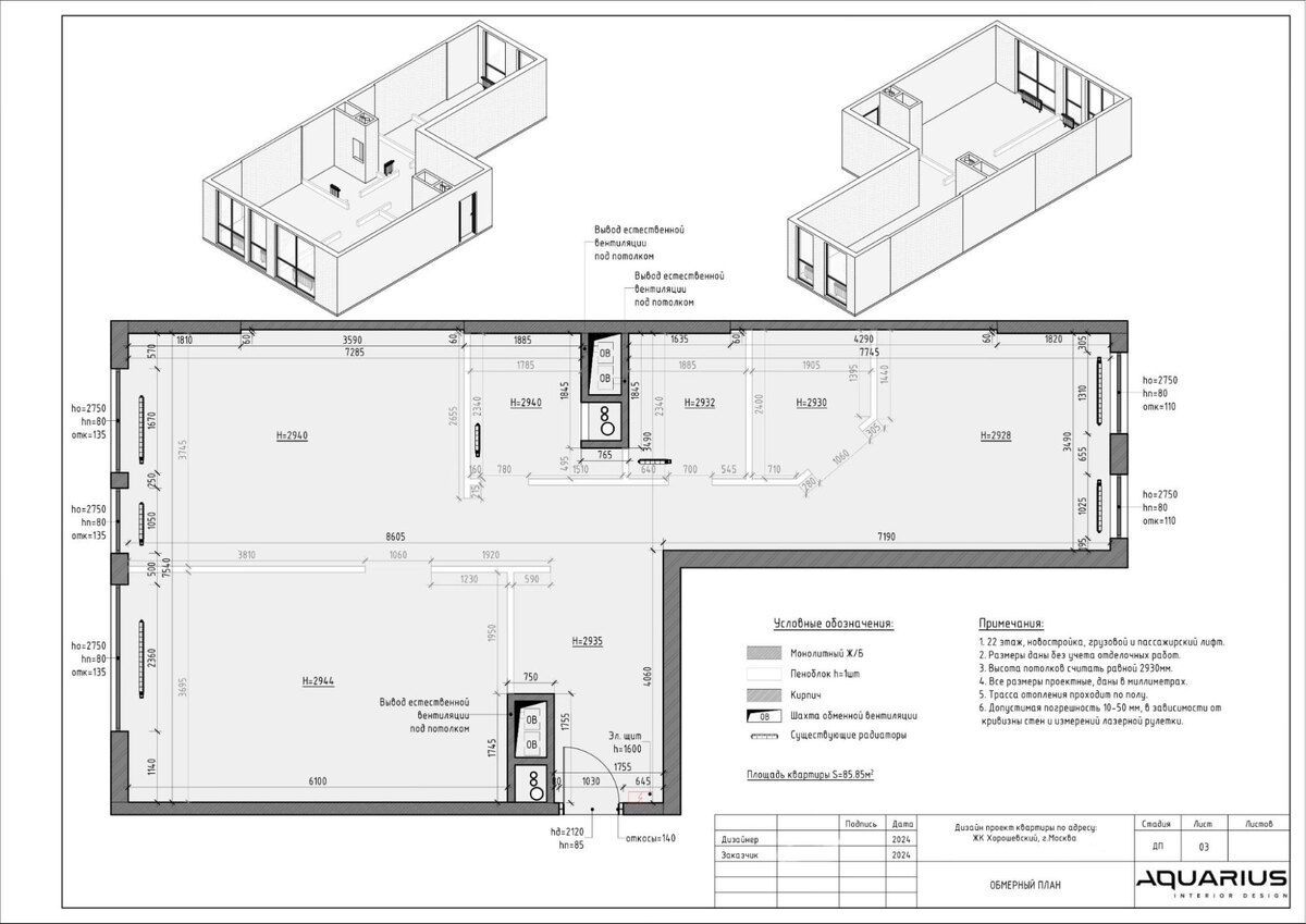
Чертежи позволяют заранее продумать интерьер пространства, коммуникации и свет. Благодаря чертежам можно свести к минимуму ошибки в ремонте. Сегодня рассмотрим квартиру площадью 74 м2. Мы разработали все чертежи для этого пространства за 20 дней. Это самый первый чертеж, на котором указаны размеры всех комнат, расположение труб, радиаторов, выводов канализации и счетчиков. Его рисуют сразу после замера помещения. Если в квартире заказчик хочет сделать перепланировку, то чертится план демонтажа и монтажа. Там указывают перегородки, радиаторы, дверные коробки и прочие элементы, которые нужно демонтировать, а потом заново установить в другом месте. Дизайнеры предлагают перепланировку, которую можно узаконить. Если сделать перепланировку без учета строительных норм, квартиру тяжело будет продать. За такую самодеятельность можно получить штраф от жилищной инспекции. На этом чертеже можно представить, как будет стоять мебель в пространстве. Его делают, исходя из нужд и предпочтений заказчик
Оглавление

Чертежи позволяют заранее продумать интерьер пространства, коммуникации и свет. Благодаря чертежам можно свести к минимуму ошибки в ремонте. Сегодня рассмотрим квартиру площадью 74 м2. Мы разработали все чертежи для этого пространства за 20 дней.

Обмерный план

Это самый первый чертеж, на котором указаны размеры всех комнат, расположение труб, радиаторов, выводов канализации и счетчиков. Его рисуют сразу после замера помещения.

-2

План демонтажа и монтажа

Если в квартире заказчик хочет сделать перепланировку, то чертится план демонтажа и монтажа. Там указывают перегородки, радиаторы, дверные коробки и прочие элементы, которые нужно демонтировать, а потом заново установить в другом месте.

-3

Дизайнеры предлагают перепланировку, которую можно узаконить. Если сделать перепланировку без учета строительных норм, квартиру тяжело будет продать. За такую самодеятельность можно получить штраф от жилищной инспекции.

-4

План расстановки мебели

На этом чертеже можно представить, как будет стоять мебель в пространстве. Его делают, исходя из нужд и предпочтений заказчика.

-5

Чертеж делают с заказчиком. В планировку закладывают конкретную мебель с реальными размерами, которая есть на складах.

План пола

На чертеже пола указывают, какое напольное покрытие будет использоваться, его площадь и способ раскладки. Чертеж позволяет точно рассчитать материал, чтобы не покупать лишнее.

-6

На таком плане можно подобрать оптимальную раскладку напольного покрытия

План потолка

На плане потолка указываются площадь, количество уровней, отверстий, подсветок и ниш.

-7

План освещения

На этом чертеже обозначают расположение всех светильников на потолке и стенах, а также подсветки.

-8

Благодаря этому чертежу можно проработать основное и акцентное освещение в комнатах.

План розеток

В плане розеток дизайнер обозначает все розетки, выводы и точки подключения слаботочных систем.

-9

В чертеже указывается высота, на которой должны быть розетки, и их тип

План развертки стен

На этом плане каждую стену в квартире рисуют отдельно со всеми элементами. С помощью этого чертежа строители увидят, где делать отверстия под розетку и как крепить мебель или аксессуары к стене.

-10

Заключение

Чертежи помогают максимально использовать возможности пространства, точно рассчитать количество материалов и избежать ненужных расходов. Благодаря чертежам строители могут точно определить размеры и расположение всех элементов, что значительно упрощает их работу и снижает вероятность ошибок.

Дизайн и ремонт квартир в Москве - Аквариус