Найти в Дзене

Как выбрать квартиру с хорошей планировкой?

На что обращать внимание при покупке квартиры. Вы считаете, что дизайн-проект начинается после покупки квартиры? Точно, нет! Думать о том, как ваше жилье будет выглядеть после ремонта стоит уже на этапе выбора квартиры? Помните, что жить должно быть не только красиво, а, прежде всего, удобно. Если с первым мы точно разберемся вместе с Вами, то по поводу второго можем дать несколько советов. А еще лучше, если Вы обратитесь к дизайнеру уже на стадии выбора, перед покупкой квартиры. В первую очередь, конечно, напомним о квартирах свободной планировки, где застройщик выводит "мокрые" точки, а в остальном дает вам и дизайнеру полную свободу. На деле, конечно, не все так просто. Есть нормы, которых необходимо придерживаться при выполнении перепланировки. Нельзя увеличивать площадь санузла за счет жилых комнат, переносить "мокрые" точки и прочее. Но обратившись к дизайнеру, Вы точно сможете организовать идеальное для Вас пространство. Например, смотрите, как мы решили планировку квартиры 135

На что обращать внимание при покупке квартиры.

Вы считаете, что дизайн-проект начинается после покупки квартиры? Точно, нет! Думать о том, как ваше жилье будет выглядеть после ремонта стоит уже на этапе выбора квартиры? Помните, что жить должно быть не только красиво, а, прежде всего, удобно. Если с первым мы точно разберемся вместе с Вами, то по поводу второго можем дать несколько советов. А еще лучше, если Вы обратитесь к дизайнеру уже на стадии выбора, перед покупкой квартиры.

В первую очередь, конечно, напомним о квартирах свободной планировки, где застройщик выводит "мокрые" точки, а в остальном дает вам и дизайнеру полную свободу.

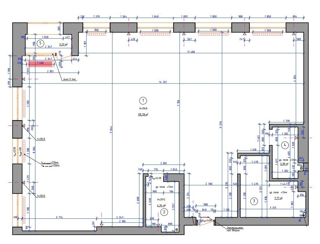
На деле, конечно, не все так просто. Есть нормы, которых необходимо придерживаться при выполнении перепланировки. Нельзя увеличивать площадь санузла за счет жилых комнат, переносить "мокрые" точки и прочее. Но обратившись к дизайнеру, Вы точно сможете организовать идеальное для Вас пространство. Например, смотрите, как мы решили планировку квартиры 135 кв.м. с 8-ю окнами для семьи с тремя детьми. Именно возможности, которые предоставляет свободная планировка, позволили реализовать все желания Заказчика: каждому ребенку - отдельную комнату, изолированная прихожая, мастер-спальня с личной ванной комнатой, гардеробная на входе и отдельная постирочная. В итоге, кухня-гостиная для этой квартиры получилась, пожалуй, небольшая, зато удалось каждому члену семьи выделить свое пространство. В галерее смотрите изначальную планировку.

Если это кажется пугающе сложным, то наши советы помогут вам выбрать оптимальный вариант, который не потребует значительных изменений планировки.

Представьте свою жизнь в новой квартире

Сколько человек будет жить в этой квартире?

Как они будут проводить здесь время?

Нужно ли вам рабочее место или игровая комната?

Куда должны выходить окна, хотите встречать восход или любоваться закатом, какой должен быть вид?

Часто ли к вам будут приходить гости?

Будет ли возможность собрать их всех в одном месте? Необходимо ли место для ночевки?

Какое у вас хобби? Занимаетесь ли вы каким-то спортом? Нужно ли обеспечить хранение инвентаря?

А может вы работаете дома и необходимо отдельное пространство для этого?

Подумайте также, чего точно не должно быть в вашей квартире?

Ответы на эти и подобные вопросы позволят вам сократить количество вариантов и задать определенные фильтры, по которым можно искать квартиру.

Обратите внимание на количество окон.

Если Вы выбираете небольшую квартиру, то можно легко сделать ее визуально больше – для этого вам нужно выбирать тот вариант, в котором больше окон. Представьте: квартира-студия в 40 «квадратов», в котором одно окно или та же студия, но окон уже три? Мы, естественно, рекомендуем вторую квартиру, ведь в ней вы не будете чувствовать себя взаперти в четырех стенах. Наличие естественного света и воздуха в квартире критически важно, поскольку именно так можно создать уютный и атмосферный интерьер, в котором действительно хочется проводить много времени и получать от этого удовольствие. Более того – если в квартире три окна, то возможно даже сделать небольшую перепланировку и выделить отдельную спальню! В результате вы получите изолированную спальню, в которой можно будет спокойно отдыхать, ведь для морального состояния организма очень важно, чтобы разные жизненные процессы происходили в разных комнатах. В варианте, когда студия имеет 1 окно и вытянута вглубь, максимум, на что можно рассчитывать, это спальня-ниша.

Ориентация и размер окон

Кроме количества окон, обращайте внимание и на их размер. Окна с низкими подоконниками или в пол гораздо выигрышнее стандартных маленьких окошек посередине стены. Обратите внимание на это при выборе будущего жилья.

Важно и расположение окон: лучше всего, чтобы окна выходили не на одну сторону. Таким образом в квартире будет больше света, и ее будет легче проветривать. При выборе небольших квартиры, конечно, вряд ли удастся найти разностороннюю ориентацию, но если вы выбираете трехкомнатную квартиру, рекомендуем применять это правило. Иногда разностороннюю, чаще угловую, ориентацию можно найти и при выборе двухкомнатных квартир. По сторонам света можно ориентироваться на свои предпочтения, на любую сторону, только учитывая нормы инсоляции. Окна, расположенные на юг, в течение дня обеспечивают максимально много света, но обязательно расположите в этих комнатах кондиционеры, летом будет очень жарко. Окна, обращенные на север дают более рассеянный свет, с восточной ориентацией будет сильный утренний свет - восход, а с западной  - интенсивный вечерний, для любителей закатов.

Любите свежий воздух?

Помимо окон, позаботьтесь о том, чтобы в вашей квартире был балкон или терраса. Давно прошли времена, когда балкон был еще одной кладовкой. Сегодня это место, где можно насладиться видом на город, или, например сфотографировать красивый закат, позавтракать «на природе» в выходной, почитать книгу теплым летним вечером или поработать. Тренд на удаленный формат работы делает современный балкон функциональным и востребованной площадью. По оценке ЦИАН, более 60% потенциальных покупателей квартир бизнес-класса считают балкон обязательной опцией при выборе жилья.

Вариант квартиры с большой лоджией с видом на реку
Вариант квартиры с большой лоджией с видом на реку

Геометрия и форма комнат

Выбирая квартиру, лучше избегать комнат неправильных форм. Самый идеальный вариант - все комнаты квадратной, а еще лучше прямоугольной формы.

Комнаты с острыми или тупыми, заоваленными или скругленными углами часто бывают нефункциональными, могут возникнуть проблемы с расстановкой мебели, и пространство будет использоваться не полностью.

Вот пример наиболее удачного варианта планировки со скругленным панорамным окном. Положительным аспектом здесь стало то, что только одна комната - гостиная имеет скругленный угол, остальные - правильной геометрии.

Пример планировки со склугленным углом в гостиной
Пример планировки со склугленным углом в гостиной

Несущие стены

Выбирайте квартиру с минимальным количеством несущих стен, чтобы в дальнейшем у вас была возможность сделать перепланировку. В идеале, когда несущие стены проходят по границам квартиры, тогда еще и звукоизоляция с соседями будет гораздо лучше. Если же несущая стены внутри квартиры, она может сильно осложнить возможности перепланировки.

Вот пример нашей работы с квартирой во вторичке "до" и "после", где для улучшения планировки необходимо было пробить проем в одной несущей стене и сдвинуть проем в другой. Дополнительно мы сделали конструктивный проект усиления проемов, согласовывали и получали все разрешения, и лишь после выполняли эту перепланировку. Если для Вас такой путь слишком тернист, лучше сразу позаботиться о том, чтобы в квартире не было несущих стен.

Позаботьтесь о своем комфорте

Сегодня на рынке вы можете встретить самые разные варианты недвижимости, в которых уже подумали о том, чтобы вы получали удовольствие от жизни в этих квартирах. Мы сейчас говорим о вариантах, в которых реализованы решения для повышения уровня комфорта вашей жизни.

Выбираете квартиру для семьи, в которой больше двух человек?

На рынке огромное количество предложений с двумя и даже тремя санузлами. Это сэкономит вам время и нервы по утрам, когда всей семье надо собираться на работу и учебу.

Рассматриваете квартиру площадью около ста или больше «квадратов»? Скорее всего, застройщик уже позаботился о вас и предложил различные дополнительные опции, а вам нужно выбрать те, которыми вы действительно будете пользоваться: гардероб, терраса, мастер-санузел смежный со спальней, кабинет, постирочная – все это вы без проблем найдете в современной квартире.

Мастер-блок, вообще, отличный способ оптимизировать пространство квартиры и обеспечить максимальный комфорт жильцам. На сегодняшний день мастер-блок появляется не только в квартирах элитного и бизнес-класса, но и в более бюджетных вариантах.

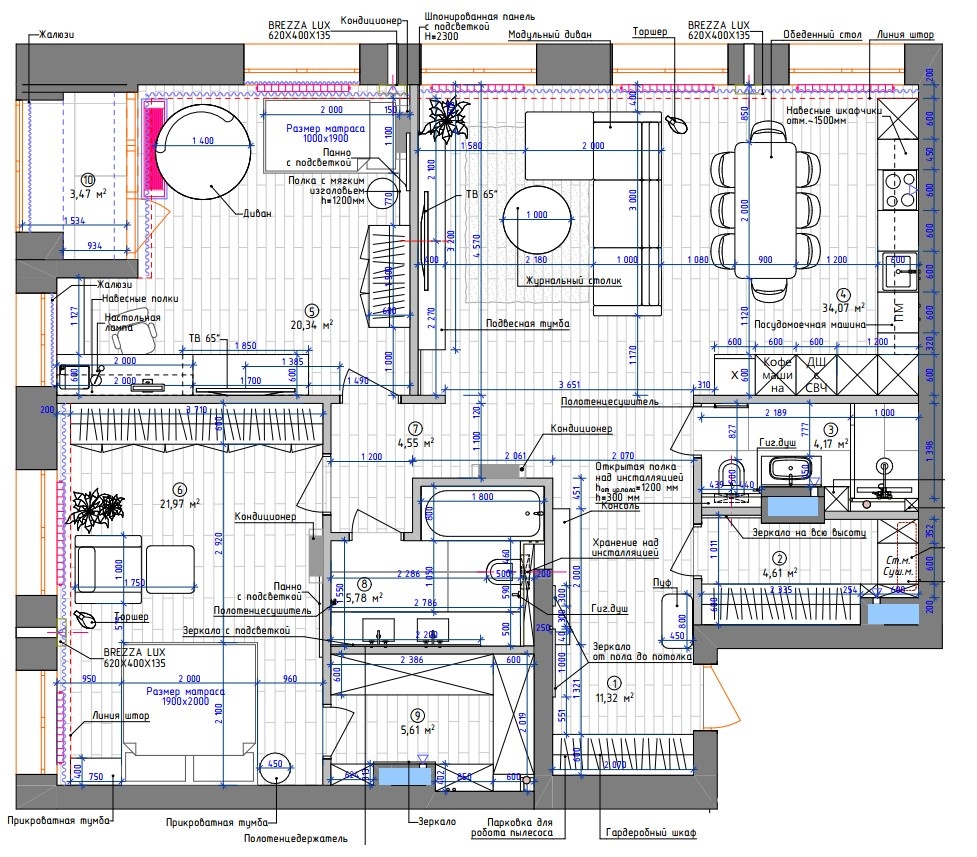
Посмотрите пример планировки квартиры, где четко разграничены общая и приватная зоны. Дополнительно к основным жилым пространствам добавлен кабинет, постирочная и 2 гардероба.

Квартира 150 кв.м. с выделенной приватной зоной
Квартира 150 кв.м. с выделенной приватной зоной

Грязи в доме не место

Прихожая – самое "грязное" место в доме. В нашем климате, к сожалению, невозможен сценарий, при котором можно не разуваться, приходя домой. Наоборот, чтобы не принести на ботинках кучу грязи, скажем весной, вам нужно еще в подъезде пройти через несколько ковров, о которые можно вытереть ноги. Выбор правильной планировки, конечно же, не гарантирует вам чистоту в доме, но если вы позаботитесь о том, чтобы в вашей новой квартире прихожая не была проходной, то в комнату будет попадать в разы меньше грязи.

Мы всегда стараемся разграничивать "чистую" и "грязную" зоны, но проще сделать это, если так заложено в изначальной планировке квартиры.

В приведенном ниже примере сделана перепланировка для правильного выделения зоны прихожей с гардеробным шкафом. Если посмотрите в галерее изначальную планировку, то увидите, что мы перенесли дверь санузла из прихожей, чтобы не пересекать "грязную" зону при пользовании ванной комнатой. Выходить после расслабляющей ванны в "ботинки" - не правильно. Для тех, кто скажет, что выходить из ванны в гостиную тоже не вариант, отвечаем, что в данном случае, мы работаем в заданными изначальной планировкой параметрами, переносить "мокрую точку" мы не можем, а гостиную мы пересекаем даже в случае первоначальной планировки.

«Квадраты» должны быть эффективными

Если взглянуть на вторичный рынок, то очень часто можно встретить квартиры, в которых площадь использована неэффективно: длинные узкие коридоры, комнаты пеналы, холлы, занимающие половину квартиры – все это видел каждый. В современных планировках такие помещения занимают не более 10-20%, все остальное – полезная площадь. Уже перечисленные выше гардеробные, постирочные и прочие функциональные помещения оптимизируют пространство квартиры и позволяют исключить из дизайн-проекта необходимость разместить, например, несколько отдельно стоящих огромных шкафов.

Говоря об эффективности квадратных метров, нужно также учитывать, где и сколько времени вы будете проводить, когда начнете жить в квартире. Так, если вы работаете удаленно, то вам понадобится отдельное хорошо проветриваемое и освещенное (мы имеем в виду естественный свет) место или даже отдельная комната.

Еще один актуальный тренд – распределение площади в пользу общесемейных пространств. Если у вас имеются отдельные спальни, то вряд ли вы будете проводить в них много времени, поэтому эти комнаты могут быть не очень большими. А вот просторная, светлая и уютная гостиная – это место, где ваша семья будет проводить очень много свободного времени, отдыхая вечером или на выходных. Добавит света и пространства, также, и высокий потолок.

-9

Квартира уже куплена, а советы не учтены: что делать?

Ничего страшного, конечно, нет. Дизайнер поможет вам с перепланировкой, а хорошая бригада строителей без проблем ее выполнит. Поэтому если вы уже купили квартиру, а планировка не идеальна, то не переживайте – свяжитесь с нами, и мы поможем вам оценить все недостатки и особенности квартиры для будущей перепланировки. Возможно, какие-то проблемы можно будет превратить в достоинства квартиры, а где-то и вовсе не потребуется перепланировка, и мы сможем обойтись качественным зонированием.

Если вы все-таки решились на перепланировку, то консультация с дизайнером – однозначный маст хэв, потому что только профессионал подскажет вам, как не украсть у самих себя лишние квадратные метры: например, в маленькой квартире противопоказаны конструкции из гипсокартона, которые очень сильно съедают пространство и делают площадь квартиры нефункциональной. Если вы хотите гардероб, но глубина не выходит более 90см, то лучше все же ограничиться шкафом, т.к. вы просто "съедите" пространство гардеробной, а функционально это все же будет просто шкаф, только глубокий. Эти, и многие другие "ошибки" помогут Вам избежать наши специалисты.

Квартиры
7954 интересуются