Добавить в корзинуПозвонить
Найти в Дзене

Что нужно знать о ремонте помещений в торговых центрах?

Ремонт коммерческого помещения в современном торговом центре (ТЦ) – это процесс, требующий не только тщательного планирования, но и глубокого понимания особенностей работы в подобных объектах. Прежде чем приступать к ремонту, необходимо учитывать несколько специфических факторов, свойственных работе внутри торговых центров: 1) Ограничения по времени работы. Во многих ТЦ ремонтные работы разрешены только в ночное время, чтобы не создавать неудобства посетителям и другим арендаторам. 2) Технические регламенты и согласования. Управляющая компания ТЦ обычно предоставляет подробный свод правил и требований к реконструкции помещений (например, пожарная безопасность, шумовые ограничения, нормы электроснабжения и вентиляции). 3) Инфраструктурные ограничения. В зависимости от расположения помещения могут существовать ограничения по мощности электросетей, водоснабжению или допустимому весовому нагрузочному режиму для строительных материалов. 4) Высокий уровень безопасности. В ТЦ действует строг
Оглавление
Это не наше фото с объекта - нейросеть нарисовала).
Это не наше фото с объекта - нейросеть нарисовала).

Ремонт коммерческого помещения в современном торговом центре (ТЦ) – это процесс, требующий не только тщательного планирования, но и глубокого понимания особенностей работы в подобных объектах.

Прежде чем приступать к ремонту, необходимо учитывать несколько специфических факторов, свойственных работе внутри торговых центров:

1) Ограничения по времени работы.

Во многих ТЦ ремонтные работы разрешены только в ночное время, чтобы не создавать неудобства посетителям и другим арендаторам.

2) Технические регламенты и согласования.

Управляющая компания ТЦ обычно предоставляет подробный свод правил и требований к реконструкции помещений (например, пожарная безопасность, шумовые ограничения, нормы электроснабжения и вентиляции).

3) Инфраструктурные ограничения. В зависимости от расположения помещения могут существовать ограничения по мощности электросетей, водоснабжению или допустимому весовому нагрузочному режиму для строительных материалов.

4) Высокий уровень безопасности. В ТЦ действует строгая система охраны, что требует согласования ввоза материалов, инструментов и допуска рабочих.

Этапы планирования и подготовки к ремонту.

Все начинается с основательного планирования, которое включает следующие этапы:

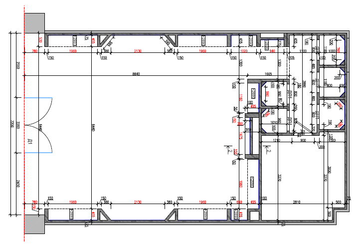
1) Разработка проектной документации. Об этом более подробно мы уже излагали здесь. Добавим только, что любые проектные работы начинаются с грамотно составленного обмерочного плана помещения с указанием всех необходимых размеров и существующих коммуникаций.

Обмерочный план одного из наших объектов.
Обмерочный план одного из наших объектов.

2) Бюджетирование. На основании документации согласно п.1 рассчитывается смета, требующая внимания к деталям – от стоимости материалов до транспортных расходов и рабочей силы.

3) Согласования с администрацией ТЦ.

Работа в закрытом пространстве торгового центра требует большого количества разрешений (наряд-допуск на огневые работы, наличие у рабочего персонала необходимой группы по электробезопасности и т.д.).

Технические аспекты ремонта.

Ремонт в ТЦ проходит с учетом технических особенностей пространства. Рассмотрим ключевые элементы:

Электроснабжение.

Электрика – один из самых важных элементов в деле ремонта. Торговые центры обычно выделяют арендаторам лимитированную мощность. Если помещение требует большего энергопотребления (например, из-за большого числа холодильных установок или светодиодных экранов), нужно заранее предусмотреть запрос на увеличение мощности.

Вентиляция и кондиционирование.

Часто ТЦ имеют централизованную систему вентиляции, однако ваш дизайн-проект может требовать дополнительных решений. Например, ресторану или кафе может понадобиться мощная вытяжка, чтобы устранить запахи.

Пожарная безопасность.

Все строительно-монтажные работы должны соответствовать нормам пожарной безопасности. Это включает установку противопожарных дверей, огнестойких материалов и автоматических систем пожаротушения.

Тщательное управление графиком работ.

Работа в ночное время и жесткие временные рамки требуют четкой координации работников. Привлекайте специалистов, которые имеют опыт работы в условиях ТЦ – это сократит вероятность срывов сроков.

Контроль качества.

Постоянный авторский надзор на этапе реализации проекта – залог качественного результата. Обращайте внимание на соблюдение технологических норм, соответствие утвержденному проекту и аккуратность выполнения мелких деталей.

Юридические вопросы и гарантийные обязательства.

Законодательный и юридический аспект играет важную роль. Наши рекомендации:

  • Заключать официальный договор с подрядчиком, прописывая сроки, этапы работ и гарантии.
  • Проверять соблюдение всех законодательных норм, включая СНИПы, пожарные стандарты и санитарные правила.
  • Получить от подрядчика гарантию на выполненные работы, особенно в вопросах инженерных систем.

Частые ошибки, которых стоит избегать.

  1. Игнорирование согласований с ТЦ. Незаконная реконструкция может привести к штрафам и даже остановке работ.
  2. Неправильная оценка сроков. Работы в ТЦ часто занимают больше времени из-за ограничений на доступ в помещение и требований к проведению строительно-монтажных работ.
  3. Из-за некорректно составленной и согласованной рабочей документации в процессе ремонта возникают несогласованные работы, приводящие к увеличению стоимости и нередко, к срокам производства работ.
  4. Снижение расходов на материалы. Закуп низкокачественных материалов и некомплектного оборудования заказчиком. Поставщикам ставиться задача предоставить наиболее дешевые варианты (например светильников), что при монтаже приводит к индивидуальной доработке данной продукции под требования внешнего вида к оформлению магазина (наиболее часто встречающаяся проблема). Сюда же относиться замена поставляемого оборудования на аналогичное, которое есть в наличии у поставщика, без согласования с подрядчиком.

Ремонт помещения в торговом центре – это сложная, но решаемая задача, которая требует грамотного сочетания дизайна, инженерии и организации. Подход профессионалов всегда направлен на создание не просто эстетичного пространства, но и коммерчески эффективного объекта, который будет полностью соответствовать требованиям арендатора, концепции ТЦ и нормативам.

Наши сайты: https://skmicar.ru и https://skmicar-ekb.ru

Еще больше информации на нашем Telegram-канале!

Читать так же:

Проектирование помещений и зданий: экономия времени и денег заказчика.

ЗАВЕРШЕН РЕМОНТ ПОМЕЩЕНИЯ МАГАЗИНА В ТЦ ЗА 7 ДНЕЙ!

Экономика и стройка: какие цены на строительные услуги нам ждать в дальнейшем.