Найти в Дзене

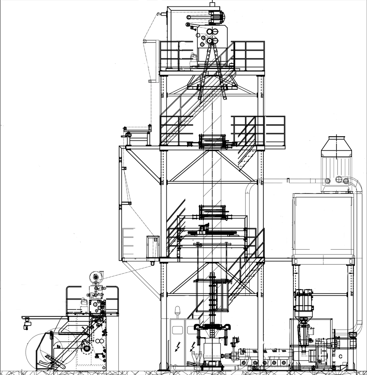
Процессы экструзии выдувных пленок и состав линии.

Загрузчик сырья (доп опция) - загружает сырье в бункер накопитель, бункер для сушки сырья, шнековый или гравиметрический дозаторы Накопительный бункер для сырья, может быть заменен на: Шнековые дозаторы (доп опция) - осуществляет дозирование материала по заданной насыпной плотности рассчитывая грамм за оборот Мотор редуктор - является приводной частью шнека Зона загрузки сырья, в современных линиях оснащается рубашкой охлаждения и шлицевой втулкой - является первой зоной шнека, служит для подачи материала и образования полимерной пробки. Конфигурация двух типов: совмещенная с гильзой или отдельной частью присоединяясь к основной гильзе через фланец. Шнековая пара (шнек-гильза) - плавит, перемешивает и подает расплав в сменник СИТ. Дополнительные устройства входящие в узел: Сменник СИТ или фильтр расплава - выполняет функцию фильтрации расплава, параллельно создает необходимое для процесса давление. Дополнительные устройства входящие в узел: Адаптер - соединение между сеточным узлом и ф

Загрузчик сырья (доп опция) - загружает сырье в бункер накопитель, бункер для сушки сырья, шнековый или гравиметрический дозаторы

Накопительный бункер для сырья, может быть заменен на:

  • Сушильная камера (доп опция) - подсушивает сырье перед подачей в дозатор или зону загрузки
  • Гравиметрическая система дозирования (доп опция) - осуществляет дозирование материалов по весу, объему и подготавливает смесь для дальнейшей подачи в зону загрузки сырья

Шнековые дозаторы (доп опция) - осуществляет дозирование материала по заданной насыпной плотности рассчитывая грамм за оборот

Мотор редуктор - является приводной частью шнека

Зона загрузки сырья, в современных линиях оснащается рубашкой охлаждения и шлицевой втулкой - является первой зоной шнека, служит для подачи материала и образования полимерной пробки. Конфигурация двух типов: совмещенная с гильзой или отдельной частью присоединяясь к основной гильзе через фланец.

Шнековая пара (шнек-гильза) - плавит, перемешивает и подает расплав в сменник СИТ. Дополнительные устройства входящие в узел:

  • нагреватели - нагревают гильзу, установлены с внешней стороны
  • вентиляторы охлаждения - поддерживают заданную температуру гильзы, включаясь если температура превышает заданный диапазон
  • термопары - измеряют температуру гильзы
  • датчик давления и температуры расплава - измеряет температуру и давление самого расплава

Сменник СИТ или фильтр расплава - выполняет функцию фильтрации расплава, параллельно создает необходимое для процесса давление. Дополнительные устройства входящие в узел:

  • нагреватели - нагревают узел до заданной температуры
  • термопара - измеряет температуру узла

Адаптер - соединение между сеточным узлом и формующей головкой. Дополнительные устройства входящие в узел:

  • нагреватели - нагревают узел до заданной температуры
  • термопара - измеряет температуру узла

Узел вращения экструзионной головки (доп опция) - так как любая выдувная пленка имеет разнотолщинность, при вращении разбрасывает ее по периметру рукава для исключения наложения друг на друга тонких и толстых участков пленки (устраняет шишки на рулоне).

Экструзионная головка - служит для формирования рукава.

  • нагреватели - нагревают узел до заданной температуры
  • термопары - измеряет температуру узла

Система внутреннего охлаждения рукава IBC(доп опция) - служит для охлаждения и поддержания ширины рукава с внутренней стороны. Узел состоит из:

  • система контроля ширины рукава - осуществляет управление вентиляторами высокого давления на подачу холодного воздуха и отбор нагретого воздуха из рукава
  • два вентилятора высокого давления - один нагнетает воздух в рукав, второй отводит воздух из рукава
  • чиллер и теплообменник - подготавливают нагнетаемый воздушный поток до заданной температуры
  • термопары - измеряет температуру воздуха на входе и выходе из рукава
  • ультразвуковые датчики - измеряют диаметр рукава

Датчик обрыва рукава (доп опция) - дает сигнал на контроллер управления привода шнека стоп машина, в случае обрыва рукав

Система внешнего охлаждения рукава - служит для основного охлаждения рукава

  • воздуходувка - может быть: однощелевой, двухщелевой, трехщелевой (оснащается системой лифтов доп опция).
  • вентилятор высокого давления - нагнетает воздушный поток в воздуходувку
  • дополнительные верхние кольца - служат для более эффективного охлаждения рукава с малыми коэффициентами раздува
  • термопара - измеряет температуру охлаждающего воздуха
  • система выравнивания разнотолщинности(доп опция) разновидности: регулировка потока воздуха секторами, регулировка температуры воздуха секторами, изменение окружности внутреннего кольца секторами
  • чиллер и теплообменник(доп опция) - подготавливают нагнетаемый воздушный поток до заданной температуры

Корзина (контактная или бесконтактная доп опция) - служит для поддержания и направления рукава. Может дополнительно оснащаться доп функциями:

  • внешняя защита рукава от сквозняков
  • регулировка корзины по высоте
  • бесконтактная корзина может оснащаться дополнительным чиллером и теплообменником для дополнительного охлаждения рукава выше зоны кристаллизации

Сканер измерения разнотолщинности (доп опция) - входит в систему выравнивания разнотолщинности, описанной выше.

Дополнительная корзина или направляющие (доп опция) - поддерживает правильную геометрии рукава , также может быть контактной или бесконтактной с функцией дополнительного охлаждения.

Осциллирующая башня, может быть горизонтальная или вертикального типа (доп опция) как и узел вращения головы служит для устранения шишек на рулоне.

Фальцующее устройство (доп опция) - осуществляет функцию боковых закладок при производстве фальцованных пленок

Складывающее устройство и первая тянущая пара обводных валов - складавают пленку в плоскую для дальнейшей обработки и намотки в рулон

Пара охлаждающих валов (доп опция) - осуществляет дополнительное охлаждение сложенного рукава

Линейка измерения ширины рукава (доп опция) - измеряет ширину сложенного пленки

Обводные валы - поддерживают транспортировку рукава до следующих обрабатывающих узлов

Разравнивающие валы (доп опция) - разравнивают образовавшиеся складки

Выравниватель кромки края (доп опция) - оснащаются линии с осциллирующим устройством для выравнивания рукава по центру.

Перфорирующие устройства (доп опция):

  • Холодные игольчатые - для прокола мелких отверстий на рукаве диаметром до 2 мм
  • Горячие игольчатые - для прокола и оплавления отверстий, в основном используются на пленках с высокой поперечной прочностью и низким удлинением, диаметром до 2 мм
  • Прорубные - для вырубки отверстий диаметром более 2 мм
  • Лазерные - для перфорации диаметром менее 0,3 мм

Устройство для активации поверхности (доп опция) - для дальнейшего нанесения печати или клея.

Охлаждающие валы (доп опция) - охлаждают пленку после активации поверхности, избегая слипания в рулоне.

Боковые ножи (доп опция) - для распускания рукава с одной стороны при производстве сложенного полурукава

Обрезные ножи для кромки (доп опция) - для обрезки кромки при производстве полотен

Распускные ножи (доп опция) - распускают полотна на более узкие

Банановалы - разглаживающие ролики

Намотчик рулонов - намотка рукава или полотен