Добавить в корзинуПозвонить
Найти в Дзене
INMYROOM

До и после: как сделать из типовой квартиры жилье мечты. Реальный пример с тремя детскими зонами

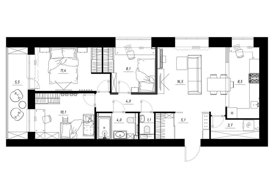
Невероятная переделка четырехкомнатной квартиры Семья с тремя сыновьями живет в четырехкомнатной квартире площадью 78 квадратных метров в Реутове. Дизайнер Елена Бунак помогла организовать пространство так, чтобы у каждого ребенка появился свой уголок, а родители сохранили личное пространство. Рассказываем, как распределить квадратные метры с умом. Место: Реутов Метраж: 78 кв. м Комнаты: 4 Cанузлы: 2 Высота потолков: 2,55 м Дизайн: Елена бунак Стилист: Евгения Мельникова Фото: Евгений Гнесин На десяти квадратных метрах разместили все необходимое для двух детей. «В отделке стен использованы сразу несколько приемов: обои, напоминающие натуральный лен, и МДФ-панели», — рассказывает дизайнер. Верхнюю часть стены превратили в магнитно-маркерную доску. Для хранения канцелярии придумали удобное решение — обычный кухонный рейлинг, на котором разместили фломастеры и другие принадлежности. Старшему сыну, увлекающемуся робототехникой и 3D-печатью, выделили отдельную комнату. «Для него необходимо
Оглавление

Невероятная переделка четырехкомнатной квартиры

Семья с тремя сыновьями живет в четырехкомнатной квартире площадью 78 квадратных метров в Реутове. Дизайнер Елена Бунак помогла организовать пространство так, чтобы у каждого ребенка появился свой уголок, а родители сохранили личное пространство. Рассказываем, как распределить квадратные метры с умом.

Место: Реутов
Метраж: 78 кв. м
Комнаты: 4
Cанузлы: 2
Высота потолков: 2,55 м
Дизайн: Елена бунак
Стилист: Евгения Мельникова
Фото: Евгений Гнесин
 📷
📷
 📷
📷

Главное из статьи:

  • Каждый ребенок получил свою территорию;
  • Общие зоны остались просторными;
  • Рабочие места организованы без потери площади;
  • Много места для хранения детских вещей;
  • Пространство растет вместе с детьми.

Фото до ремонта:

-4
-5
-6
-7
-8
-9

Как организовали комнату для двух младших

На десяти квадратных метрах разместили все необходимое для двух детей. «В отделке стен использованы сразу несколько приемов: обои, напоминающие натуральный лен, и МДФ-панели», — рассказывает дизайнер. Верхнюю часть стены превратили в магнитно-маркерную доску. Для хранения канцелярии придумали удобное решение — обычный кухонный рейлинг, на котором разместили фломастеры и другие принадлежности.

 📷
📷
 📷
📷
 📷
📷

Территория подростка: пространство для творчества

Старшему сыну, увлекающемуся робототехникой и 3D-печатью, выделили отдельную комнату. «Для него необходимо было предусмотреть огромную площадь для воплощения всех идей и одновременно не загромоздить пространство маленького помещения», — объясняет дизайнер. В комнате разместили книжный шкаф, рабочую зону и кровать с подъемным механизмом для хранения.

 📷
📷
 📷
📷
 📷
📷

Как организовали рабочие места

Оригинальное решение — рабочие столы на подоконниках. «Глубина у него около 70 сантиметров, это более чем достаточно для письменного стола», — отмечает дизайнер. В столешницах сделали специальные вырезы для циркуляции воздуха. Откосы окон выполнили из сэндвич-панелей, что позволило спрятать проводку и организовать освещение.

 📷
📷
 📷
📷

Общая зона: место для всей семьи

Гостиная стала центром семейной жизни. Здесь разместили большой раскладной диван, место для занятий музыкой (синтезатор), игровую зону. Кирпичная стена добавляет характера помещению и улучшает шумоизоляцию. Раздвижная перегородка отделяет кухонную зону, но при необходимости пространство можно объединить.

 📷
📷
 📷
📷
 📷
📷

Умные системы хранения

В детских продумали места для игрушек, книг и одежды. Под кроватями разместили выдвижные ящики. В шкафах предусмотрели секции разной высоты для одежды на вешалках и стопок. «При распределении мест хранения мы учитывали, как будут меняться потребности детей с возрастом», — подчеркивает дизайнер.

 📷
📷
 📷
📷
 📷
📷

Особенности освещения в детских

В детской для младших отказались от центральной люстры. «Она здесь не нужна ни для красоты, ни для функционала. Достаточно точечного освещения в зоне для чтения, в рабочей зоне, зоне игры и рисования», — объясняет дизайнер. Такое решение делает пространство более функциональным и безопасным.

 📷
📷

Планы на будущее

Интерьер спланирован с учетом роста детей. «Когда старший сын уедет учиться, средний переедет в его комнату, а младший займет верхнее место», — делится дизайнер. Мебель и отделка выбраны достаточно нейтральными, чтобы служить долго и подходить для разных возрастов.

Этот проект показывает, как можно организовать комфортное пространство для большой семьи даже в типовой квартире. Ключ к успеху — тщательное планирование, учет потребностей каждого члена семьи и грамотное использование каждого сантиметра площади. При этом квартира не выглядит перегруженной — в ней есть место и для уединения, и для общения всей семьей.

 📷
📷
 📷
📷

Сейчас читают: