Найти в Дзене
Мастерская дизайнера

Варианты планировки - душевая и ванная в квартире, кухня с ТВ над столешницей и другие решения

В этой заметке отчитываюсь над продолжением работы над планировкой квартиры. Предыдущие варианты рассмотрены здесь: Новые решения, по согласованию с заказчиками, не предусматривают какого-либо переноса перегородок. Посмотрите по ссылке ниже трехмерную модель в Planner 5D: В этом варианте следующие отличия и решения: Кухня. Сокращен фронт кухни и уменьшено количество шкафов за счет, в том числе, использования компактной встроенной стиральной машины, использования шкафов 45 см вместо 60 см, и отсутствия пенала на краю кухни рядом с пеналом со встроенным духовым шкафом. Добавлен двухдверный холодильник. Душевая. Малый санузел стал душевой комнатой. В нем отлично помещается просторный душ в строительном исполнении, и небольшая угловая подвесная раковина. Ванная. В ванной комнате по правой стороне стоит ассиметричная угловая ванна. По левой стороне унитаз и длинная тумба с раковинами. Спальня, гостиная и прихожая остались без значительных изменений. Посмотрите по ссылке ниже трехмерную
Оглавление

В этой заметке отчитываюсь над продолжением работы над планировкой квартиры.

Предыдущие варианты рассмотрены здесь:

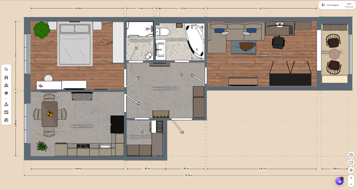
Новые решения, по согласованию с заказчиками, не предусматривают какого-либо переноса перегородок.

Вариант 8.

Посмотрите по ссылке ниже трехмерную модель в Planner 5D:

Create your dream home now @Planner5d

Эскиз планировки в Planner 5D
Эскиз планировки в Planner 5D
Трехмерный вид в Planner 5D
Трехмерный вид в Planner 5D

В этом варианте следующие отличия и решения:

Кухня. Сокращен фронт кухни и уменьшено количество шкафов за счет, в том числе, использования компактной встроенной стиральной машины, использования шкафов 45 см вместо 60 см, и отсутствия пенала на краю кухни рядом с пеналом со встроенным духовым шкафом. Добавлен двухдверный холодильник.

Душевая. Малый санузел стал душевой комнатой. В нем отлично помещается просторный душ в строительном исполнении, и небольшая угловая подвесная раковина.

Ванная. В ванной комнате по правой стороне стоит ассиметричная угловая ванна. По левой стороне унитаз и длинная тумба с раковинами.

Спальня, гостиная и прихожая остались без значительных изменений.

Вариант 8 - план
Вариант 8 - план
Вариант 8 - план с размерами
Вариант 8 - план с размерами

Вариант 9.

Посмотрите по ссылке ниже трехмерную модель в Planner 5D:

Create your dream home now @Planner5d
Вариант 9 в Planner 5D
Вариант 9 в Planner 5D
Вид сверху в Planner 5D
Вид сверху в Planner 5D

В этом варианте существенно отличаются кухня, ванная и гостиная.

Кухня. Нижние шкафы кухни продлены практически до окна, но над двумя крайними шкафами нет верхних шкафов, а на стене над ними размещен телевизор. Духовка расположена внизу под варочной панелью. Обеденный стол стоит вдоль длинной стороны комнаты.

Ванная. Другое расположение раковины, которая стоит рядом с прямой ванной напротив входа в ванную. Слева от нее поместился пенал. Унитаз немного вынесен по левой стене, но имеет удобное местоположение, и находится на стороне стояка канализации, в связи с чем не будет трудностей с его установкой в этом месте.

Душевая. Здесь вместо угловой прямая полукруглая настенная раковина, а между ней и душевой есть место для табурета.

Гостиная-кабинет. Правая комната, которая играет в этих планировках роль гостиной и кабинета, имеет другое расположение мебели. Шкаф для хранения стоит вдоль боковой стены. Диван-кровать прямой. Письменный стол переехал на противоположную сторону, и вместе со стеллажом на против образует комфортную рабочую зону.

План вариант 9
План вариант 9
Вариант 9 с комментариями
Вариант 9 с комментариями

Эти варианты способны значительно сэкономить средства на ремонте, так как не требуют согласования планировки, и их можно реализовать за счет использования готовой модульной и фабричной мебели российского производства.

Далее пройдет очередное согласование с заказчиками, и дальнейшая корректировка планировки, если в этом будет необходимость.