Найти в Дзене
Мастерская дизайнера

Варианты планировки в трехкомнатной квартире без переноса перегородок

Продолжаю работу над планировками в трехкомнатной квартире. Это первый этап работы, предыдущий подготовительный этап описан здесь: Пожелания заказчиков строятся на том, что нам нужно избегать переноса перегородок, чтобы на ввязываться в согласование перепланировки по индивидуальному проекту. Однако согласование по эскизу может облегчить этот процесс, и поэтому я здесь предлагаю и такие решения. Почитать о согласовании по эскизу можно здесь: https://www.mosgorbti.ru/granted-document-detail-popup.aspx?id=93 Некоторые варианты из семи, представленных здесь, я построил в Planner 5D, чтобы облегчить восприятие планировки, улучшить наглядность подачи. Начну с варианта 4, который не предполагает перепланировки и даже согласования по эскизу. В этом варианте по просьбе заказчиков я рассмотрел решение, в котором спальня расположена в соседней с кухней комнате, а гостиная примыкает к лоджии. Все помещения позволяют разместить все необходимое оборудование и мебель. Стиральная машина расположена

Продолжаю работу над планировками в трехкомнатной квартире.

Это первый этап работы, предыдущий подготовительный этап описан здесь:

Пожелания заказчиков строятся на том, что нам нужно избегать переноса перегородок, чтобы на ввязываться в согласование перепланировки по индивидуальному проекту.

Однако согласование по эскизу может облегчить этот процесс, и поэтому я здесь предлагаю и такие решения.

Почитать о согласовании по эскизу можно здесь: https://www.mosgorbti.ru/granted-document-detail-popup.aspx?id=93

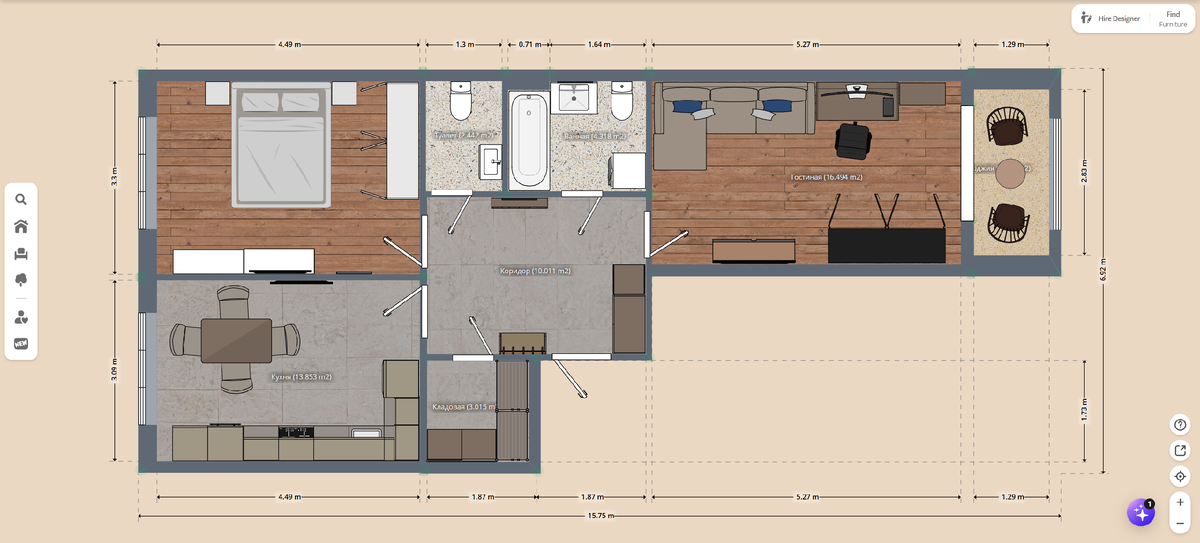
Некоторые варианты из семи, представленных здесь, я построил в Planner 5D, чтобы облегчить восприятие планировки, улучшить наглядность подачи.

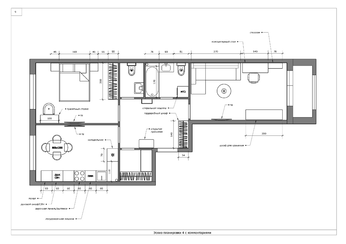
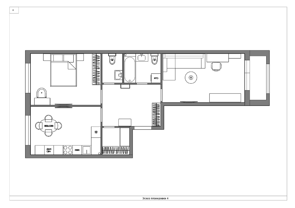
Начну с варианта 4, который не предполагает перепланировки и даже согласования по эскизу.

В этом варианте по просьбе заказчиков я рассмотрел решение, в котором спальня расположена в соседней с кухней комнате, а гостиная примыкает к лоджии.

Все помещения позволяют разместить все необходимое оборудование и мебель. Стиральная машина расположена в большем санузле. Кухня - угловая.

Вариант 4 в Planner 5D
Вариант 4 в Planner 5D

Посмотреть трехмерную варианта 4 можно по этой ссылке:

Create your dream home now @Planner5d

Варианты 1-3 показаны только на планах, и они в целом подобны варианту 4, отличаются расположением стиральной машины и вариантом санузла.

Варианты 5-7 сделаны по другому принципу. В них кухня и гостиная находятся в левом крыле квартиры, и в перегородке между ними устанавливается раздвижная дверь. Это было первоначальной просьбой заказчиков, и ее можно реализовать без подготовки проекта перепланировки, по эскизу.

Вариант 5 в Planner 5D
Вариант 5 в Planner 5D
Create your dream home now @Planner5d

В седьмом варианте, который похож на пятый, есть изменения в кухне - она П-образная, вместо двери гармошкой стоит раздвижная дверь, и другая планировка в санузле.

Вариант 7 в Planner 5D
Вариант 7 в Planner 5D

Посмотреть в 3D можно по ссылке ниже:

Create your dream home now @Planner5d

Шестой вариант отличается местом расположения раздвижной перегородки, которая расположена ближе ко входу на кухню.

Вариант 6 в Planner 5D
Вариант 6 в Planner 5D

Вариант 6 в 3D:

Create your dream home now @Planner5d

Planner 5D позволяет оперативно рассмотреть в наглядной форме в объеме различные планировочные решения, тем и удобен.

Далее, после обсуждения с заказчиками, работа над планировками продолжится.