Найти в Дзене
Полезнобрь

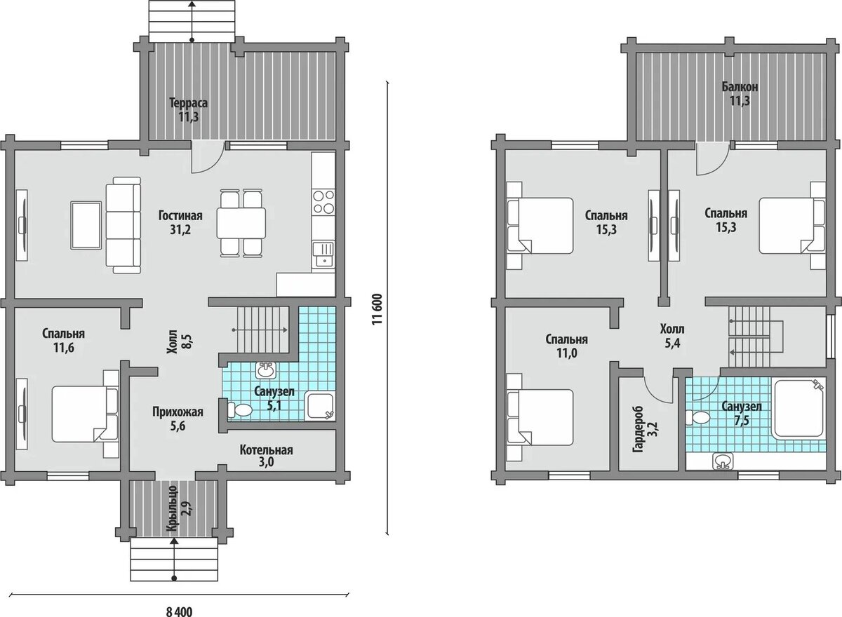
Роман с загородной жизнью в доме «Гармония»

Готовый дом «Гармония»
Готовый дом «Гармония»

Когда жизнь в городской коробке напоминает консерву с сюрпризами в виде соседских дрелей и ежедневного квеста «найди парковку», самое время задуматься о загородной идиллии. Так началась наша история — история, как мы нашли «Гармонию». И нет, это не философия или практика йоги. Это настоящий дом, друзья, от компании «Дальние дачи».

Вы спросите: «Почему именно Гармония?» Ну, во-первых, когда тебе предлагают фундамент, стены и крышу в одном пакете, причем не в виде головоломки из «сделай сам», а в виде полноценного дома — это уже повод для счастья. А тут еще ленточный армированный фундамент, гидроизоляция, утепление пенопластом на 50 мм. То есть, по-русски говоря, ни вода, ни холод туда не просочатся, даже если природа решит нас удивить.

И вот представьте: стены из оцилиндрованного бревна. Но не просто бревна, а «только зимний лес». Я не знаю, кто эти деревья уговаривал расти зимой, но, говорят, именно такая древесина крепче всего держит тепло и атмосферу уюта. На крыше — металлочерепица с загадочным кодом «ПЭ-01 8017». Это звучит так, как будто пришло из будущего. И правда, выглядит стильно, защищает надежно — плюс сразу чувствуешь себя обладателем чего-то космически современного.

Но главное волшебство дома «Гармония» в его начинке. Откройте дверь, и первое, что встречает вас — ПВХ-окна REHAU. Они такие тихие, что даже если ваши соседи (вдруг!) будут что-то праздновать с балалайками и фейерверками, вы этого не услышите. Входная дверь — металлическая, утепленная. Тут даже волк из сказки не прорвется.

проект готового дома «Гармония»
проект готового дома «Гармония»

А дальше начинается шоу. Полы и потолки отделаны чистовато и аккуратненько. Сантехника на первом этаже — душ, раковина, унитаз. И не просто «труба торчит», а все под ключ. Вывод под стиральную машину, радиаторы отопления, светильники и розетки — мечта любого, кто терпел квесты с «бригадирами» и ремонтом своими руками.

— А что с коммуникациями? — спросите вы.
Да все как в лучших домах Лондона и Парижа! Магистральный газ уже подведен, в бой готов двуконтурный котел NAVIEN или BOSCH. Вода из собственной скважины (50-70 метров — чуть ли не до другой стороны Земли пробурили), электричество разведено, счетчик установлен. Очищать воду будет биостанция ТОПАС — звучит как название премиального корабля, и, возможно, именно так ваш дом и будет «плыть» в гармонии и чистоте.

Забор вокруг участка? Конечно. Высота — 2 метра, чтобы никто излишне любопытный не заглядывал. Ворота распашные, калитка на месте — защищайтесь от нежданных гостей, сколько душе угодно.

А документы? Да пожалуйста! Свидетельства о собственности, кадастровые паспорта, технические бумаги — все в наличии, как пирожки к обеду. Даже газ и его поставка официально подтверждены. Мало того, компания «Дальние дачи» аккредитована ПАО «Сбербанк» — ипотеку можно оформить за 10 минут. Как? Просто позвоните Павлу Ивановичу по телефону. Он, говорят, и сонным объяснит, почему Гармония — ваш лучший выбор.

Но подождите. Если у вас еще остались сомнения, «Дальние дачи» предлагают оторвать себя от суеты и пожить в коттедже бесплатно. Два дня! Представьте: вы с бокалом чая, озеро у порога, дом в объятиях соснового леса. Если решите, что «Гармония» — ваша судьба, два дня засчитают в стоимость дома. По-моему, это самое честное свидание в жизни.

Так что, друзья, если вы мечтаете об уюте, тепле и тишине, у компании «Дальние дачи» есть предложение, от которого трудно отказаться. Записывайтесь на просмотр, открывайте дверь в загородную сказку. Только будьте готовы: дом «Гармония» может влюбить вас в себя с первого взгляда. И это будет любовь на всю жизнь.