Найти в Дзене
Мастерская дизайнера

Обмерный план и начальная модель двухкомнатной квартиры в Planner 5D

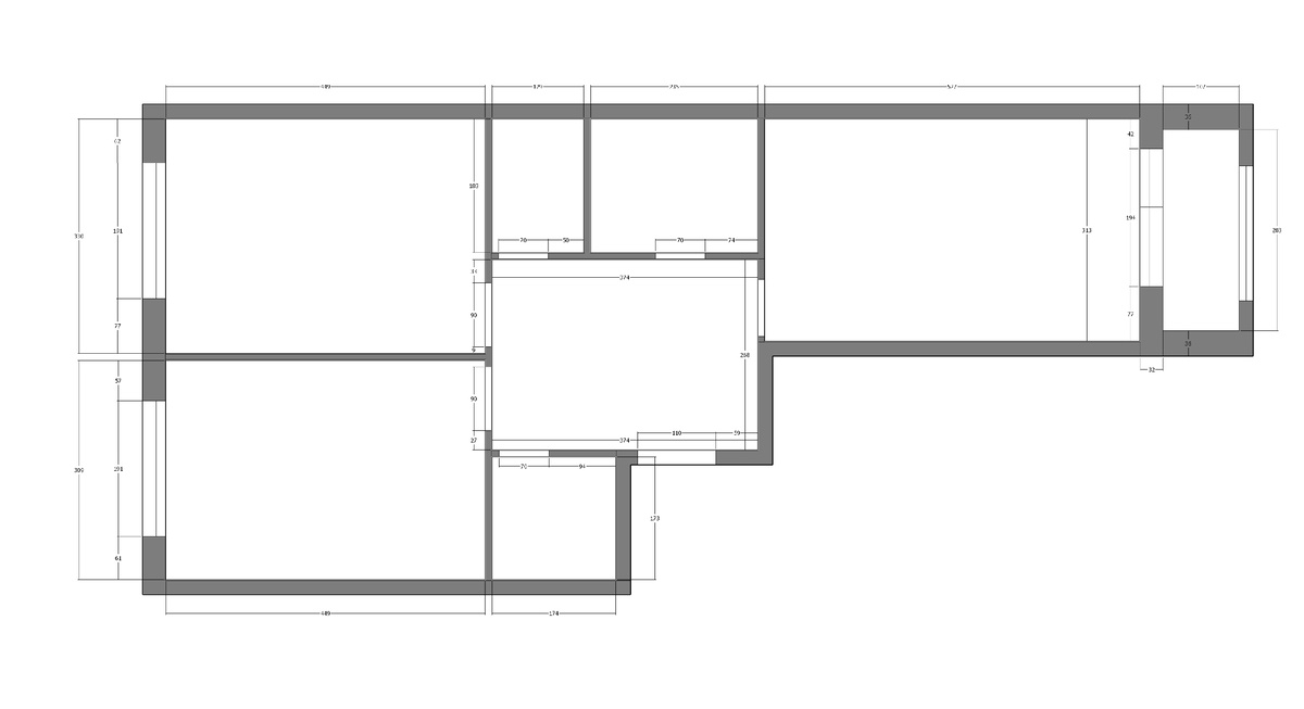
Начальный подготовительный этап работы над дизайн-проектом квартиры предполагает проведение замеров, и подготовку обмерного плана и трехмерной модели коробки квартиры, имея ввиду трехмерную модель с показом стен, перегородок, окон и дверных проемов. Стартовый план я построил в точном редакторе SketchUp, этот план отражает стартовую планировку с точностью до 1-3 см. Этот план позволит далее в SketchUp продолжить работу и сделать уже трехмерную модель, и строить планировочные решения в 2D - и этим я займусь тоже на текущем первом этапе работы. В дополнение к этому плану, я начал практиковать на первом планировочном этапе использование современных онлайн 3D-редакторов, которые позволяют ускорить работу с планировкой за счет использования простых инструментов построения моделей, и поднять наглядность - так как оценивать планировочные решения в объеме проще и понятнее. Таким редактором для этого проекта я выбрал Planner 5D, который позволил мне оперативно, зная точные размеры квартиры, соз

Начальный подготовительный этап работы над дизайн-проектом квартиры предполагает проведение замеров, и подготовку обмерного плана и трехмерной модели коробки квартиры, имея ввиду трехмерную модель с показом стен, перегородок, окон и дверных проемов.

Стартовый план я построил в точном редакторе SketchUp, этот план отражает стартовую планировку с точностью до 1-3 см.

Обмерный план квартиры
Обмерный план квартиры

Этот план позволит далее в SketchUp продолжить работу и сделать уже трехмерную модель, и строить планировочные решения в 2D - и этим я займусь тоже на текущем первом этапе работы.

В дополнение к этому плану, я начал практиковать на первом планировочном этапе использование современных онлайн 3D-редакторов, которые позволяют ускорить работу с планировкой за счет использования простых инструментов построения моделей, и поднять наглядность - так как оценивать планировочные решения в объеме проще и понятнее.

Таким редактором для этого проекта я выбрал Planner 5D, который позволил мне оперативно, зная точные размеры квартиры, создать трехмерную стартовую модель и предоставить ссылку для ее просмотра в режиме онлайн:

Create your dream home now @Planner5d

Можно перейти по этой ссылке, и в динамичном режиме свободно посмотреть как план, так и трехмерную модель квартиры с любого ракурса.

Это очень удобно, и позволит моим заказчикам уже на первом этапе работы над планировкой оценивать ее не только на плане, но и в таком наглядном режиме.

Но это дело продолжения работы, пока же прикрепляю эскизы стартовой модели, сделанные в Planner 5D.

План квартиры в Planner 5D
План квартиры в Planner 5D

Далее пойдет разработка эскизов планировки в SketchUp, и показ лучших решений в Planner 5D.

Задача - найти оптимальное планировочное решение, по возможности без перепланировки или с минимальным затрагиванием перегородок.