Добавить в корзинуПозвонить
Найти в Дзене
Лавка Сантехника

В каких случаях и почему стоит выбирать акриловую ванну?

Акриловые ванны стали одним из самых популярных решений на рынке сантехники, и это не случайно. Они обладают рядом уникальных преимуществ и подходят для различных ситуаций. Давайте разберём, когда и почему стоит выбрать именно на акриловую ванну.
Акриловые ванны выпускаются в большом количестве форм, размеров и стилей. Если вам нужен стильный акцент в ванной комнате, акрил предоставляет широкий выбор — от элегантных моделей со строгими линиями до отдельно стоящих ванн и нестандартных решений круглой или угловой формы. Акриловая ванна идеально подходит для квартир и современных интерьеров, её можно дополнить подсветкой, гидромассажем и смесителем на борт.
Благодаря лёгкому весу и податливости акрила, производители создают ванны самых разных конфигураций. Если пространство ванной комнаты ограничено или имеет сложные углы, акрил позволяет подобрать модель, которая оптимально впишется в интерьер.
Акриловые ванны имеют отличные теплоизоляционные свойства: они долго сохраняют тепло во
Оглавление

Акриловые ванны стали одним из самых популярных решений на рынке сантехники, и это не случайно. Они обладают рядом уникальных преимуществ и подходят для различных ситуаций.

Давайте разберём, когда и почему стоит выбрать именно на акриловую ванну.

Отдельно стоящая акриловая ванна
Отдельно стоящая акриловая ванна

Ситуации, в которых стоит выбирать акриловую ванну

1. Вы обновляете интерьер ванной комнаты и хотите современный дизайн.


Акриловые ванны выпускаются в большом количестве форм, размеров и стилей. Если вам нужен стильный акцент в ванной комнате, акрил предоставляет широкий выбор —
от элегантных моделей со строгими линиями до отдельно стоящих ванн и нестандартных решений круглой или угловой формы.

Акриловая ванна идеально подходит для квартир и современных интерьеров, её можно дополнить подсветкой, гидромассажем и смесителем на борт.

2. У вас небольшая ванная комната или сложная планировка помещения.


Благодаря лёгкому весу и податливости акрила, производители создают ванны самых разных конфигураций. Если пространство ванной комнаты ограничено или имеет сложные углы, акрил позволяет подобрать модель, которая оптимально впишется в интерьер.

Сложная планировка маленькой ванной комнаты
Сложная планировка маленькой ванной комнаты

3. Важно, чтобы ванна сохраняла тепло.


Акриловые ванны имеют отличные теплоизоляционные свойства: они долго сохраняют тепло воды. Это идеальный выбор для тех, кто любит подолгу наслаждаться горячей ванной.

Идеальный выбор для тех, кто любит подолгу наслаждаться горячей ванной.
Идеальный выбор для тех, кто любит подолгу наслаждаться горячей ванной.

4. Вы не хотите усложнять перевозку и установку.


Акрил — лёгкий материал. Переносить такую ванну проще даже без сложного оборудования. Кроме того, она не требует сверхмощных креплений, что ускорит процесс установки.

5. Вам важна простота ухода.


Акриловые ванны имеют гладкую, непористую поверхность, которая не впитывает грязь и легко очищается обычными моющими средствами. Если вы хотите сократить время на уборку ванной комнаты, это становится большим преимуществом.

6. Есть дети или пожилые люди, которым требуется безопасность.


Поверхность акриловой ванны менее скользкая, чем, например, у стальных или чугунных моделей. Это делает её более безопасной, особенно если в доме есть дети или люди с ограниченной подвижностью.

Поверхность акриловой ванны менее скользкая, чем, например, у стальных или чугунных моделей. Это делает её более безопасной, особенно если в доме есть дети или люди с ограниченной подвижностью.
Поверхность акриловой ванны менее скользкая, чем, например, у стальных или чугунных моделей. Это делает её более безопасной, особенно если в доме есть дети или люди с ограниченной подвижностью.

7. Вы ищете доступное решение.

Акриловые ванны, как правило, дешевле чугунных или брендовых моделей из других материалов. При этом вы получаете высокую функциональность и стильный внешний вид.

Когда акриловая ванна может НЕ подойти?

Несмотря на множество плюсов, есть ситуации, в которых стоит обратить внимание на другие материалы:

  • Если вода в вашем регионе проходит с высокой концентрацией агрессивных химических веществ. Это может постепенно повлиять на поверхность акрила.
  • · Если вы активно пользуетесь очень абразивными чистящими средствами. Это может повредить гладкую поверхность.
  • Если требуется исключительно экстремальная прочность. Для промышленных или нестандартных нагрузок лучше рассматривать чугунные или стальные ванны

Особенности выбора акриловой ванны

Выбирая оптимальный вариант, обращайте внимание не только на продукцию, но и на особенности вашей ванной комнаты, ее дизайн. Это необходимо для создания максимального комфорта с учетом разных критериев. Не стоит забывать и о собственном росте, который также требуется учесть при выборе ванны из акрила.

Асимметричная ванна с нестандартной формой
Асимметричная ванна с нестандартной формой

Размеры и формы

Первое, на что необходимо обратить внимание при подборе акриловой ванны — ее размеры и формы. Здесь возможны такие варианты:

Прямоугольные ванны из акрила как классические варианты. Подходят в большинстве случаев. Имеют стандартные размерные характеристики — 150х70 см, 170х70 см, 180х80 см.

Угловые ванны, которые дают возможность экономить пространство. Они станут отличным решением для небольших ванных комнат. Размеры варьируются в зависимости от угла и радиуса закругления. Это дает возможность подбирать продукцию под определенные параметры.

Асимметричные ванны с нестандартной формой, которые устанавливают в оригинальных интерьерах. Зачастую имеют один более глубокий конец для большего комфорта.

Отдельно стоящие ванны относятся к элегантным и стильным вариантам, установка которых происходит в центре помещения. Размеры и формы произвольные.

Подбирайте продукцию проверенных брендов, чтобы наверняка получить длительную и беспроблемную эксплуатацию.

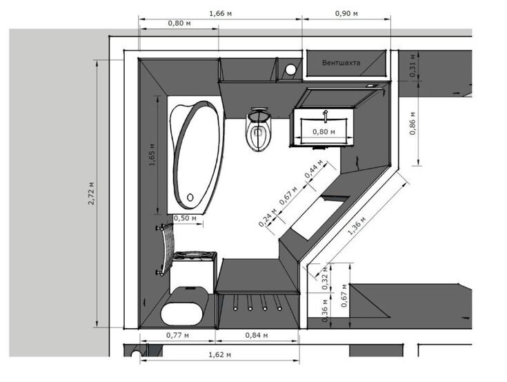
Выбор размера ванны под ванную комнату

Ванная комната 5,3 м2
Ванная комната 5,3 м2

Чтобы ассортимент акриловых ванн и разнообразие выбора не создало дополнительных проблем при подборе, стоит учитывать габариты своей ванной комнаты.

Для этого обратите внимание на такие пункты:

  1. Предварительно измеряется свободное пространство в помещении для определения точного расположения ванны.
  2. Выделяется место для свободного прохода между ванной, стенами, мебелью и иными элементами в помещении.
  3. Учитываются габариты прочих сантехнических конструкций — унитаза, раковины, стиральной машины и т.д.

Правильно подобранная акриловая ванна обеспечит комфорт пользования и не создаст дискомфорта в помещении.

Выбор ванны по глубине

Ванны из акрила доступны с разной глубиной, чтобы пользователь мог подобрать для себя оптимальное изделие. Стандартные значения, рассчитанные под среднестатистического человека, составляют 45-55 см. Этого достаточно для комфортного погружения в воду, где при желании можно и полностью окунуться. Однако ориентироваться стоит на такие значения:

● Для человека среднего роста достаточно глубины 45-50 см.

● Высоким людям лучше отдать предпочтение глубине 55-60 см.

● При подборе отдельной детской модели, а также для людей низкого роста достаточно ванны с глубиной до 40 см.

Выбирая лучшие акриловые ванны, необходимо учитывать и толщину акрилового листа. Чем она больше, тем дольше обычно служит изделие благодаря высокой прочности. Толщина листа способствует и сохранению тепла, что дает возможность снизить расход горячей воды. Также можно подумать о дополнительном функционале, например, гидро- или аэромассаж, подсветку, поддержание температуры воды и т.д.

#ваннаякомнатадизайн #ванна #ванная #дизайн