Найти в Дзене

Мастерская из ЛСТК по ремонту обуви, проектирование и строительство

Малые предприятия — основные заказчики быстровозводимых зданий с каркасом ЛСТК. Основные преимущества таких строений — доступная стоимость, надежность, долговечность и пожаробезопасность. По данным ВНИИПО, они имеют IV степень огнестойкости. Требования к таким промышленным объектам, как мастерская по ремонту обуви, включают прочность пола, сжатые сроки строительства, доступность в эксплуатации и мобильность. ЛСТК-технология позволяет обеспечить соответствие всем этим требованиям. Сооружения обладают не только низкой теплопроводностью, но и высокой огнестойкостью. Располагать постройку лучше в точках с высокой проходимостью, это увеличит шансы привлечь больше посетителей. Важно избегать соседства с конкурентами, чтобы не делить потенциальных заказчиков. Идеальный участок — на пути будущих клиентов. Это может быть проходная зона или район с большой концентрацией жителей. Новичкам на рынке будет легче выйти на целевую аудиторию, если они выберут правильное расположение. Срок окупаемости о
Оглавление

Малые предприятия — основные заказчики быстровозводимых зданий с каркасом ЛСТК. Основные преимущества таких строений — доступная стоимость, надежность, долговечность и пожаробезопасность. По данным ВНИИПО, они имеют IV степень огнестойкости.

Требования к таким промышленным объектам, как мастерская по ремонту обуви, включают прочность пола, сжатые сроки строительства, доступность в эксплуатации и мобильность. ЛСТК-технология позволяет обеспечить соответствие всем этим требованиям. Сооружения обладают не только низкой теплопроводностью, но и высокой огнестойкостью.

Особенности быстровозводимой мастерской

Располагать постройку лучше в точках с высокой проходимостью, это увеличит шансы привлечь больше посетителей. Важно избегать соседства с конкурентами, чтобы не делить потенциальных заказчиков.

Идеальный участок — на пути будущих клиентов. Это может быть проходная зона или район с большой концентрацией жителей. Новичкам на рынке будет легче выйти на целевую аудиторию, если они выберут правильное расположение.

Срок окупаемости обувной мастерской составляет 2–3 года. Рентабельность может варьироваться от 6 до 18% в зависимости от действий владельца. Доход выше в межсезонье, а в разгар сезона может быть ниже. Это следует учитывать при планировании бюджета и маркетинговых кампаний.

Преимущества бизнеса:

· постоянный спрос на услуги. Люди всегда нуждаются в ремонте обуви, особенно в холодное время года;

· небольшие инвестиции по сравнению с более крупными предприятиями;

· быстрая окупаемость при правильном подходе. Стабильный доход при наличии достаточного количества заказов;

· перспективы расширения до сети мастерских.

Несмотря на массу плюсов, у бизнеса по ремонту обуви есть и недостатки: не стоит ожидать огромной прибыли с самого начала. Начальный этап может быть сложным. Требуется тщательно выбирать участок и разрабатывать маркетинговую стратегию. Важно поддерживать качество услуг, чтобы сохранять клиентов и получать положительные отзывы.

Проектирование мастерских

Быстровозводимые обувные мастерские характеризуются:

· скоростью ввода в эксплуатацию;

· разнообразием объемно-планировочных решений;

· энергоэффективностью;

· долговечностью.

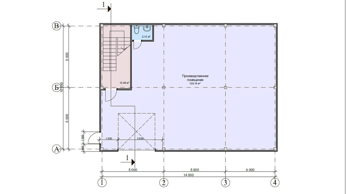
Важно тщательно разработать проект, чтобы обеспечить надежность, безопасность и удобство использования. Следует учитывать нормы высоты потолков: не менее 5 м — для производственного участка, не менее 2,4 м — для офисов и подсобных помещений.

Особые требования предъявляются к вытяжной вентиляции:

· для сушки обуви следует использовать сушильные камеры с местной вытяжкой, и при этом избегать сушки горячим воздухом и пульверизации вне укрытий;

· все операции с клеем необходимо проводить под вытяжкой;

· полиизоцианаты готовятся только в вытяжных шкафах. Ванны для чистки пресс-форм должны иметь отсосы;

· рабочие места для окрашивания деталей верха также должны быть оборудованы вытяжкой.

Каждый проект рассматривается с учетом особенности строения и используемого оборудования. Для этого применяется специализированное программное обеспечение для расчета характеристик постройки еще до начала строительства. При проектировании металлокаркасов учитываются нагрузки от коммуникаций, таких как трубопроводы, кабели и светильники, что упрощает впоследствии процесс монтажа.

В рамках проектирования разрабатывается подробная рабочая документация, которая включает объемно-планировочные решения, функциональное зонирование, схемы инженерных сетей.

Элементы конструкций изготавливаются в заводских условиях, что гарантирует точные размеры и готовность к сборке. Это минимизирует влияние человеческого фактора на качество работ.

Этапы строительства

1. Можно выбрать готовый проект для небольшого предприятия или разработать индивидуальный для более крупного объекта. Готовые варианты обычно более экономичны, их быстрее реализовывать, в то время как индивидуальные - учитывают все пожелания заказчика.

2. Изготовление металлоконструкций: строительные элементы изготавливаются на профильном заводе. После изготовления их доставляют на площадку.

3. Подготовка площадки и устройство фундамента: сначала нужно выровнять и уплотнить грунт, а затем заложить фундамент подходящего типа. Выбор делается исходя из габаритов сооружения и типа грунта на стройплощадке. Наиболее распространенный вариант - свайный, столбчатый, плитный, ленточный.

4. Установка металлокаркаса и ограждающих конструкций в проектное положение.

5. Установка окон, ворот и дверей.

6. Подключение коммуникаций: все они интегрируются в процесс строительства, что упрощает и ускоряет процессы.

Изображение, созданное с помощью ИИ
Изображение, созданное с помощью ИИ

Плюсы ЛСТК в применении к обувной мастерской

Элементы с точной геометрией, изготовленные на заводе на компьютеризированных станках, ускоряют монтаж.

Отсутствие тяжелой крановой техники не только снижает затраты и делает работы безопаснее, но и сохраняет ландшафт.

Оперативная сборка: металлоконструкции легко монтируются на любом грунте, без ограничений по оборудованию.

Используемые материалы экологически безопасны и обладают достаточной пожаростойкостью.

Сэндвич-панели имеют эстетичный вид, поэтому дополнительная внешняя отделка не обязательна.

После монтажа можно сразу устанавливать оборудование, что ускоряет ввод в эксплуатацию.

Каркас из ЛСТК легко поддается расширению и модернизации, что минимизирует простои. Также есть возможность переноса сооружения на более подходящее в плане рентабельности место.

Расчет стоимости

Стоимость зависит от нескольких факторов: размеров сооружения, планировки и необходимости отделки. Обязательно нужно обращать внимание на несколько аспектов:

· ассортимент услуг;

· интенсивность потока клиентов;

· объем складских запасов;

· размеры здания и сложность проекта.

Предварительные расчеты можно выполнить самостоятельно с помощью онлайн калькулятора WebSteel®. Этот сервис разработан специалистами ПК ВЕСТА и доступен бесплатно из любой точки мира.

Сервис позволяет оценить финансовые затраты, выбрать экономичный вариант компоновки, создать трехмерную модель для визуализации.

Контакты ПК Веста

+7 (4872) 701-777 (Общий: с 8:00 до 17:30) - быстровозводимые здания (русский)

+7 (910) 7000-167 (с 8:00 до 16:30. Ольга. Консультант) - быстровозводимые здания (русский)

+7 (910) 943-49-66 (с 9:00 до 20:00. Денис. Зам по развитию) - быстровозводимые здания (русский, английский)

E-mail: info@pkvesta.ru

Web: www.pkvesta.ru

Cистема WebSteel®: www.websteel.pkvesta.ru