Добавить в корзинуПозвонить
Найти в Дзене

Самый популярный проект 2022

Собственный дом - это дверь в абсолютно другую, новую жизнь. А решение о строительстве - дорога к ней. Представляем вам проект «Айсберг» 158 м2, с огромным количеством окном 💫 Этот шикарный двухэтажный дом подойдёт для проживания большой дружной семьи. В нем расположены 3 комфортные спальни. Согласитесь, переезжая из квартиры в свой дом, мы хотим обеспечить комнаты для детей и отдельную родительскую спальню? Также, невозможно не отметить зону просторной гостиной, которая разместит не только большую семью, но и любимых гостей. Планировка: ▪️ 3 спальни - 11,32 м2; 14,00 м2; 14,00 м2 ▪️ кухня - 11,14 м2 ▪️ обеденный зал-гостиная - 29,52 м2 ▪️ 3 санузла - 5,69 м2, 6,25 м2, 5,34 м2 ▪️ холл второго этажа - 11,90 м2 💫 При оформлении дизайна интерьера и расстановки мебели у вас не возникнет никаких проблем. Комплектация "Тёплый контур" Обвязка: антисептированные балки 135х195 мм из строенной доски. Каркас: силовой каркас из сухой строганной доски хвойных пород камерной сушки 45х195 мм, с
Оглавление

Собственный дом - это дверь в абсолютно другую, новую жизнь. А решение о строительстве - дорога к ней.

Представляем вам проект «Айсберг» 158 м2, с огромным количеством окном 💫

Этот шикарный двухэтажный дом подойдёт для проживания большой дружной семьи.

В нем расположены 3 комфортные спальни. Согласитесь, переезжая из квартиры в свой дом, мы хотим обеспечить комнаты для детей и отдельную родительскую спальню?

Также, невозможно не отметить зону просторной гостиной, которая разместит не только большую семью, но и любимых гостей.

Планировка:

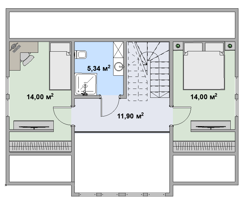
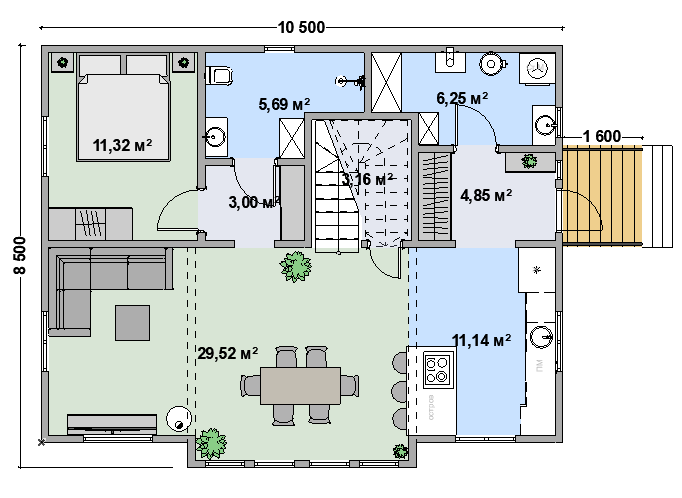
▪️ 3 спальни - 11,32 м2; 14,00 м2; 14,00 м2

▪️ кухня - 11,14 м2

▪️ обеденный зал-гостиная - 29,52 м2

▪️ 3 санузла - 5,69 м2, 6,25 м2, 5,34 м2

▪️ холл второго этажа - 11,90 м2

💫 При оформлении дизайна интерьера и расстановки мебели у вас не возникнет никаких проблем.

Комплектация "Тёплый контур"

Обвязка: антисептированные балки 135х195 мм из строенной доски.

Каркас: силовой каркас из сухой строганной доски хвойных пород камерной сушки 45х195 мм, силовой каркас элементов пола, силовой каркас крыши, силовой каркас чердачного перекрытия, силовой каркас наружных и внутренних стен из сухой строганной доски хвойных пород камерной сушки 45х145 мм

Наружная отделка: гидро-ветрозащита Ондутис SA 135, контрбрус 45х45 мм, Скандинавская фасадная доска, окрашенная в заводских условиях, грунтовка + 2 слоя краски, сетка от грызунов оцинкованная.

Окна, двери: окна ПВХ, профиль Rehau 70 мм , двухкамерный стеклопакет, москитные сетки.

Кровельная конструкция: гидрозащита Ондутис SA 135, контрбрус 45х45 мм, обрешётка 20х95 мм сухая строганная, кровельное покрытие Металлочерепица 0,5мм, комплект водосточной системы ПВХ на металлических крюках.

Утепление дома: теплоизоляция пола Rockwool 200 мм, теплоизоляция наружных стен Rockwool 150 мм, теплоизоляция чердачного перекрытия Rockwool 200 мм, пароизоляция Ондутис

Цена указана на Сайте

Приходите к нам на консультацию, в рамках которой мы и для вас индивидуально спроектируем дом мечты.

Только представьте, что у вас уже будет проект, вся информация о строительстве, материалах, ценообразовании!

Хотите задать вопрос?

Наши менеджеры всегда на связи, и готовы на них ответить!

____________________________________________________________________________________

Мы строим Для вас/Дома/Мечту.

📡 www.norvill.ru

📞 Позвонить: +7 (916) 304-75-40

WhatsApp / Telegram: +7 (916) 304-75-40

📧 norvilcompany@yandex.ru

#проектдома #скандинавскиедома #домподключ #одноэтажныйдом #каркасноестроительство #каркасноедомостроение #строительстводома #строительство #каркасныйдом #каркасник