Добавить в корзинуПозвонить
Найти в Дзене
INMYROOM

Двушка 37 м² с базовой отделкой и крутыми дизайнерскими приемами

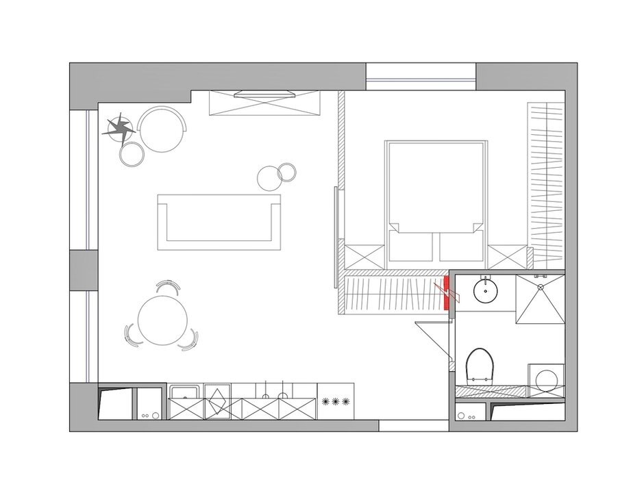
Вкратце Заказчик пригласил дизайнера Ирину Шевченко еще на стадии выбора квартиры. Он планировал какое-то время сдавать ее в аренду, а затем оставить своей подрастающей дочери для начала самостоятельной жизни. При ограниченном бюджете хотелось иметь максимально функциональное пространство с изолированной спальней и просторной кухней-гостиной. Именно наличие трех больших окон на угловых стенах этой квартиры стало решающим и позволило дизайнеру воплотить все задумки на достаточно скромной площади в 37 кв. м. Подробности Изначально по планировке застройщика предполагалась однокомнатная квартира с очень компактным санузлом. Но конфигурация и пропорции помещения, а также количество естественного света позволили отделить на этой площади полноценную спальню. В оставшемся пространстве обустроили кухню-гостиную и спроектировали два вместительных шкафа для хранения. «Эта квартира очень солнечная: два ее окна выходят на юг, окно спальни — на запад. Большие окна делают ее буквально пронизанной
Оглавление

Вкратце

Заказчик пригласил дизайнера Ирину Шевченко еще на стадии выбора квартиры. Он планировал какое-то время сдавать ее в аренду, а затем оставить своей подрастающей дочери для начала самостоятельной жизни. При ограниченном бюджете хотелось иметь максимально функциональное пространство с изолированной спальней и просторной кухней-гостиной. Именно наличие трех больших окон на угловых стенах этой квартиры стало решающим и позволило дизайнеру воплотить все задумки на достаточно скромной площади в 37 кв. м.

 📷
📷

Подробности

Изначально по планировке застройщика предполагалась однокомнатная квартира с очень компактным санузлом. Но конфигурация и пропорции помещения, а также количество естественного света позволили отделить на этой площади полноценную спальню. В оставшемся пространстве обустроили кухню-гостиную и спроектировали два вместительных шкафа для хранения.

 📷
📷

«Эта квартира очень солнечная: два ее окна выходят на юг, окно спальни — на запад. Большие окна делают ее буквально пронизанной (прошитой) солнечным светом. Именно эта особенность и легла в основу проекта. Мне хотелось сделать ее немного курортной, легкомысленной и воздушной на контрасте с нашим серым подавляющим мегаполисом», — рассказывает дизайнер.

 📷
📷

 📷
📷

Окна и радиаторы не меняли. Потолок частично зашили гипсокартоном, оставшуюся часть оставили в первозданном виде необработанной плиты перекрытия.

 📷
📷

Выбор отделочных материалов был обусловлен ограниченным бюджетом и сроками поставки. Керамогранит и плитка российского производства. В жилых зонах уложена инженерная доска, монтаж на клей к стяжке. «Давно предпочитаю ее ламинату. При небольшой разнице в цене она дает совсем другие визуальные и тактильные ощущения от пространства. Такой пол выглядит мощно, монолитно и дорого в отличие от ламината с его синтетическим блеском и зыбкостью в плавающей укладке», — добавляет Ирина Шевченко.

 📷
📷

В интерьере активно использовали элементы стиля бохо, балки из натурального дерева и ремесленный декор. Облегченная цветовая гамма с преобладанием белых и светло-серых оттенков, желтый в акцентах и большое количество зеркальных поверхностей помогли визуально увеличить пространство.

 📷
📷

 📷
📷

 📷
📷

Центральное место в гостиной занимает фрагмент мозаичного панно 60-х годов, демонтированный со стен ткацкой фабрики в Коломне. Он идеально вписался по форме, цвету и смыслу.

Для того, чтобы сохранить «воздух» в интерьере, часть мебели нужно было «растворить» в пространстве (кухню, консоль, шкафы). Другие предметы, наоборот, выбрали контрастными — кровать с плетеным изголовьем, плетеный балинезийский абажур над столом, диван обтекаемых мягких форм и консоль в ванной, которая перекликается с кроватью. То же самое касается и дверей. По сути в интерьере одна дверь — амбарная желтая в спальню. Дверь в санузел выглядит как часть стены.

 📷
📷

«Санузел не идеален. На очень компактной площади в нем еще пришлось разместить стиральную машину с сушкой. Чтобы он не выглядел крохотным, пришлось „ломать“ геометрию цветом и „растворять“ шкафы в стенах», — рассказывает Ирина Шевченко.

Больше фото тут:

Двушка 37 м² с базовой отделкой и крутыми дизайнерскими приемами