Найти в Дзене
AMS³

Принцип создания фильтров в Revit

В этом уроке мы разберем принцип создания фильтров. Рассмотрим случаи, когда полезно создавать фильтры, и когда - бессмысленно. В уроке используется версия Revit 2019. Курс "Revit для дизайнеров интерьера" Базовый курс по Revit Если к плану не применяются переопределения видимости, то по умолчанию отображается материал, который применен в семействе/модели в контексте. Если семейству/модели в контексте не применены материалы, семейство отображается белым цветом. В каких случаях бессмысленно создавать фильтры. Если необходимо переопределить видимость всей категории, нет смысла создавать фильтры. Чтобы переопределить видимость всей категории, заходим в шаблон вида. Находим вкладку «Модели/переопределение видимости, графики/Изменить». Выбираем нужную категорию и задаём цвет в Проекция/Поверхность (В разрезе). В каких случаях фильтры полезны. Вы можете создать Фильтры, если необходимо переопределить видимость у каких-то конкретных элементов. Предположим, нам нужно выделить стандартную мебел
Оглавление

В этом уроке мы разберем принцип создания фильтров. Рассмотрим случаи, когда полезно создавать фильтры, и когда - бессмысленно. В уроке используется версия Revit 2019.

Курс "Revit для дизайнеров интерьера"

Базовый курс по Revit

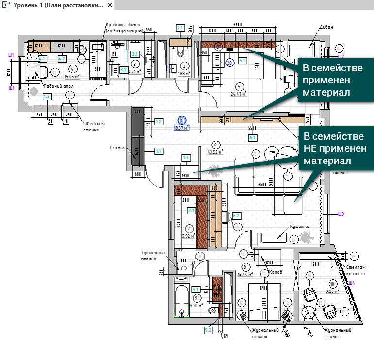
Если к плану не применяются переопределения видимости, то по умолчанию отображается материал, который применен в семействе/модели в контексте. Если семейству/модели в контексте не применены материалы, семейство отображается белым цветом.

-2

В каких случаях бессмысленно создавать фильтры.

Если необходимо переопределить видимость всей категории, нет смысла создавать фильтры. Чтобы переопределить видимость всей категории, заходим в шаблон вида. Находим вкладку «Модели/переопределение видимости, графики/Изменить». Выбираем нужную категорию и задаём цвет в Проекция/Поверхность (В разрезе).

-3

В каких случаях фильтры полезны.

Вы можете создать Фильтры, если необходимо переопределить видимость у каких-то конкретных элементов. Предположим, нам нужно выделить стандартную мебель ярким цветом.

Для начала определимся, по какому параметру мы будем переопределять видимость нужных элементов.

В учебном курсе «Revit для дизайнеров интерьера» мы сортируем семейства категории «Мебель» по признаку – стандартная мебель и индивидуального изготовления. Для этого мы создаем свой параметр с помощью файла общих параметров. Это необходимо сделать, т.к. у многих скаченных семейств параметры закрыты для редактирования, и в том числе «Группа модели».

Для всех семейств, которые будут относится к стандартной мебели, в параметре «Группа модели» пропишем фразу Стандартная мебель.

Для переопределения видимости создадим фильтр.

Зайдем в «Шаблон вида» – «Фильтры: переопределение видимости/график / Изменить» - Изменить/Создать – Создать – Имя …

-4

Выбираем категорию, для которой будет работать данный фильтр. В нашем случае это категория «Мебель».

Критерии фильтрации:

  • выбираем параметр Группа модели – Равно – Стандартная мебель;
-5
  • Добавим вновь созданный фильтр в Шаблон вида (Добавить – выбираем Фильтр – Ок);
-6
  • Зададим цвет у Проекция/Поверхность;
-7

Теперь все элементы категории мебель из группы Стандартная мебель окрасились в выбранный цвет!

-8

Если в семействе из «Группы модели» удалить или как-то изменить фразу, написанную в Фильтре, то он не будет переопределять видимость семейства.

Чтобы убрать переопределение видимости, удалите фильтр из шаблона вида.

-9

Если нужно вообще удалить фильтр из проекта – в ленте ВИД – Фильтры – выделяем фильтр и нажимаем в нижней части удалить.

-10

Итак, мы рассмотрели принцип создания фильтров в версии Revit 2019.