Добавить в корзинуПозвонить
Найти в Дзене

Дом, в котором все продумано до мелочей

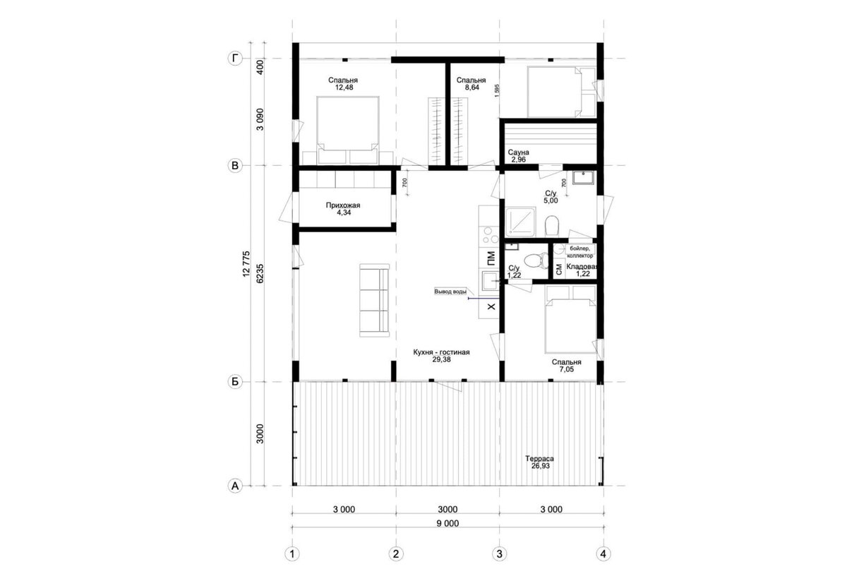
Этот домик претерпел множество изменений и получился абсолютно индивидуальным. Планировку прилагаем. Заказчики хотели дом без длительной стройки, поэтому идеальным решением стал модульный дом. А так как мы всегда поддерживаем и стараемся воплощать все «хотелки» клиентов, касаемо планировки и дополнений в доме, ребята выбрали FL Haus. Ольга - хозяйка дома, творческий человек, а именно - стилист. Поэтому ко всем деталям при выборе дома подходила крайне тщательно! Для семьи было важно наличие второго сан узла в доме и кладовая для размещения стиральной машины (один из ключевых пунктов непосредственно для хозяйки) Мы учли все пожелания ребят и на выходе получили очень практичную планировку с прихожей, тремя спальнями и кухней-гостиной. Плюс два сан узла, тех. помещение и сауна, которую мы разместили, забрав несколько метров у одной из спален. А также выполнили ряд дополнений к основным работам: - Розетка и коммуникации под кондиционер - Замена фасадной доски на профлист - Теплый пол
FL 77 Next в КП “Агалатово Экопарк”.
FL 77 Next в КП “Агалатово Экопарк”.

Этот домик претерпел множество изменений и получился абсолютно индивидуальным. Планировку прилагаем.

-2

Заказчики хотели дом без длительной стройки, поэтому идеальным решением стал модульный дом. А так как мы всегда поддерживаем и стараемся воплощать все «хотелки» клиентов, касаемо планировки и дополнений в доме, ребята выбрали FL Haus.

-3
-4

Ольга - хозяйка дома, творческий человек, а именно - стилист. Поэтому ко всем деталям при выборе дома подходила крайне тщательно! Для семьи было важно наличие второго сан узла в доме и кладовая для размещения стиральной машины (один из ключевых пунктов непосредственно для хозяйки)

-5
-6

Мы учли все пожелания ребят и на выходе получили очень практичную планировку с прихожей, тремя спальнями и кухней-гостиной. Плюс два сан узла, тех. помещение и сауна, которую мы разместили, забрав несколько метров у одной из спален.

А также выполнили ряд дополнений к основным работам:

- Розетка и коммуникации под кондиционер

- Замена фасадной доски на профлист

- Теплый пол в прихожей и кладовой

- Боковая терраса 12 м в длину дома

- Дополнительная розетка на террасе под гирлянду - красиво будет в темноте и зимой!

-7

Домиком все остались очень довольны и Ольга написала о нас приятный отзыв (его мы тоже прилагаем во вложениях) Всегда интересно прочесть о процессе нашей работы со стороны клиентов. А так же узнать историю о том, как вы нас выбираете.

-8

Смотрите, читайте, оценивайте проект в комментариях!

Напоминаем, что все планировки с ценами под ключ можно найти на нашем сайте: https://fl-haus.ru

#модульныедома

#строительстводомов

#проектдома

#проектодноэтажногодома