Найти в Дзене
INMYROOM

Удобно и не тесно! Двушка в брежневке 53 м² без перепланировки

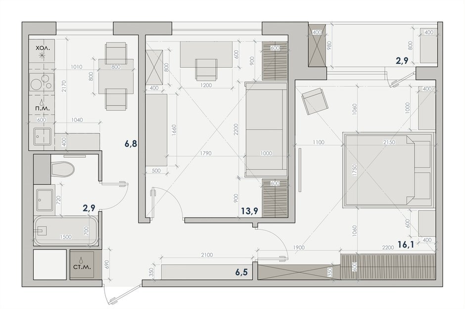
Вкратце Делать перепланировку — дорого и долго. А иногда просто невозможно — внутренние несущие стены не позволяют действовать радикально. В этой квартире дизайнер Наталья Широкорад сделала ставку на нейтральную палитру, продуманную расстановку мебели и вместительные шкафы — получился удобный и не тесный интерьер. Подробности Ремонт в этой двухкомнатной квартире делали достаточно давно: фиолетовая спальня и розовая детская уже не устраивали заказчицу. Дизайнер Наталья Широкорад решила быть бескомпромиссной и полностью обновила устаревший интерьер. Площадь квартиры небольшая, а внутренние стены все несущие, поэтому о радикальной перепланировке не было речи. Изменили только санузел — объединили его с ванной. На кухне сделали антресольные шкафы — в них удобно хранить посуду, которой редко пользуются.«Отделочные материалы в этом проекте довольно бюджетные. Плитка на полу в кухне и прихожей — Kerama Marazzi, на полу в остальных помещениях — ламинат Quick-Step», — рассказывает дизайн
Оглавление

Вкратце

Делать перепланировку — дорого и долго. А иногда просто невозможно — внутренние несущие стены не позволяют действовать радикально. В этой квартире дизайнер Наталья Широкорад сделала ставку на нейтральную палитру, продуманную расстановку мебели и вместительные шкафы — получился удобный и не тесный интерьер.

 📷
📷

Подробности

Ремонт в этой двухкомнатной квартире делали достаточно давно: фиолетовая спальня и розовая детская уже не устраивали заказчицу. Дизайнер Наталья Широкорад решила быть бескомпромиссной и полностью обновила устаревший интерьер.

Площадь квартиры небольшая, а внутренние стены все несущие, поэтому о радикальной перепланировке не было речи. Изменили только санузел — объединили его с ванной.

 📷
📷

 📷
📷

 📷
📷

На кухне сделали антресольные шкафы — в них удобно хранить посуду, которой редко пользуются.«Отделочные материалы в этом проекте довольно бюджетные. Плитка на полу в кухне и прихожей — Kerama Marazzi, на полу в остальных помещениях — ламинат Quick-Step», — рассказывает дизайнер.

Заказчице нравится стиль лофт: конечно, можно было бы использовать красный или коричневый кирпич, но он сделал бы небольшие комнаты темнее. Сюда больше подошла белая плитка под кирпич White Hills.

 📷
📷

 📷
📷

В декоре важное место заняла тема «Алисы в Стране чудес»: дизайнер использовала именно этот сюжет в картине на кухне и постере в ванной. Текстиль добавил уюта и помог создать нужное настроение: например, в спальне заказчицы светлые шторы уравновесили насыщенный цвет стен, а в комнате дочери — яркие оттенки сделали интерьер девичьим.

 📷
📷

Дизайн: Наталья Широкорад

 📷
📷

 📷
📷

Что касается систем хранения, от идеи отдельной гардеробной отказались сразу — она съедает много пространства. А вот компактные, отдельно стоящие шкафы и комоды в комнатах — отличный вариант для тех, кто не прочь через некоторое время сделать перестановку.

 📷
📷

 📷
📷

 📷
📷

«Простоту отделочных материалов мы компенсировали хорошей мебелью. Например, кухня выполнена из натурального шпона со столешницей из искусственного камня. Прикроватную тумбу и комод в спальню тоже сделали на заказ — это копии предметов итальянской фабрики», — рассказывает автор проекта.

Чтобы не загромождать ванную, в прихожей спроектировали нишу, где разместили стиральную машину. Простое и очень функциональное решение, продумать которое стоит еще до начала всех ремонтных работ.

Больше фото тут:

Удобно и не тесно! Двушка в брежневке 53 м² без перепланировки