Добавить в корзинуПозвонить
Найти в Дзене
INMYROOM

Крутая однушка 42 м² для популярного блогера

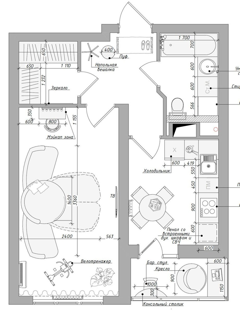
Вкратце Владелица этой квартиры в новостройке Саратова — популярный блогер, которая ведет свой бизнес. Интерьер должен был быть не только комфортным для жизни, но и фотогеничным для записи видеоуроков и трансляций. Дизайнер Мария Михайлова предложила оформить интерьер в стиле мемфис — в его основе лежат геометрические формы и необычные орнаменты. Получилось очень свежо, стильно и модно. Подробности Изначально в квартире предполагались отдельная вытянутая комната, ванная и кухня с балконом. В прихожей выделили гардеробную, а в остальном планировка осталась прежней. В комнате организовали гостиную с большим мягким полукруглым диваном и макияжную зону. На балконе — мини-кабинет с рабочим столом и креслом. Кухня, как и ванная, используется по прямому назначению. Кухонный гарнитур получился компактным. Нижние и верхние шкафы выполнены в разных цветах. Внизу — голубой оттенок, который сочетается с окрашенной стеной в обеденной зоне. Наверху — светлый сиреневый, визуально облегчающий конструк
Оглавление

Вкратце

Владелица этой квартиры в новостройке Саратова — популярный блогер, которая ведет свой бизнес. Интерьер должен был быть не только комфортным для жизни, но и фотогеничным для записи видеоуроков и трансляций. Дизайнер Мария Михайлова предложила оформить интерьер в стиле мемфис — в его основе лежат геометрические формы и необычные орнаменты. Получилось очень свежо, стильно и модно.

Подробности

Изначально в квартире предполагались отдельная вытянутая комната, ванная и кухня с балконом. В прихожей выделили гардеробную, а в остальном планировка осталась прежней. В комнате организовали гостиную с большим мягким полукруглым диваном и макияжную зону. На балконе — мини-кабинет с рабочим столом и креслом. Кухня, как и ванная, используется по прямому назначению.

-2

Кухонный гарнитур получился компактным. Нижние и верхние шкафы выполнены в разных цветах. Внизу — голубой оттенок, который сочетается с окрашенной стеной в обеденной зоне. Наверху — светлый сиреневый, визуально облегчающий конструкцию.

Характерной чертой являются арки, закругленные и обтекаемые формы мебели.

-4

Фразы на латыни стали фишкой интерьера.

-5

Выбор чистовых отделочных материалов обусловлен повышенной износостойкостью и удобством эксплуатации. На стенах — краска. Использовали нестандартные приемы окрашивания, делая арочные формы. Две арки в комнате окрашены грифельной и магнитной краской для того, чтобы можно было сделать записи и крепить важные бумаги.

-6

На полу во всей квартире, кроме ванной, уложен кварцвинил. Это практичное покрытие, которое не боится влажности, поэтому его можно укладывать даже на кухне и в прихожей.

Выделена отдельная гардеробная комната, изготовленная на заказ, также много дополнительных мест хранения во всех помещениях.

В ванной использовали плитку терраццо и скомбинировали отделку с окрашиванием. Краску нанесли на участок стены под потолком, добавив цвета.

-9

Использована яркая накладная раковина нежно-желтого цвета, в поддержку к ней — полотенцесушитель такого же оттенка.

Бренды, представленные в проекте

КухняОтделка: краска, Little GreeneНапольное покрытие: кварц-винил, Alpine floorГарнитур: MossmanСмесители: OmoikiriОсвещение: Maytoni

ГостинаяОтделка: краска, Little Greene; магнитная и грифельная краска, TikkurilaНапольное покрытие: кварц-винил, Alpine floorТекстиль и декор: декор, KareОсвещение: Maytoni

Ванная комнатаОтделка: керамогранит, Arcana CeramicaНапольное покрытие: керамогранит, Arcana CeramicaСантехника: сантехника, Fiore; накладная раковина, Kerasaan; ванна, Kolpasan; инсталляция, Viega; унитаз, Kerama MarazziСмесители: FioreОсвещение: Maytoni

ПрихожаяОтделка: краска, Little GreeneНапольное покрытие: кварц-винил, Alpine floorДекор: KareОсвещение: Maytoni