Найти в Дзене

"Многоспаленный" домик формата 100м2. 4 спальни + кабинет. Тоже своего рода "мини-домик"

В конце прошлого и начале этого года были два домика, которые в ФБ часто получали негативные отзывы из за гостиной с большим количеством дверей и спальнями небольшого размера. Домики были построены и один из них обжит и активно эксплуатировался с мая - тому времени было запущено водоснабжение, канализация, приведен в порядок участок..
В начале сентября был в гостях у хозяев одного такого домика - он вполне обжит, и планировка никого из жильцов не напрягает - ничего не хочется поменять. Мне там тоже показалось весьма симпатично.
Вот собственно планировка: Такие размеры дома были выбраны не по финансовым соображениям - дом поставлен на месте старого, хотя и с увеличением габаритов, и отделка внутри была совсем "не дачной". Учитывая количество возможных жильцов и запас автономности, домик вполне может быть "запасным аэродромом" для нескольких семей разных поколений.
Домики простые, "кондовые", но теплые и для нормальной и постоянной жизни вполне  подходящие.  Стены сло

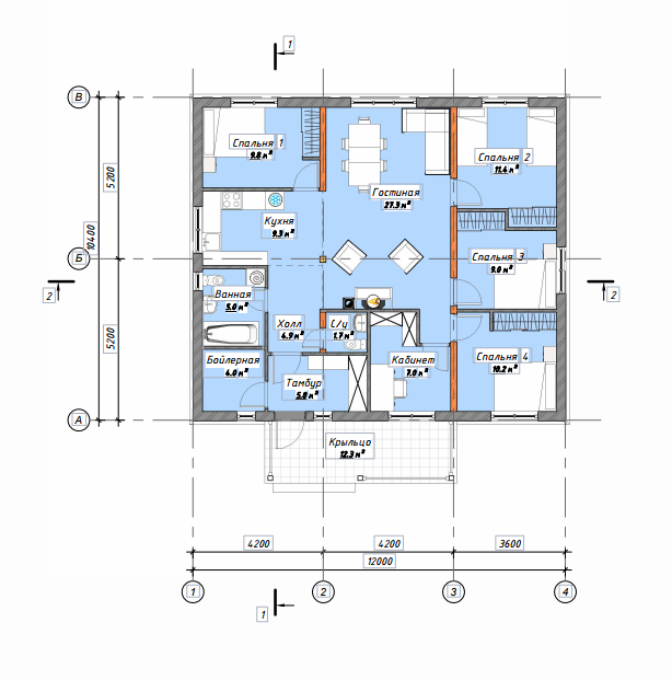
В конце прошлого и начале этого года были два домика, которые в ФБ часто получали негативные отзывы из за гостиной с большим количеством дверей и спальнями небольшого размера. Домики были построены и один из них обжит и активно эксплуатировался с мая - тому времени было запущено водоснабжение, канализация, приведен в порядок участок..

В начале сентября был в гостях у хозяев одного такого домика - он вполне обжит, и планировка никого из жильцов не напрягает - ничего не хочется поменять. Мне там тоже показалось весьма симпатично.
Вот собственно планировка:

Планировка многоспаленного формата 12м*10.4м
Планировка многоспаленного формата 12м*10.4м

Такие размеры дома были выбраны не по финансовым соображениям - дом поставлен на месте старого, хотя и с увеличением габаритов, и отделка внутри была совсем "не дачной".

вид домика из архитектурного проекта
вид домика из архитектурного проекта

Учитывая количество возможных жильцов и запас автономности, домик вполне может быть "запасным аэродромом" для нескольких семей разных поколений.

Домики простые, "кондовые", но теплые и для нормальной и постоянной жизни вполне  подходящие.  Стены сложены из блока плотности Д300 и толщиной 300 мм, что безо всякого утепления дает теплопотери через стены меньше, чем при стенах 500 мм клееного бруса и ощутимо перекрывает наши нормы.

Если взять 300 мм блоков плотностью Д400, то это будет сравнимо с стеной из клееного бруса толщиной 450 мм - сопротивление теплопередаче получается ниже наших нормативов, но все равно очень приличным. И через год-два станет понятно, что стены хочется утеплить, то никто не мешает наклеить на них снаружи 10 см газобетона плотностью 200.. Теплопроводность такой стены будет ощутимо превосходить наши нормативы

Утепление основания тоже никто не отменял. Чердак холодный - утепление по перекрытию над 1 этажом 25 см минваты.

Этот дом вполне обжит - проработал все лето и давно звали в гости,  а тут подвернулась поездка в ту сторону. Получилось несколько фото, которые вам и предлагаю..

Дом,  мирным понятиям, необычный - небольшой, но очень многоспаленный. Он понравился многим, кто побывал в нем во время стройки,  хотя планировка для многих и не  бесспорная. Но при таком большом количестве жильцов, помещений и площади под 100м2  домик  очень даже  неплох. На мой консервативный и стариковский взгляд, не хватает мест хранения и мала площадь котельной мала для размещения газового оборудования по нашим газовым нормам (если ставить магистральный газ - для сжиженного, КАК МНЕ КАЖЕТСЯ, каких проблем здесь нет )

И вот что получилось.
И вот что получилось.


Вот текущий внешний вид. (Участок небольшой, поэтому засунуть его в одно фото без  оптических искажений  не получилось)

Наружная отделка  в этом году не делалась, но и без нее он простоит очень много лет  без заметного разрушения стен.  Кладка была очень аккуратной, без страшных  темных швов, и вот текущий внешний вид: как мне кажется, вполне прилично для отсутствия наружной отделки. Наружная отделка, например в виде краски или фасадной шпаклевки для газобетона вещь полезная, в первую очередь потому, что  уменьшает намокание  верхнего слоя блоков и поэтому уменьшает теплопотери. Но год-два, по моему, дому лучше простоять без нее - чтобы стены получше просохли

-4

Домик очень теплый - удалось взять очень теплые блоки плотностью Д300 и толщиной 300мм, что по теплопотерям дает цифры, лучше чем 50 см клееного бруса.

Даже очень маломощная печка во время отделки (а это было ранней весной 2022 г., когда еще не было готово штатное отопление, по сути, обеспечивала возможность и штатлевания, и покраски стен.

Маленькая печка в гостиной. Не только для красоты - она еще
Маленькая печка в гостиной. Не только для красоты - она еще

Водяного отопления  нет, есть электроконвекторы с температурными датчиками стоят во всех помещениях, и наконец эта печка.    

Электроотопление  имеет  дистанционное управление
для каждого помещения. 

При небольшой мощности печки ее более чем хватает для поддержания комфортной температуры при весьма прохладных и ночах (было +1) и дневных температурах - +10), да и во  время отделки она отлично справлялась с отоплением дома, когда  электрообогревателей еще не было.

-6

Под щитком - устройство бесперебойного питания на основные потребители электричества в дома (3,2 киловатт). Так что свет и связь есть всегда, хотя отключения электричества  здесь бывают достаточно редко.

Вот пара фото из гостиной

-7
-8
-9


Комната, на плане названная "кабинет". превратилась в очаровательную детскую и площади веранды вполне достаточно, хотя и "без излишеств".

Свесы крыши - около 70 см, плюс водостоки 12 см..

-10

Характерно, что домик такого формата уже в прошлом году был не один.

Как мне кажется, это хорошая демонстрация тенденции к упрощению жилья. Такой домик может в режиме "запасного аэродрома" вместить и обеспечить нормальную жизнь очень немаленькой семье, точнее - двум - трем поколениям семьи.

Жизнь военного времени заставляют упрощать и сам конструктив дома, и ускорять его стройку. Здесь этого не было сделано - в строительном смысле это "классика жанра"- внутренняя отделка - "в полный рост" - двухкратная шпаклевка и шлифовка, очень хорошая краска, ощутимо меняющая цвет в зависимости от освещенности, ламинат из кварц-винила на полу, потолки из ГКЛ..

Такая отделка небыстра и весьма небюджетна.