Добавить в корзинуПозвонить
Найти в Дзене

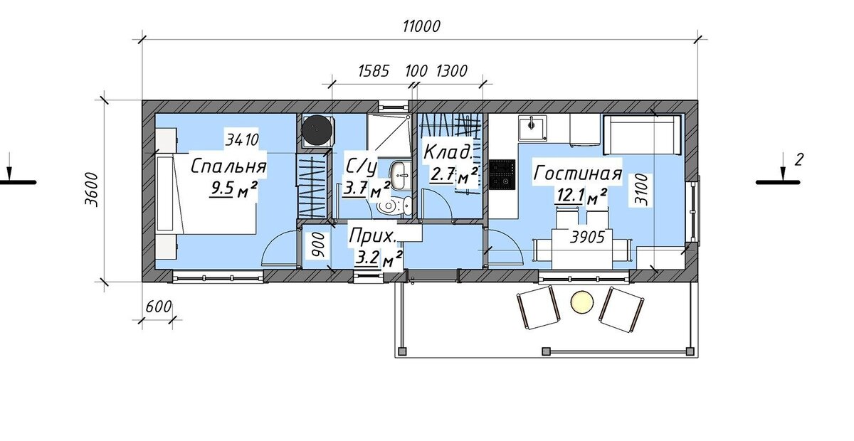
Мини-домик 2: спальня + гостиная. И кладовку с тамбуром никто не отменял

Этот домик рассматривался как дача для пожилого человека и объект для сдачи. Здесь опять таки возможна быстрая и недорогая постройка - около 2,5 млн руб с упрощенной отделкой и инженерией и при отсутствии проблем с геологией и геодезией. Здесь нет водяного отопления - используются электроконвекторы. Эти минидомики, как и все другие мои домики - из газосиликата. Фундамент дома - монолитный бетон, но веранда может быть сделана на сваях. нижнее фундамента - монолитный пол по грунту с утеплением пенопластом.
Мне кажется, что сейчас домики такого формата имеют право на существование.. Например, для пожилых людей, как гостевой или временный, на время стройки.
Дальше будут домики поболее.. Из того, что можно придвинуть поближе к понятию "правильный дом" для нашего времени ..
Внешний вид мини-домика2
Внешний вид мини-домика2
Планировка мини-домика2
Планировка мини-домика2

Этот домик рассматривался как дача для пожилого человека и объект для сдачи.

Здесь опять таки возможна быстрая и недорогая постройка - около 2,5 млн руб с упрощенной отделкой и инженерией и при отсутствии проблем с геологией и геодезией. Здесь нет водяного отопления - используются электроконвекторы. Эти минидомики, как и все другие мои домики - из газосиликата. Фундамент дома - монолитный бетон, но веранда может быть сделана на сваях. нижнее фундамента - монолитный пол по грунту с утеплением пенопластом.

Мне кажется, что сейчас домики такого формата имеют право на существование.. Например, для пожилых людей, как гостевой или временный, на время стройки.

Дальше будут домики поболее.. Из того, что можно придвинуть поближе к понятию "правильный дом" для нашего времени ..