Добавить в корзинуПозвонить
Найти в Дзене

Современный деревянный дом: Дом в Суннано или дом в стиле барнхаус, который расходится веером

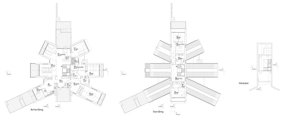
Резиденция под названием Villa Sunnanö расположена примерно в трех часах езды к северо-западу от Стокгольма, у озера - на живописном треугольном мысу, в окружении сосен и черничных кустов и больших частично затопленных валунов. Этот дом, выполненный в стиле барнхаус, очень необычен даже для этого стиля: от центральной, вытянутой двухэтажной его части расходятся шесть жилых одноэтажных лучей. При этом с одной стороны центральной части дома находится входная группа, а с другой — терраса, которая продолжается до пешеходного моста через озеро. Как террасу, так и вход в дом от осадков прикрывают консольно-выступающие стеклянные фронтоны. Все конструкции и наружная отделка выполнены из дерева. Почему для дома выбрана столь необычная форма? Оригинальная идея принадлежит стокгольмской студии Murman Arkitekter, основатель которой - Ханс Мурман хотел максимально увеличить обзор живописной местности. Для достижения этой цели он и спроектировал каждую комнату как отдельный объем, имеющий свой соб

Резиденция под названием Villa Sunnanö расположена примерно в трех часах езды к северо-западу от Стокгольма, у озера - на живописном треугольном мысу, в окружении сосен и черничных кустов и больших частично затопленных валунов.

Этот дом, выполненный в стиле барнхаус, очень необычен даже для этого стиля: от центральной, вытянутой двухэтажной его части расходятся шесть жилых одноэтажных лучей. При этом с одной стороны центральной части дома находится входная группа, а с другой — терраса, которая продолжается до пешеходного моста через озеро. Как террасу, так и вход в дом от осадков прикрывают консольно-выступающие стеклянные фронтоны.

Все конструкции и наружная отделка выполнены из дерева. Почему для дома выбрана столь необычная форма? Оригинальная идея принадлежит стокгольмской студии Murman Arkitekter, основатель которой - Ханс Мурман хотел максимально увеличить обзор живописной местности. Для достижения этой цели он и спроектировал каждую комнату как отдельный объем, имеющий свой собственный застекленный фронтон. При этом все эти "модули" тщательно ориентированы по сторонам света, что позволяет дому ловить солнце весь день - от восхода до заката.

В интерьерах дома преобладает белый цвет.

Название: Дом в Суннано (House in Sunnano)
Расположение: Суннано, Швеция
Архитектура: Murman Arkitekter
Проектирование: 2010-2013
Строительство: 2015

Более подробную информацию о доме и большее количество фотографий можно найти ЗДЕСЬ - https://www.dezeen.com/2016/07/01/murman-arkitekter-villa-sunnano%CC%88-house-sweden-lake-woodland/,
а также ЗДЕСЬ -
https://www.archdaily.com/791428/villa-sunnano-murman-arkitekter/578849c8e58eceaa3300009e-villa-sunnano-murman-arkitekter-photo?next_project=no

___________________________________

Спасибо, что дочитали этот материал до конца! Рады, если он Вам понравился.

Хотите регулярно читать интересные статьи на тему деревянной (и не только) архитектуры и строительства - подписывайтесь на наш канал.