Добавить в корзинуПозвонить
Найти в Дзене
INMYROOM

Объединили две квартиры и создали интерьер мечты для семьи с тремя детьми

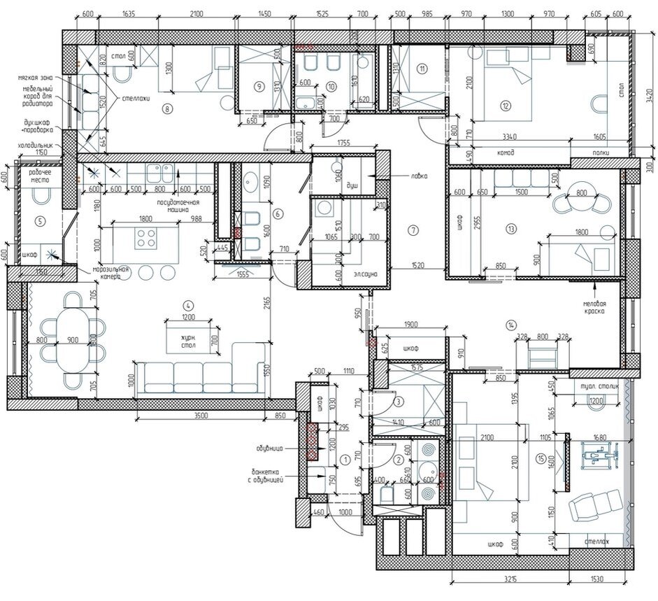
Вкратце Дизайнер Айгуль Султанова создала очень красивый и стильный интерьер для семьи с тремя детьми. Первостепенной задачей было грамотно соединить две квартиры на этаже и распределить получившуюся площадь между всеми членами семьи, чтобы у каждого была отдельная комната. Также организовали многочисленные системы хранения, игровую зону, так как к заказчикам часто приходят друзья с детьми. Заказчица с дочкой любят готовить вместе и мечтали об острове на кухне — это пожелание тоже реализовали. Подробности Квартира очень просторная, в ней получилось создать много функциональных зон с учетом образа жизни и интересов семьи. Кухня объединена с гостиной — это место для сбора и общения заказчиков с детьми и их друзей. Эту общественную зону отделили от личных комнат зеркальной дверью-перегородкой. За ней находится игровая/спортивная комната, из которой можно попасть в спальню родителей и в детскую младшего сына. Комнаты для старших детей находятся в дальних концах квартиры, между ними спроект
Оглавление

Вкратце

Дизайнер Айгуль Султанова создала очень красивый и стильный интерьер для семьи с тремя детьми. Первостепенной задачей было грамотно соединить две квартиры на этаже и распределить получившуюся площадь между всеми членами семьи, чтобы у каждого была отдельная комната. Также организовали многочисленные системы хранения, игровую зону, так как к заказчикам часто приходят друзья с детьми. Заказчица с дочкой любят готовить вместе и мечтали об острове на кухне — это пожелание тоже реализовали.

Подробности

Квартира очень просторная, в ней получилось создать много функциональных зон с учетом образа жизни и интересов семьи. Кухня объединена с гостиной — это место для сбора и общения заказчиков с детьми и их друзей. Эту общественную зону отделили от личных комнат зеркальной дверью-перегородкой. За ней находится игровая/спортивная комната, из которой можно попасть в спальню родителей и в детскую младшего сына. Комнаты для старших детей находятся в дальних концах квартиры, между ними спроектировали гардеробные и детский санузел.

-2

Кухню делали на заказ по индивидуальным размерам, шкафы до потолка. Дизайнер продумывала с заказчицей, что будет храниться в каждом ящике. Для крупной техники есть колонна, которая удачно поместилась в существующую нишу. От вытяжки заказчики отказались — вместо нее предусмотрели над островом принудительную вентиляцию.

-3

Заказчики — любители геометрических узоров: четкие линии, зигзаги, черно-белый ритм. Поэтому так или иначе геометрия прослеживается в каждом помещении. Дизайнер сделала ставку на цвет, которого в обстановке много, — получилась легкая и жизнерадостная атмосфера.

Все стены в квартире покрашены стойкой моющейся итальянской краской. Обои присутствуют как акцент в комнате дочки и в зоне обеденного стола. В детской младшего сына на всю стену вместе со скрытой дверью поклеили панно «Горы».

«Изначально в 3D-визуализации картины были изображены в виде цветовых пятен (абстракция), но по завершении ремонта я поняла, что лучшим решением станут изображения животных в современном стиле. Подходящих готовых я не видела и написала их сама — картину с зеброй в гостиной, картину с леопардом в коридоре. Заказчики поддержали идею», — рассказывает Айгуль Султанова.

Стену в гостиной напротив дивана, где висит телевизор, выделили шпонированными панелями, справа от телевизора дверь в санузел в таком же шпоне натурального дуба и до потолка. Дверь эта со скрытой коробкой, чтобы визуально ее скрыть и увеличить площадь стены с телевизором.

В квартире три санузла. Вход в основной санузел осуществляется из гостиной. Здесь, помимо стандартного набора сантехники, находится полноценная сауна.

-7

Отделка полностью в керамограните. Чтобы сделать его более уютным, добавили теплую текстуру дерева на двери, на тумбе и в зоне душевой. Также с деревом отлично сочетается зелень — здесь это стабилизированный мох.

Окна в спальне поменяли на панорамные в пол во всю ширину комнаты с видом на город и реку. Вместо телевизора здесь проектор с огромным экраном также во всю ширину окна. Экран проектора автоматически поднимается и прячется в нишу в потолке.

Из игровой также можно попасть в детскую младшего сына, которому два года. Так как ребенок еще маленький, комнату сделали самой сказочной: фотообои с горами, детские стульчики, шкаф имитирует горы. Роспись на стене в виде коалы, взлетающей на воздушном шаре, и воздушный шар с парашютистом-зайчиком добавляют уюта.

Комната для среднего сына шести лет оформлена в современном стиле. Мальчик увлекается спортом, шахматами, изучает страны мира, поэтому с учетом его взрослых увлечений и обстановку сделали соответствующей. Здесь использовали цветовую триаду Баухаус: желтый, красный, синий. И черно-белый штрих-ход — это роспись была выполнена художником.

Карта мира напротив кровати вместо телевизора. Предусмотрели большой стол практически во всю стену и систему хранения для игрушек и книг. Желтая дверь задвигается в стену при открывании, за ней находится гардеробная комната.

Комната для старшей дочери 12 лет оформлена в розовых тонах — это ее пожелания. Девочка занимается рукоделием, ей необходимо было организовать закрытые шкафы для хранения принадлежностей, плюс мягкую зону под окном. Задействовали свободные простенки по бокам окна, завязав все в единую композицию с рабочим столом. Эта зона выделена также розовым цветом.

На остальных стенах светло-серые обои в белый горошек и акцентные обои с обезьянами за кроватью. Эти зеленые обои также выделяют гардеробную комнату за амбарной раздвижной дверью.

В детском санузле использовали более веселый керамогранит терраццо, горчичный потолок, яркую тумбу под раковиной. Геометрия присутствует в клетке из мелкоформатной белой плитки.

Организация систем хранения играла важную роль в проектировании, так как семья большая, и вещей у всех тоже много. Где позволяла конфигурация комнат, сделали гардеробные: они есть в двух детских и одна общая в прихожей. В последней также хранятся пылесос, гладильная доска и верхняя сезонная одежда. В спальне родителей есть большой шкаф-купе. В детской — шкаф во всю стену.

-16

В самой прихожей шкаф для верхней одежды и узкий шкаф-обувница. Прихожая получилась не настолько широкая, как хотелось бы. Поэтому шкафы «растворили» в пространстве, выкрасив стены в цвет фасадов.

«В гостевом санузле в белой тумбе с раздвижными створками спрятаны стиральная и сушильная машины. Раковина накладная: она получилась выше стандартного расположения, но заказчики пошли на это легко, так как, во-первых, они достаточно высокого роста, во-вторых — это не основной санузел, в-третьих — это наиболее эстетичное решение из всех возможных. Пол, стены и столешницу сделали в одном керамограните. Выше уровня керамогранита — покраска, причем цвет стены за зеркалом — темнее и насыщеннее. Такой прием зрительно отдаляет темную стену, и визуально помещение увеличивается. Над инсталляцией сделаны шкафы для хранения, фасады совпадают с цветом стен», — рассказывает дизайнер.

-18

Бренды, представленные в проекте

Кухня-гостинаяОтделка: краска, San Marco; плитка, VivesНапольное покрытие: плитка, Vives; ламинат, TarkettМебель: кухня, New Line Design; стол, Imodern; столики, подставки под кашпо, La RedouteБытовая техника: BoschСмесители: OmoikiriМойка: OmoikiriТекстиль и декор: шторы, текстильный дизайнер Анна Захарова

Ванная комнатаОтделка: плитка, ItalonСантехника: Roca; смесители, Grohe

Детский санузелОтделка: плитка, Arcana и Kerama Marazzi; краска, San MarcoСантехника: Roca; смесители, Grohe

Гостевой санузелОтделка: плитка, Italon; краска, San MarcoСантехника: Roca; смесители, Grohe

ПрихожаяОтделка: краска, San MarcoНапольное покрытие: плитка, Abk

СпальняОтделка: краска и декоративная штукатурка, San MarcoНапольное покрытие: ламинат, TarkettТекстиль: Анна Захарова

Детская дочериОтделка: обои, Сole & Son; краска, San MarcoНапольное покрытие: TarkettМебель: кровать, Krowatson; прикроватные тумбы, Likvy; шкафы, New Line Design

Детская сынаОтделка: краска, San MarcoНапольное покрытие: TarkettМебель: прикроватные тумбы, ИКЕА

Детская младшего сынаОтделка: краска, San MarcoНапольное покрытие: Tarkett