Добавить в корзинуПозвонить
Найти в Дзене
INMYROOM

Крошечная студия 27 м² с полноценным спальным местом и гостиной

Василиса Павлова создала проект маленькой квартиры 27 квадратных метров в Санкт-Петербурге для девушки с котом. Нужно было обустроить место для отдыха с полноценным спальным местом и всем нужным функционалом. Дизайнер рассказала INMYROOM, как удалось все реализовать. Планировка Решение по зонированию студии пришло сразу: слева от входа разместили кухню. Заказчица дома только завтракает, посуды и запасов еды у нее нет, поэтому ограничились нижними шкафами и навесным шкафом для сушилки. Холодильник маленький, встраиваемый под столешницу. Легкая перегородка между обеденной зоной и кроватью является также и изголовьем. Счет здесь шел на каждый миллиметр. В этой зоне предусмотрен светильник, чтобы можно было почитать вечером книгу. Также организована небольшая гостиная зона — софа с журнальным столиком и торшером напротив ТВ. Специально выбирали компактную модель с возможностью дополнительного спального места на случай прихода гостей. Отделка Интерьер этой квартиры-малышки выполнен с исполь
Оглавление

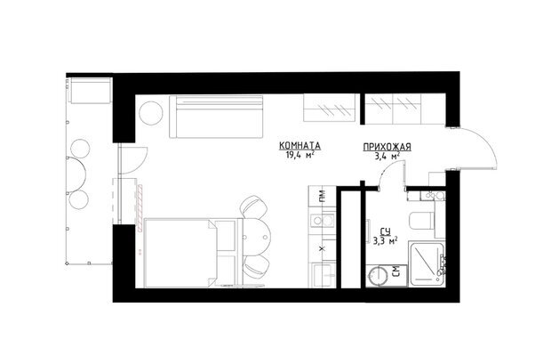
Василиса Павлова создала проект маленькой квартиры 27 квадратных метров в Санкт-Петербурге для девушки с котом. Нужно было обустроить место для отдыха с полноценным спальным местом и всем нужным функционалом. Дизайнер рассказала INMYROOM, как удалось все реализовать.

Планировка

Решение по зонированию студии пришло сразу: слева от входа разместили кухню. Заказчица дома только завтракает, посуды и запасов еды у нее нет, поэтому ограничились нижними шкафами и навесным шкафом для сушилки. Холодильник маленький, встраиваемый под столешницу.

Легкая перегородка между обеденной зоной и кроватью является также и изголовьем. Счет здесь шел на каждый миллиметр. В этой зоне предусмотрен светильник, чтобы можно было почитать вечером книгу.

Также организована небольшая гостиная зона — софа с журнальным столиком и торшером напротив ТВ. Специально выбирали компактную модель с возможностью дополнительного спального места на случай прихода гостей.

Отделка

Интерьер этой квартиры-малышки выполнен с использованием натуральных материалов: керамическая плитка, вагонка и инженерная доска. Легкая, природная цветовая гамма способствует расслаблению и умиротворению после трудового дня.

Сама гамма нестандартная: вместо привычных белых оттенков использовали сочетание нежных разбеленных тонов лимонного, мятного, голубого и сиреневого оттенков.

-2

Дизайнеру хотелось передать ощущение, когда утром в лесу выходишь на свою террасу, солнце еще не взошло высоко и все окутано легкой дымкой, воздух свежий и прохладный, начинают петь птицы.

Мебель

Мягкая мебель подобрана из наличия. Корпусная мебель (кухня, тумба под раковину и шкаф в прихожей) на заказ, так как нужно было вписаться в индивидуальный размер. Также учитывали, что в квартире есть кот, который любит везде лазать. Поэтому ткани для обивок выбрали «антикоготь».

-3

За кроватью предусмотрено панно с перфорацией, что позволяет самой хозяйке адаптировать стенку под свои желания. Это легко: нужно просто переставить колышки, и можно размещать полки, вешать цветы или картины.

Декор и текстиль

Декор и текстиль поддерживают общую природную атмосферу. Не хотелось перегружать интерьер деталями и вещами, поэтому в качестве украшений выступают функциональные вещи: полочки, журнальный столик (он внутри полый, и туда можно спрятать плед), торшер.

-4

Системы хранения

Корпусная мебель в этом проекте изготавливается на заказ. В прихожей предусмотрен глубокий шкаф с верхней антресолью, скамейкой и открытой обувницей. В комнате — шкаф для повседневной одежды.

Так как квартира небольшая, старались использовать все доступные места для организации хранения, но сделать это так, чтобы помещение не было перегружено шкафами. Из скрытых мест хранения можно выделить выдвижные ящики в основании кровати, полый журнальный столик, шкаф в санузле.

-5

Санузел

Санузел небольшой — всего 3,4 квадратных метра. При этом полностью укомплектован: полноценная душевая, инсталляция, бойлер, хозяйственный шкаф, сушилка для белья, стиральная машина и раковина. Использовали каждый сантиметр — поместился даже шкаф, закрывающий фановые трубы, с полочками для бытовой химии и местом для швабры.

-6

Для отделки тщательно подбирались материалы: для душевой зоны подошла немного состаренная плитка молочного оттенка, в дополнение к ней — плитка, имитирующая песчаный берег, приятная на ощупь и с мерцающими частицами.

Бренды, представленные в проекте

КомнатаОтделка: краска, Dulux; плитка, EquipeМебель: кровать, ИКЕАОсвещение: люстра, Lussole

Ванная комнатаОтделка: плитка, MainzuНапольное покрытие: керамогранит, EstimaСантехника: Am. Pm.