Найти в Дзене

Что необходимо учесть при выборе квартиры для фрилансера

Идеальная квартира – это всегда сочетание стоимости, расположения, удобной планировки, инфраструктуры, собственных интересов и образа жизни. Если вы и члены вашей семьи традиционно работаете в офисе – квартира для вас – это место отдыха и расслабления. Но что если ваша профессия предполагает работу из дома или гибридный график? Как сделать так, чтобы квартира не превратилась в офис, а домочадцы не мешали работать? На что обратить внимание при выборе квартиры, часть которой вы планируете использовать для работы? Удобная планировка Если в квартире нет отдельной комнаты, которую можно выделить под кабинет, часто для этих целей используют балкон или лоджию. Это действительно хорошее решение - большое пространство, уходящее вдаль, стимулирует мозговую деятельность, в то время как глухая стена перед глазами снижает креативные способности. Также можно зонировать часть гостиной или выбрать для себя кухню, при условии что там вы можете остаться в одиночестве и сосредоточиться на рабочих задачах

Идеальная квартира – это всегда сочетание стоимости, расположения, удобной планировки, инфраструктуры, собственных интересов и образа жизни. Если вы и члены вашей семьи традиционно работаете в офисе – квартира для вас – это место отдыха и расслабления. Но что если ваша профессия предполагает работу из дома или гибридный график? Как сделать так, чтобы квартира не превратилась в офис, а домочадцы не мешали работать?

Клубный квартал iD Svetlanovskiy
Клубный квартал iD Svetlanovskiy

На что обратить внимание при выборе квартиры, часть которой вы планируете использовать для работы?

Удобная планировка

Если в квартире нет отдельной комнаты, которую можно выделить под кабинет, часто для этих целей используют балкон или лоджию. Это действительно хорошее решение - большое пространство, уходящее вдаль, стимулирует мозговую деятельность, в то время как глухая стена перед глазами снижает креативные способности.

Также можно зонировать часть гостиной или выбрать для себя кухню, при условии что там вы можете остаться в одиночестве и сосредоточиться на рабочих задачах. А вот работать в спальне не рекомендуется. Место, предназначенное для отдыха, будет ассоциироваться с делами, заботами, нерешенными задачами, что может спровоцировать бессонницу. А если вы принимаете дома клиентов, например, работаете психологом, парикмахером или косметологом, то необходимо выделить в квартире отдельное помещение.

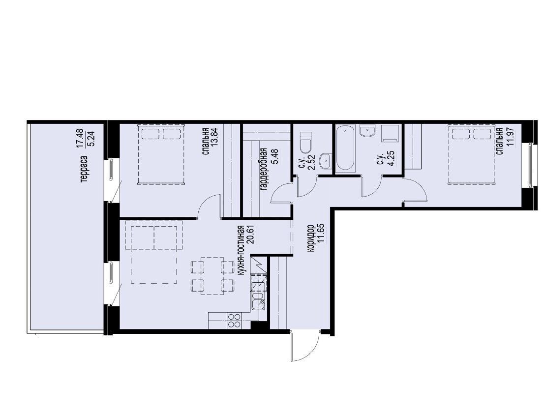
3-х комнатная квартира евро, площадью 75.56 метров в клубном квартале iD Svetlanovskiy
3-х комнатная квартира евро, площадью 75.56 метров в клубном квартале iD Svetlanovskiy

Пандемия показала, что удаленный формат работы возможен не только у фрилансеров, поэтому выбирая квартиру, стоит заранее предусмотреть такую вероятность. В этом случае стоит рассмотреть новый клубный квартал iD Svetlanovskiy, который строится в Выборгском районе. Здесь представлены как студии, так и просторные четырехкомнатные квартиры для большой семьи, где у каждого будет своя комната и еще останется место для домашнего офиса. Здесь есть варианты и с отдельными кабинетами, и с лоджиями, балконами и даже большими террасами, откуда открываются чудесные виды на крупнейшие парки Санкт-Петербурга “Удельный” и “Сосновка”. Из многообразия планировочных решений вы сможете выбрать именно ту квартиру, которая полностью отражает ваш характер, стиль, образ жизни и потенциал.

Собственная инфраструктура

Квартал представляет собой продуманное пространство для самовыражения, комфортной жизни и свежих идей. На территории появятся пекарни, уютные кофейни и ресторанчики, куда можно будет выйти поработать, если хочется сменить обстановку. Популярной альтернативой офисам стал коворкинг. Например, в iD Svetlanovskiy для всех резидентов предусмотрено пространство iD Club – светлая веранда с панорамным остеклением, расположенная в одном из дворов клубного квартала. Здесь можно провести встречу за чашечкой свежесваренного кофе или спокойно поработать – для этого локация обустроена удобными зонами с розетками.

Пространство iD Club в клубном квартале iD Svetlanovskiy
Пространство iD Club в клубном квартале iD Svetlanovskiy

Дополнительным преимуществом станут детский сад и школа, расположенные на территории квартала. Не придется тратить много времени, чтобы отвести ребенка на занятия. А благодаря подземному паркингу, во дворах не будет машин, дети более старшего возраста смогут ходить в школу самостоятельно.

Расположение

Даже если вы проводите большую часть рабочего дня дома за компьютером, наличие собственной инфраструктуры и расположение вашего жилого комплекса имеет огромное значение. Близость к центру, а также остановок общественного транспорта позволит вам без потери времени назначать рабочие встречи вне дома или периодически приезжать в офис. Клубный квартал iD Svetlanovskiy находится в пешей доступности от станций метро синей ветки «Удельная» и «Пионерская». На общественном и личном автотранспорте отсюда всего за несколько минут добраться до исторической части города. Кроме того, клиентам тоже будет гораздо удобнее приезжать к вам домой.

 Клубный квартал iD Svetlanovskiy
Клубный квартал iD Svetlanovskiy

Совмещаем работу и отдых

Наличие зон отдыха и парка рядом с домом гарантирует вам бодрое начало рабочего дня и его спокойное завершение. Это прекрасная возможность не только любоваться красивыми видами, но и чаще отдыхать на свежем воздухе. Здесь можно приобщиться к спорту и здоровому образу жизни – пробежки, скандинавская ходьба, катание на лыжах, коньках, прогулки с питомцем или отдых вечером всей семьей – всё это будет в вашем распоряжении. Живите и работайте в свое удовольствие!

Застройщик ООО «СЗ ЕВРОИНВЕСТ Светлановский». Проектная декларация на сайте наш.дом.рф. ПАО «Сбербанк» - ген.лиц №1481 от 11.08.2015