Найти в Дзене
RBI. Строим искусство

6 идеальных планировок квартир, которые можно найти в клубном доме Futurist на Петроградской стороне

Если вы прямо сейчас выбираете недвижимость, обратите внимание на готовый дом Futurist на Петроградской стороне. Разноэтажные корпуса клубного дома выросли вокруг памятника конструктивизма – бывшего Левашовского хлебозавода. Подземный паркинг освободил пространство от машин и позволил создать на территории самый большой на Петроградской стороне внутренний двор со сквером, общественным пространством и уникальной детской площадкой. Предмет отдельной гордости создателей – планировки. В них есть все, что нужно в современном жилье премиум класса: много солнца – все квартиры выходят на две, а некоторые – на три стороны, разделение на приватную и общественную зоны, три санузла в каждой квартире и большие гардеробные. Рассмотрим их повнимательнее. Возможно, одна из них – ваш будущий дом. Планировка 1: квартира с потолками 4 метра в прихожей и большой гардеробной Общая площадь – 106,9 м Жилая площадь – 34,7 м Этаж – 1 из 9 Стоимость 35 494 752 руб. Вот так выглядит планировка двухкомнатной ква

Если вы прямо сейчас выбираете недвижимость, обратите внимание на готовый дом Futurist на Петроградской стороне.

Разноэтажные корпуса клубного дома выросли вокруг памятника конструктивизма – бывшего Левашовского хлебозавода. Подземный паркинг освободил пространство от машин и позволил создать на территории самый большой на Петроградской стороне внутренний двор со сквером, общественным пространством и уникальной детской площадкой.

Предмет отдельной гордости создателей – планировки. В них есть все, что нужно в современном жилье премиум класса: много солнца – все квартиры выходят на две, а некоторые – на три стороны, разделение на приватную и общественную зоны, три санузла в каждой квартире и большие гардеробные. Рассмотрим их повнимательнее. Возможно, одна из них – ваш будущий дом.

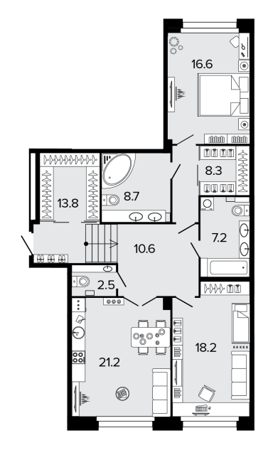
Планировка 1: квартира с потолками 4 метра в прихожей и большой гардеробной

Общая площадь – 106,9 м

Жилая площадь – 34,7 м

Этаж – 1 из 9

Стоимость 35 494 752 руб.

Вот так выглядит планировка двухкомнатной квартиры площадью 106,9 кв.м. Окна квартиры выходят на юго-восток и северо-запад. Пролистайте галерею, чтобы посмотреть вид из окна.

Это самая тихая из квартир – корпус находится во дворе и отделен от улицы зеленым палисадником.

Главная особенность этой квартиры – парадная входная группа с 4-метровыми потолками, пологой лестницей и просторным холлом. В большой гардеробной слева от входа одинаково удобно ставить коляску и детский транспорт или повесить пальто гостей, пришедших на вечеринку.

Ни дети, ни гости не помешают уединенности хозяйской спальни. Приватная зона отделена от общей. За закрытой дверью находится мастер-спальня, просторная гардеробная и ванная площадью почти 9 метров. Здесь можно установить джакузи, душ и массажный стол и сделать персональную SPA-зону.

Планировка 2: квартира с большими угловыми окнами в гостиной и спальне

Общая площадь – 131,7 м

Жилая площадь – 55,4 м

Этаж - 7 из 9

Стоимость 71 094 096 руб.

Кроме больших угловых окон, которые делают квартиру очень светлой, в этой планировке просто идеальное решение приватной зоны. В галерее покажем вид из окон – листайте, а ниже подробнее изучим планировку.

Общая площадь приватной зоны – почти 40 кв.м. Здесь разместилась большая светлая спальня, просторная гардеробная и восьмиметровая ванная. Площадь санузла и гардеробной легко позволяют учесть интересы двоих людей, а размер спальни – дополнить место для отдыха маленькой гостиной зоной.

Полноценная кухня-гостиная расположена ближе к входной группе и не имеет четвертой стены – благодаря коридору она кажется еще больше. Прямо из гостиной можно попасть в две отдельные комнаты. Их окна выходят во двор, поэтому спать и работать в них одинаково комфортно.

Планировка 3: последняя квартира с видом на Неву и крыши Петроградской стороны

Общая площадь – 128,4 м

Жилая площадь – 44,7 м

Этаж – 9 из 9

Стоимость 84 027 597 руб.

Гостевая зона в этой квартире – почти 50 метров (холл+кухня-гостиная) и прекрасно подойдет для любителей принимать гостей. Вид из окон на Малую Невку и небоскреб Лахта Центра покорит каждого, кто его увидит.

Планировка квартиры осевая – по центру от входа находятся холл и гостиная, справа и слева приватные зоны. Такое распределение позволяет использовать любимый принцип дизайнеров «идти на красивое» – холл и просторная гостиная будто созданы для размещения предметов искусства.

Хозяйскую зону можно отделить, просто закрыв дверь – гости или персонал не попадут в мастер-ванную или личную гардеробную. Квартира трехсторонняя, поэтому в ней весь день будет солнце. Большая лоджия ориентирована на юго-восток – здесь будет приятно заниматься утренней йогой или завтракать.

Планировка 4: квартира с окном в ванной

Общая площадь – 155,2 м

Жилая площадь – 83,2 м

Этаж – 7 из 9

Стоимость 86 452 357 руб.

Видовая квартира для большой семьи. В этой планировке кухня и гостиная разделены между собой. Если их объединить, получится пространство почти в 50 кв.м.

Окна квартиры выходят на памятник архитектуры – Левашовский хлебозавод, архитектурную доминанту клубного дома Futurist. Окна расположены по одной оси – дом всегда пронизан светом.

Приватная зона хозяев максимально далеко и от входа, и от гостевой зоны. Внутри нее есть не только мастер-ванная площадью 7,5 метров с окном и гардеробная, но и лоджия для отдыха и релаксации. Просторный холл дополняет площадь общественной зоны – в таком доме можно смело собираться большими компаниями, места хватит на всех.

Планировка 5: последняя квартира на высоком 8 этаже

Общая площадь – 133,1 м

Жилая площадь – 52,4 м

Этаж – 8 из 9

Стоимость 72 627 942 руб.

Рай для хозяина-интроверта: закрыв дверь в свою половину, можно наслаждаться тишиной и комфортом. Еще из плюсов: большая лоджия, ориентированная на юго-восток и просторный холл с выделенной прихожей

Квартира для комфортной жизни двух, а то и трех поколений одной семьи. В просторной хозяйской спальне хватит места и для небольшой рабочей зоны. Выделенная прихожая и близкий к ней санузел – самое удобное решение для владельцев собак или родителей маленьких детей. Ни те, ни другие не будут разносить грязь по квартире после прогулки.

Комбинация «большая хозяйская спальня + большая гардеробная + большая ванная» и их расположение делают приватную зону удобной для двух людей даже с одинаковым графиком жизни.

Планировка 6: квартира с большим панорамным балконом и окнами на 3 стороны

Общая площадь – 144 м

Жилая площадь – 53,5 м

Этаж – 7 из 9

Стоимость 79 417 640 руб.

Квартира-резиденция с невероятно просторной гостиной зоной и видовой лоджией. Когда в доме много гостей, приватные зоны можно легко закрыть и сделать «невидимыми» для посторонних глаз.

Пространство построено по центральной оси прямо от входа через гостевую зону к видовой лоджии. Здесь приятно принимать гостей – на банкете с рассадкой в зоне гостиной или на фуршете с видом на город.

Окна квартиры выходят на три стороны. Окно есть даже в хозяйской ванной - ее площадь целых 11 метров!

Санузел во второй приватной зоне не намного меньше, а вот гардеробная даже больше хозяйской – она вполне устроит подростков или молодых взрослых, которые будут жить в этой квартире.

Удачная планировка и выигрышная локация – две самые важные вещи для премиального жилья. Они помогают реализовывать разные сценарии жизни и делают дом удобным для всех членов семьи. Оценить преимущества планировок RBI можно не только по чертежам, но и вживую – дом уже сдан. Просто предупредите о своем визите, а менеджер на объекте с удовольствием покажет вам наши лучшие квартиры.

Застройщик ЗАО «Северный город», проектная декларация на сайте https://www.rbi.ru/declarations/