Добавить в корзинуПозвонить
Найти в Дзене
Филдс

Как выглядит нежный интерьер 37 м² для молодой девушки в ЖК Green Park: планировка до и после

Дизайнеры Анастасия и Евгений Российские оформили евродвушку площадью 37 м² для молодой девушки, руководителя экскурсионного бюро. Заказчица очень хотела получить легкий и воздушный интерьер. Планировка до и после Гостиная Интерьер оформили в светлых тонах — оттенок краски для стен близок к потолку, поэтому граница между двумя плоскостями зрительно размывается. Кухня Линейный гарнитур упаковали в нишу. Холодильник встроили в высокий пенал. Вровень с ним под потолком пустили ряд антресолей, чтобы увеличить объём мест для хранения. Белые фасады сочетали с нежно-розовыми, в тон обивке дивана. Благодаря зеркальному цоколю удалось достичь эффекта парения. Спальня Для отделки спальни выбрали краску бледно-голубого оттенка, её не доводили до верха, чтобы визуально увеличить высоту комнаты. Стык между разными оттенками оформили контрастной тёмной полосой. Прихожая «Грязную» зону в прихожей выделили плиткой под мрамор. При входе предусмотрели пуф с графичным основанием, зеркало и полку
Оглавление

Дизайнеры Анастасия и Евгений Российские оформили евродвушку площадью 37 м² для молодой девушки, руководителя экскурсионного бюро. Заказчица очень хотела получить легкий и воздушный интерьер.

  • Общая площадь: 37 м²
  • Место: Москва
  • Тип дома: ЖК Green Park
  • Количество комнат: евродвушка
  • Высота потолка: 2,9 м
  • Кто здесь живет: молодая девушка
  • Бюджет: 2,7 млн рублей
  • Фото: Евгений Гнесин
  • Стилист: Ирина Бебешина

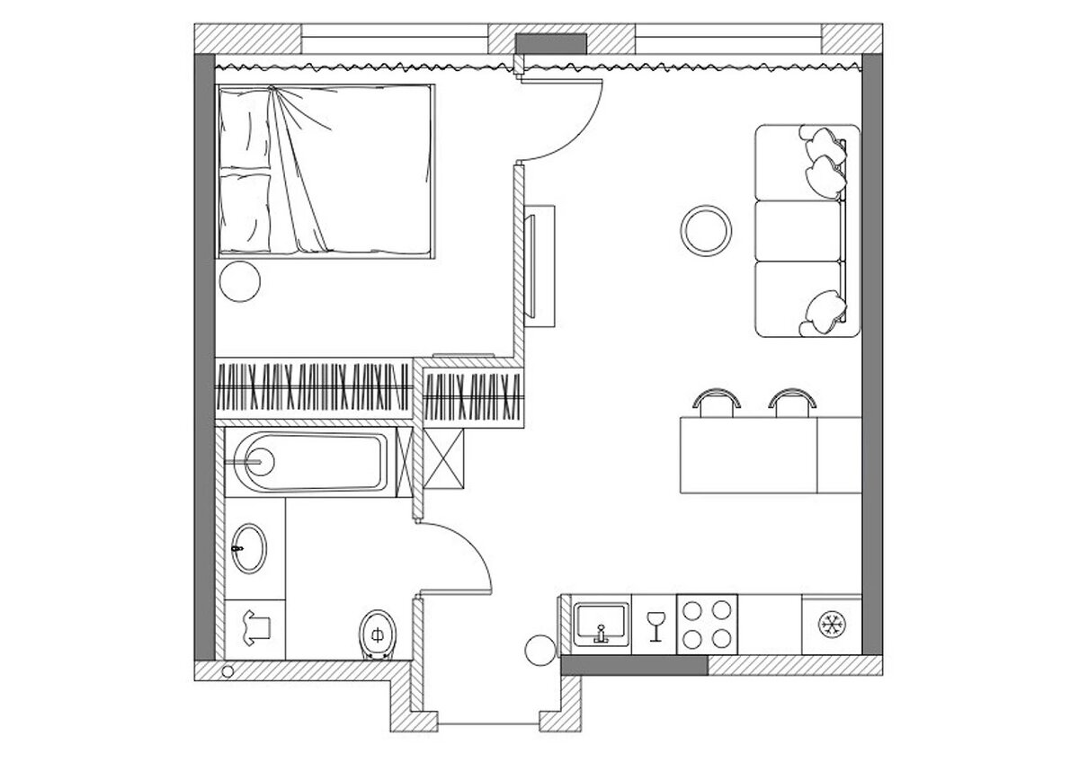
Планировка до и после

Гостиная

Интерьер оформили в светлых тонах — оттенок краски для стен близок к потолку, поэтому граница между двумя плоскостями зрительно размывается.

Кухня

Линейный гарнитур упаковали в нишу. Холодильник встроили в высокий пенал. Вровень с ним под потолком пустили ряд антресолей, чтобы увеличить объём мест для хранения. Белые фасады сочетали с нежно-розовыми, в тон обивке дивана. Благодаря зеркальному цоколю удалось достичь эффекта парения.

Спальня

Для отделки спальни выбрали краску бледно-голубого оттенка, её не доводили до верха, чтобы визуально увеличить высоту комнаты. Стык между разными оттенками оформили контрастной тёмной полосой.

Прихожая

«Грязную» зону в прихожей выделили плиткой под мрамор. При входе предусмотрели пуф с графичным основанием, зеркало и полку для мелочей. В конце коридора также есть угловой шкаф с отсеками для хранения вещей и хозяйственных принадлежностей.

-5

Санузел

В санузле плитку скомбинировали с краской — розовую керамику использовали на акцентной стене напротив входа, а на полу исполнили рисунок терраццо.

Интересные мнения в комментариях приветствуются. Если материал понравился — ставь лайк!

Филдс это не только блог на Дзене, но и магазин дизайнерской мебели. Дарим 3000 ₽ на первую покупку. Заходите на сайт и выбирайте мебель, которую используют дизайнеры в своих проектах.