Найти в Дзене

Проект красивого дома с тремя спальнями и большой верандой 145 кв.м.

Проект интересного дома с предполагаемой русской печью на кухне и тремя спальнями. По планировке все довольно просто, разнесены детские и хозяйская спальни. Хозяйская спальня находится в отдельном блоке, где есть гардеробная, сама спальня, санузел хозяйский и дополнительно небольшой кабинет. В доме отличная прихожая, со своей гардеробной, прекрасный гостевой санузел, две просторные детские комнаты, большая котельная, которую дополнительно можно использовать и как кухонную кладовку, хотя для этого есть шкаф в коридоре. Ну и собственно кухня-гостиная, с местом под русскую печь и столовой зоной, с выходом на крытую веранду. По этому дому есть полная рабочая документация. Так же приглашаю вас посетить сайт нашего нового проекта, посвященный маленьким домам https://www.nashmini.com/ А основной наш сайт находится по адресу: https://homeinthewood.wixsite.com/home Если возникнут вопросы или предложения, если возникнет желание просто пообщаться, добро пожаловать в комментарии или к нам на с
Оглавление
Вид на веранду
Вид на веранду

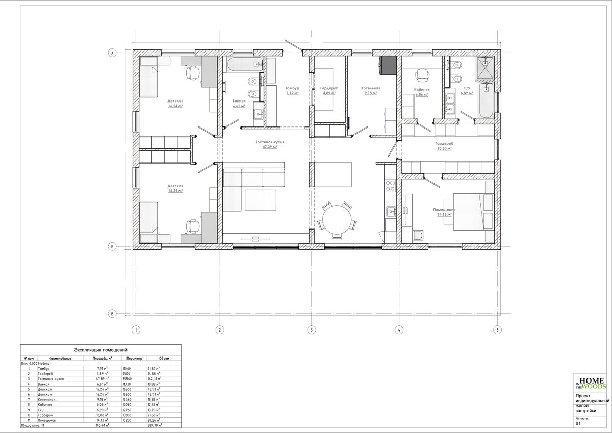
Проект интересного дома с предполагаемой русской печью на кухне и тремя спальнями.

По планировке все довольно просто, разнесены детские и хозяйская спальни. Хозяйская спальня находится в отдельном блоке, где есть гардеробная, сама спальня, санузел хозяйский и дополнительно небольшой кабинет.

План дома
План дома

В доме отличная прихожая, со своей гардеробной, прекрасный гостевой санузел, две просторные детские комнаты, большая котельная, которую дополнительно можно использовать и как кухонную кладовку, хотя для этого есть шкаф в коридоре. Ну и собственно кухня-гостиная, с местом под русскую печь и столовой зоной, с выходом на крытую веранду.

Вид на входную группу
Вид на входную группу
Вид на входную группу
Вид на входную группу
Вид на входную группу
Вид на входную группу
Вид на веранду
Вид на веранду
Вид на веранду
Вид на веранду
Вид на веранду
Вид на веранду
Вид на дом со стороны участка
Вид на дом со стороны участка

По этому дому есть полная рабочая документация.

Так же приглашаю вас посетить сайт нашего нового проекта, посвященный маленьким домам

https://www.nashmini.com/

А основной наш сайт находится по адресу:

https://homeinthewood.wixsite.com/home

Если возникнут вопросы или предложения, если возникнет желание просто пообщаться, добро пожаловать в комментарии или к нам на сайт, в раздел контакты.

Спасибо за уделенное внимание❗👍

Лайк и комментарий приветствуются❗👍

Подписывайтесь