Добавить в корзинуПозвонить
Найти в Дзене
Записки старого прораба

Стройгенплан. С чего начинается строительство

Начали строить дом, и вдруг возникает целый букет нерешенных вопросов. Не таких значимых, как строительство дома, но требующего дополнительных временных и финансовых затрат. О чем я? Это разговор о стройгенплане. Я в своей практике ни разу не начинал строить дом без этого документа. И не обязательно это полноценный чертеж, возможно нарисованный от руки или нанесенный на генплан все необходимые мероприятия для того чтобы в процессе строительства не тратить времени, а самое главное денег. В этой статье мы и рассмотрим, что такое стройгенплан. А для начала по традиции анекдот о строителях, стройке и жизни вокруг зодчества: Лена бросила своего мужа, когда узнала, что он купил два алмазных диска для какой-то болгарки. Поехали… Отличие стройгенплана от генплана. Генплан это конечный результат строительства дома. А стройгенплан, это проект производства работ. Это в два слова без большого углубления. Какие вопросы предусматривает стройгенплан. Подготовительный период. Итоговый вариант. Постара
Оглавление

Начали строить дом, и вдруг возникает целый букет нерешенных вопросов. Не таких значимых, как строительство дома, но требующего дополнительных временных и финансовых затрат. О чем я? Это разговор о стройгенплане.

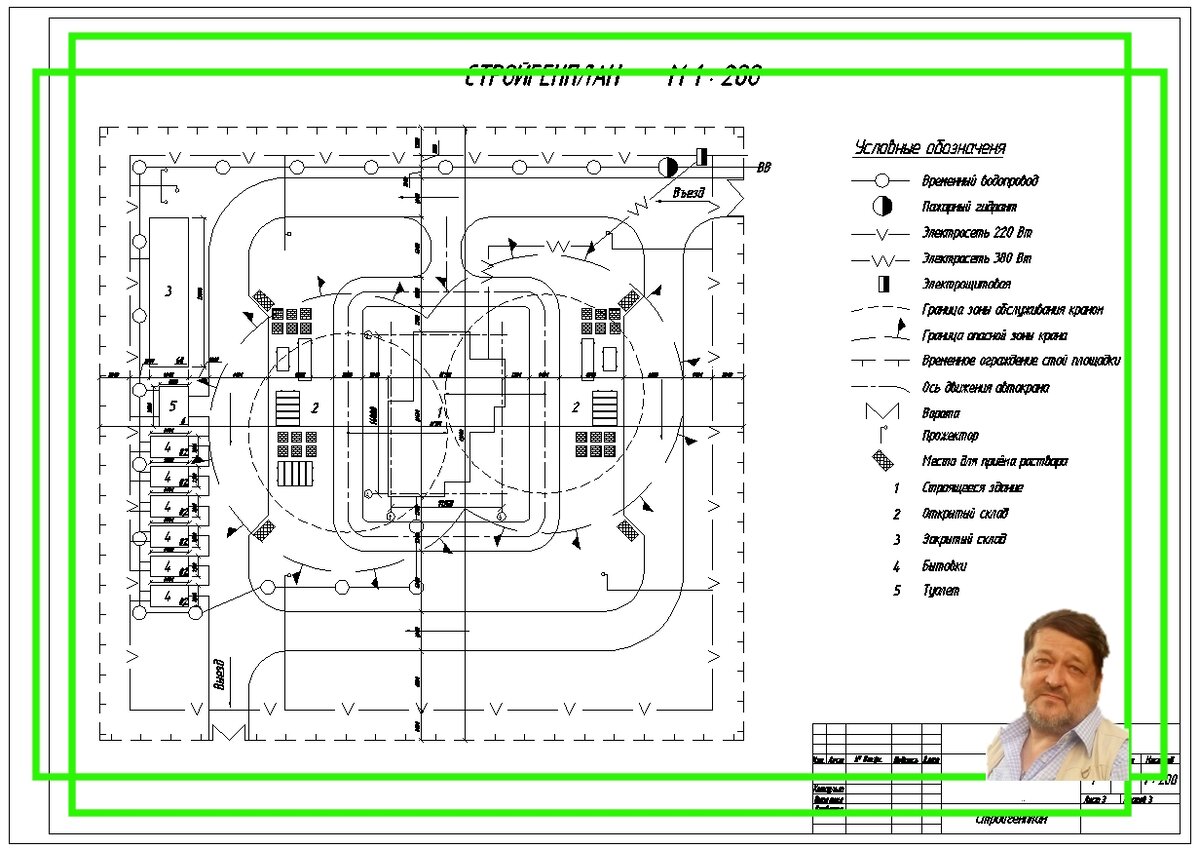
Стройгенплан. Источник фото: https://clck.ru/rfd4b
Стройгенплан. Источник фото: https://clck.ru/rfd4b

Я в своей практике ни разу не начинал строить дом без этого документа. И не обязательно это полноценный чертеж, возможно нарисованный от руки или нанесенный на генплан все необходимые мероприятия для того чтобы в процессе строительства не тратить времени, а самое главное денег. В этой статье мы и рассмотрим, что такое стройгенплан. А для начала по традиции анекдот о строителях, стройке и жизни вокруг зодчества:

Лена бросила своего мужа, когда узнала, что он купил два алмазных диска для какой-то болгарки.

Поехали…

Отличие стройгенплана от генплана.

Генплан это конечный результат строительства дома. А стройгенплан, это проект производства работ. Это в два слова без большого углубления.

Какие вопросы предусматривает стройгенплан.

Подготовительный период.

  • Ограждение участка с указанием въездных ворот и временных съемных секций. Ворота учитывая габариты строительной техники и радиуса поворотов должны быть не менее 4 метров. А временные съемные секции нужны для простоты разгрузки материалов.
Ограждение участка.
Ограждение участка.
  • Временные дороги. Желательно, чтобы они находились на местах будущих проездов и площадок. И сделать основание необходимо сразу, не каждый день у нас солнечное лето.
  • Бытовые условия для строителей. Место установки бытовок, санузла и мест складирования бытового и строительного мусора. Кстати по закону в зону Вашей ответственности входит и 5 метровая зона за забором. И даже если мусор на этой земле не Ваш, штраф получит хозяин участка. Предусмотрите проезд к санузлу. Обычно шланг у ассенизационной машины не более 12 метров.
  • Места складирования материалов. Их три вида. Для крупногабаритных грузов. Они должны быть в зоне действия крана и при этом кран с одной стоянки должен взять груз и подать его на стройку. Далее для сыпучих материалов. Постарайтесь не располагать их в низинах. И наконец, навесы для цемента и цементных смесей, которые боятся влаги. Еще неплохо бы организовать закрытый склад для инструментов и метизов.
Общий вид площадки по стройгенплану.
Общий вид площадки по стройгенплану.
  • Инженерные сети. Их у нас два вида. Временные, то есть это точки подключения для производства работ в период строительства и постоянные. К постоянным относятся: кабельные электрические сети, водопроводы, скважины, септики и сети канализации. Временные сети могут быть ограничены лишь электрическим щитком и при возможности водяным краном. При отсутствии электричества или воды предусмотрите место под установку водяной емкости и дизель-генератора.

Итоговый вариант.

Постарайтесь нанести все эти позиции на свой рисунок или генплан. Получится далеко не сразу. Но, дорогу осилит идущий. Учтите прохождение подземных коммуникаций вне дома. Соскладировав над ними строительные материалы или установив бытовые помещения, придется тратить деньги и время на перестановку.

Если сразу предусмотрите все вопросы, то строительство пойдет намного проще, без нервотрепки и срывов сроков.

Пожалуйста, подпишитесь на мой канал и поставьте лайки. Вам это не сложно, а я пойму насколько мой труд Вам важен.

Обратите внимание на статью:

Рубрикатор, гид по публикациям на канале или попросту «Оглавление» 320 моих статей о строительстве частного дома.

Удачи в строительстве и ремонте!