Найти в Дзене
Территория бани

Проект бани с комнатой отдыха

Баня с односкатной крышей с облицовкой из дерева.
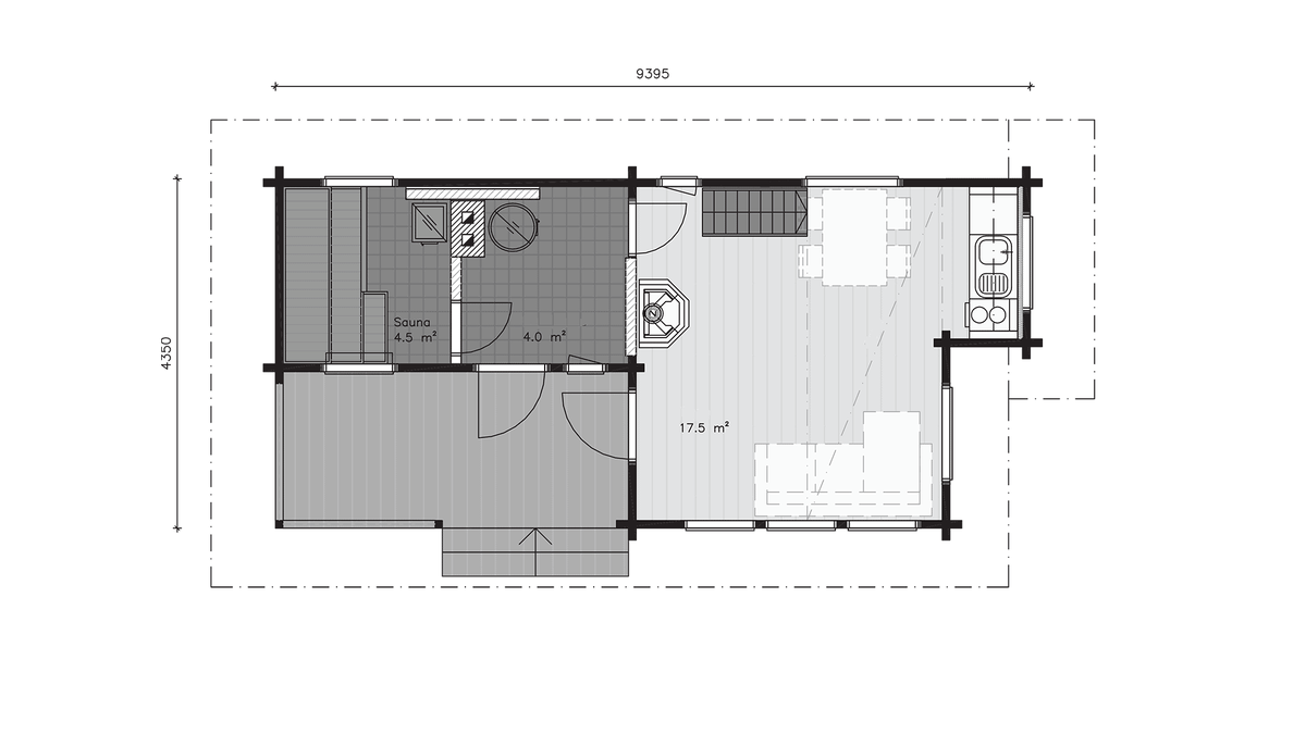
Включает большой предбанник, парное отделение, помывочную зону, столовую с мини-кухней и комфортную комнату отдыха. Баня имеет второй неполноценный этаж, где можно сделать дополнительную комнату отдыха с собственным санузлом.

Баня с односкатной крышей с облицовкой из дерева.

Включает большой предбанник, парное отделение, помывочную зону, столовую с мини-кухней и комфортную комнату отдыха.

План первого этажа
План первого этажа

Баня имеет второй неполноценный этаж, где можно сделать дополнительную комнату отдыха с собственным санузлом.

План второго этажа.
План второго этажа.