Добавить в корзинуПозвонить
Найти в Дзене

Уменьшенная копия одного популярного проекта из 151 кв.м. в 126 кв.м.

Есть у нас один старый, но очень популярный проект, за много лет он уже был построен не раз, плюс было достаточно много вариаций этого проекта. Назывался он Mountain Chalet А вот так выглядит его изначальная планировка: Поступило предложение по возможности и без ущерба для основных помещений уменьшить размеры этого дома. В принципе давно хотел это сделать, так как там были некоторые паразитные площади, от которых можно было с легкостью избавиться. В общем получилось сократить дом аж на 25 кв.м., а это уже достаточно существенно, с учетом стоимости строительства каждого квадратного метра, если еще и без ущерба для жилых помещений. Получился вот такой уютный домик, с очень неплохой планировкой: А вот собственно и планировка, которая получилась в итоге: Как видите почти ничего не поменялось, спальни остались почти в своих площадях, зона кухни и честная зона гостиной, так же почти остались без изменений, а вот проходные зоны претерпели довольно существенные уменьшения площадей. Тем самым п
Оглавление

Есть у нас один старый, но очень популярный проект, за много лет он уже был построен не раз, плюс было достаточно много вариаций этого проекта.

Назывался он Mountain Chalet

Проект дома Mountain Chalet
Проект дома Mountain Chalet

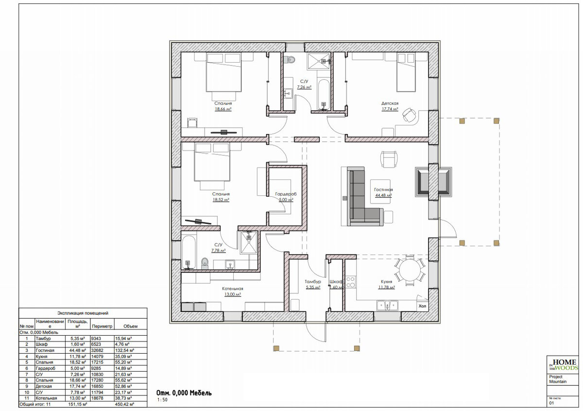
А вот так выглядит его изначальная планировка:

Mountain Chalet план дома
Mountain Chalet план дома

Поступило предложение по возможности и без ущерба для основных помещений уменьшить размеры этого дома. В принципе давно хотел это сделать, так как там были некоторые паразитные площади, от которых можно было с легкостью избавиться.

В общем получилось сократить дом аж на 25 кв.м., а это уже достаточно существенно, с учетом стоимости строительства каждого квадратного метра, если еще и без ущерба для жилых помещений.

Получился вот такой уютный домик, с очень неплохой планировкой:

Проект Chalet MINI
Проект Chalet MINI

А вот собственно и планировка, которая получилась в итоге:

Проект Chalet MINI планировка дома
Проект Chalet MINI планировка дома

Как видите почти ничего не поменялось, спальни остались почти в своих площадях, зона кухни и честная зона гостиной, так же почти остались без изменений, а вот проходные зоны претерпели довольно существенные уменьшения площадей. Тем самым проект дома стал финансово более оптимальным.

Проект Chalet MINI
Проект Chalet MINI
Проект Chalet MINI
Проект Chalet MINI
Проект Chalet MINI
Проект Chalet MINI
Проект Chalet MINI
Проект Chalet MINI
Проект Chalet MINI
Проект Chalet MINI

Кстати убрали камин и барбекю, да они придавали некоторый шарм этому дому, но для многих людей это просто ненужные вещи, которыми будут пользоваться исключительно по очень редким праздникам, а затрат на них будет довольно много.

По этому дому есть полная рабочая документация.

Так же приглашаю вас посетить сайт нашего нового проекта, посвященный маленьким домам

https://www.nashmini.com/

А основной наш сайт находится по адресу:

https://homeinthewood.wixsite.com/home

Если возникнут вопросы или предложения, если возникнет желание просто пообщаться, добро пожаловать в комментарии или к нам на сайт, в раздел контакты.

Спасибо за уделенное внимание❗👍

Лайк и комментарий приветствуются❗👍

Подписывайтесь