Добавить в корзинуПозвонить
Найти в Дзене

Проект каркасного дома 35 м2

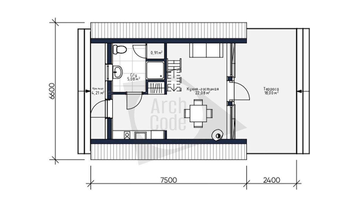
Встречайте компактный интересный и стильный дом «A-Frame 35» из нашей новой линейки каркасных домов. - Общая площадь дома - 35 м2 - Габаритные размеры - 9,9 х 6,6 м «A-Frame 35» - это самый компактный дом в нашей новой линейке каркасников. Проект идеально подойдет в качестве дома для отдыха или для небольшого дачного участка. В состав помещений дома входят: кухня-гостиная, с/у, помещение для коммуникаций, антресоль. Линейка проектов каркасных домов в стиле A-Frame. Нравится проект? Или не в вашем вкусе? Напишите комментарии!

Встречайте компактный интересный и стильный дом «A-Frame 35» из нашей новой линейки каркасных домов.

- Общая площадь дома - 35 м2

- Габаритные размеры - 9,9 х 6,6 м

«A-Frame 35» - это самый компактный дом в нашей новой линейке каркасников. Проект идеально подойдет в качестве дома для отдыха или для небольшого дачного участка.

В состав помещений дома входят: кухня-гостиная, с/у, помещение для коммуникаций, антресоль.

Линейка проектов каркасных домов в стиле A-Frame.

Нравится проект? Или не в вашем вкусе? Напишите комментарии!