Найти в Дзене
Дизайн интерьера NORD

Как снять замеры помещения самостоятельно

Дизайн интерьера онлайн (без выезда дизайнера) становится все более популярным. Причин может быть много, но это не значит, что от дизайна интерьера нужно отказаться. В таких случаях вы должны знать как снять замеры помещения самостоятельно без дизайнера.
👉🏻 Итак, вам понадобятся: рулетка (в идеале дальномер), копия плана проектируемого помещения-ий (план можно отксерокопировать или отсканировать на бумаге), ручка/карандаш, телефон для фото-видеосъемки.
Дизайнеры пользуются дальномером или лазерной рулеткой и обычной рулеткой, но если у вас его нет – ничего страшного. Обычной рулетки 5-7 метров практически всегда бывает достаточно.
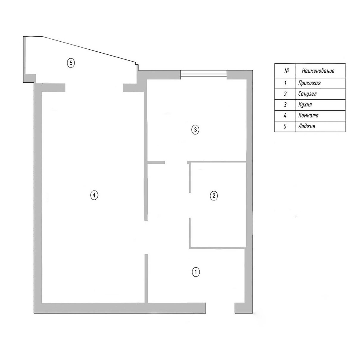
👉🏻 Если по каким-то причинам у вас нет плана или вы не можете сделать его копию, то его нужно нарисовать. Берем бумагу формата А4 и схематично отображаем комнаты так, как будто вы смотрите сверху. Если это квартира или дом с несколькими помещениями – каждое помещение нумеруем ( под номером 1 должна быть прихожая). Это и будет план вашего объекта.
1️⃣

Дизайн интерьера онлайн (без выезда дизайнера) становится все более популярным. Причин может быть много, но это не значит, что от дизайна интерьера нужно отказаться. В таких случаях вы должны знать как снять замеры помещения самостоятельно без дизайнера.


👉🏻 Итак, вам понадобятся: рулетка (в идеале дальномер), копия плана проектируемого помещения-ий (план можно отксерокопировать или отсканировать на бумаге), ручка/карандаш, телефон для фото-видеосъемки.

Дизайнеры пользуются дальномером или лазерной рулеткой и обычной рулеткой, но если у вас его нет – ничего страшного. Обычной рулетки 5-7 метров практически всегда бывает достаточно.

👉🏻 Если по каким-то причинам у вас нет плана или вы не можете сделать его копию, то его нужно нарисовать. Берем бумагу формата А4 и схематично отображаем комнаты так, как будто вы смотрите сверху. Если это квартира или дом с несколькими помещениями – каждое помещение нумеруем ( под номером 1 должна быть прихожая). Это и будет план вашего объекта.

-2


1️⃣ Теперь идем в помещение №1 и начинаем его измерять. Замеры начинаем от входной двери, понадобится ее ширина и высота. Также измерим толщину стены. После этого начинаем замеры по кругу:

от двери до угла
от угла до проема
ширина/высота проема
от проема до следующего угла и т.д.

2️⃣ Размер окон указываем так: ширина, высота, расстояние между подоконником (или окном, если подоконника нет) и полом. Каждый размер указываем на плане в миллиметрах. Если на стене есть какие-либо объекты – вносим их в план. Например, трубы или батареи (также указывает ширину, высоту, толщину и расстояние от пола). В кухонных помещениях и санузлах укажите на плане размещение вентиляционной шахты, канализации и труб если не планируете их переносить. Окончательным размером будет высота потолков. Ее желательно измерить в каждом помещении.

-3


🎥 После всех измерений, нужно сделать фото и видеосъемку. Старайтесь, чтобы каждая стена, каждый угол был виден на фото.

Как видите, снять замеры помещения самостоятельно совсем несложно.

#дизайнинтерьера #дизайнер #дизайн #дизайнпроект #дизайнквартиры #дизайнеринтерьера #дизайнкухни #дизайнстудия #дизайнеры #дизайнквартир