Добавить в корзинуПозвонить
Найти в Дзене

Проверка юридической чистоты квартиры: А сам смогу?

Думаю, вы со мной согласитесь, что приобретение недвижимости для каждого человека - это ответственное решение, ответственный шаг. По статистике, за период активной жизнедеятельности человек в среднем покупает всего 1-2 квартиры. Безусловно, когда речь идет о таком важном приобретении, нельзя забывать о безопасности сделки. И, в первую очередь, необходимо проверить квартиру на юридическую чистоту. К сожалению, покупка квартиры таит в себе массу опасностей. Нередки случаи, когда сделки аннулировались или признавались ничтожными. Мне нередко задают вопрос: Возможно ли САМОСТОЯТЕЛЬНО досконально проверить квартиру на юридическую чистоту , чтобы быть уверенными, что потом не возникнет непредсказуемых ситуаций? Увы, нет! Самостоятельно проверить все тонкости и нюансы, досконально проверить продавца и объект недвижимости практически невозможно. Я настоятельно рекомендую обращаться к квалифицированной помощи агента по недвижимости или юриста. Если вы все же приняли решение самостоятельно про

Думаю, вы со мной согласитесь, что приобретение недвижимости для каждого человека - это ответственное решение, ответственный шаг.

По статистике, за период активной жизнедеятельности человек в среднем покупает всего 1-2 квартиры.

Безусловно, когда речь идет о таком важном приобретении, нельзя забывать о безопасности сделки. И, в первую очередь, необходимо проверить квартиру на юридическую чистоту.

К сожалению, покупка квартиры таит в себе массу опасностей. Нередки случаи, когда сделки аннулировались или признавались ничтожными.

Мне нередко задают вопрос:

Возможно ли САМОСТОЯТЕЛЬНО досконально проверить квартиру на юридическую чистоту , чтобы быть уверенными, что потом не возникнет непредсказуемых ситуаций?

Увы, нет!

Самостоятельно проверить все тонкости и нюансы, досконально проверить продавца и объект недвижимости практически невозможно. Я настоятельно рекомендую обращаться к квалифицированной помощи агента по недвижимости или юриста.

Если вы все же приняли решение самостоятельно проверить квартиру на юридическую чистоту, то, в первую очередь, необходимо обратить внимание на следующие моменты:

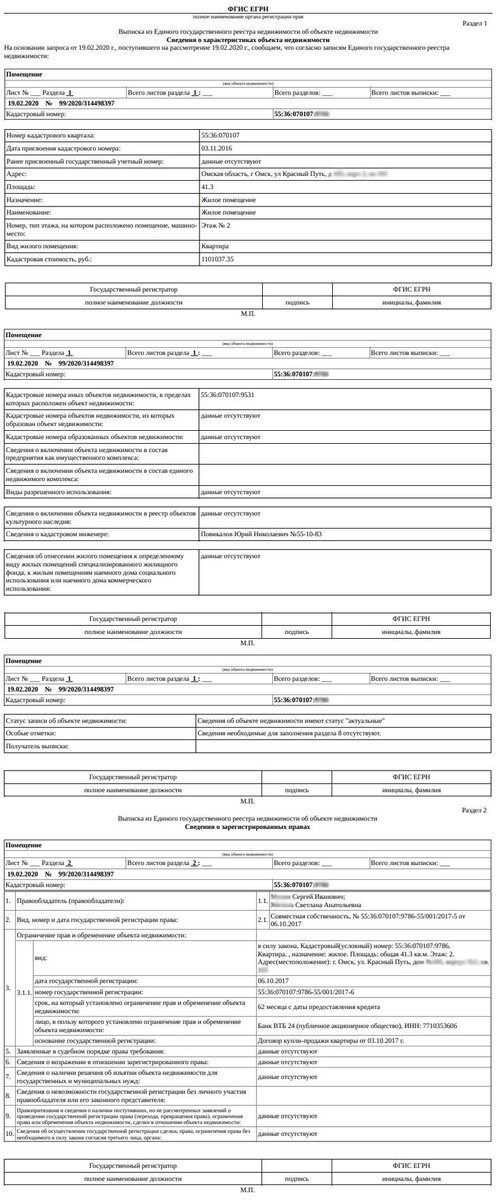
1. Выписка ЕГРН из Росреестра.

Образец электронной выписки из ЕГРН в 2022 году
Образец электронной выписки из ЕГРН в 2022 году

Это публичные данные, которые можно заказать на официальном сайте Росреестра.

В выписке содержится информация о владельце квартиры, кадастровый номер и кадастровая стоимость квартиры, сведения об объекте и зарегистрированных правах, обременениях на квартиру, о переходе права собственности на квартиру.

В ЕГРН содержится история всех жилых объектов, начиная с 1998 года. Есть информация о переходах права собственности, запретах на проведение сделок, арестах имущества, имущественных спорах.

Если имеются споры или аресты, нужно смотреть на срок давности. Конфликты и споры, срок давности (3 года) которых не истек, могут обернуться проблемой для нового собственника.

Если объект часто перепродавался или в квартире долго никто не жил, это также должно насторожить вас.

Старые квартиры могут быть не зарегистрированы в ЕГРН. Это говорит о том, что объект юридически чист. Но если сомнения все же имеются, можно направить запрос в Департамент жилищной политики.

2. Дела о банкротстве.

Необходимо понимать, не является ли продавец квартиры фигурантом дела о банкротстве. Проверить информацию о наличии дел о банкротстве (как действующих, так и завершенных) вы можете на сайте Федерального реестра сведений о банкротстве или на сайте картотеки арбитражных дел. Для этого понадобятся ФИО или ИНН собственника квартиры.

3. Наличие судебных разбирательств.

Это можно сделать, используя открытые источники.

В первую очередь, проверяем:

  • наличие исполнительных производств (на сайте ФССП). Данная проверка позволит узнать о просроченных обязательствах, которые могут привести к банкротству;
  • наличие судебных споров, где продавец выступает в качестве ответчика.
Рекомендую обратить особое внимание на семейные споры (раздел имущества), наследственные споры, споры, вытекающие из договоров займа и кредитных договоров, которые, как правило, обеспечиваются недвижимым имуществом.

Если вы выполните все выше обозначенные пункты и поймете, что они не несут никакой опасности, то вы, однозначно, снимете с себя ряд рисков. Но, увы, повторюсь, что без специалиста невозможно проверить все нюансы, учесть все подводные камни той или иной сделки.

Более того, если сделка проходит в ипотеку, то добавляется и кредитный договор, который нужно очень внимательно читать и знакомиться с условиями.

Помните, что скупой платит дважды, поэтому обязательно взвесьте все За и Против перед тем, как приступать к такому ответственному мероприятию самостоятельно.

#юридическая чистота

#недвижимость москва

#ипотека москва

#проверка документов