Добавить в корзинуПозвонить
Найти в Дзене

ЖК Level Южнопортовая. Планировки квартир, их цены в мае 2022 и варианты отделки

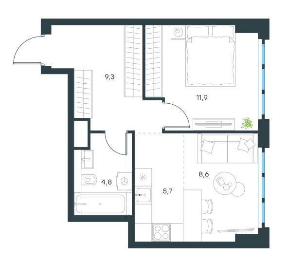
ЖК Level Южнопортовая - это 14 корпусов переменной 12-69 этажности от LEVEL Group в ЮВАО, район Печатники ______ ______ А мы посмотрим на квартиры, которые сейчас продаются Студии . Их нет, при выборе на официальном сайте проекта Однокомнатные 17-39 кв.м. Их метраж объясняет, почему нет студий - они в однушках Впрочем есть и классические однушки, где кухня - или меньше комнаты, или значительно меньше (комната в этом случае - подразумевается проходная) Двухкомнатные 36-65 кв.м. Здесь евродвушки с внушительной прихожей(+гардеробные). Кухни-гостиные есть изолированные, а есть и проходные На комнату остается 10-11 кв.м, санузел везде один (совмещенный) В классических двушках (а они все угловые) - кухни маловаты, в гостиной по 3-4 окна (куда ставить шкаф??), но с прихожими и гардеробными все в порядке Трехкомнатные 75-83 кв.м. Есть линейная евротрешка, с одним санузлом, кухней в тамбуре и проходной гостиной. Но есть и угловые в т.ч с внушительной (17,3 кв.м) изолированной кухней-гостиной,

ЖК Level Южнопортовая - это 14 корпусов переменной 12-69 этажности от LEVEL Group в ЮВАО, район Печатники

______

______

А мы посмотрим на квартиры, которые сейчас продаются

Студии . Их нет, при выборе на официальном сайте проекта

Однокомнатные 17-39 кв.м. Их метраж объясняет, почему нет студий - они в однушках

Впрочем есть и классические однушки, где кухня - или меньше комнаты, или значительно меньше (комната в этом случае - подразумевается проходная)

Двухкомнатные 36-65 кв.м. Здесь евродвушки с внушительной прихожей(+гардеробные). Кухни-гостиные есть изолированные, а есть и проходные

На комнату остается 10-11 кв.м, санузел везде один (совмещенный)

В классических двушках (а они все угловые) - кухни маловаты, в гостиной по 3-4 окна (куда ставить шкаф??), но с прихожими и гардеробными все в порядке

Трехкомнатные 75-83 кв.м. Есть линейная евротрешка, с одним санузлом, кухней в тамбуре и проходной гостиной. Но есть и угловые в т.ч с внушительной (17,3 кв.м) изолированной кухней-гостиной, двумя санузлами и одной из комнат (20 кв.м) с тремя окошками

Так же есть варианты с мастер-спальнями и проходными кухнями-гостиными

Четырехкомнатные 79-80 кв.м. Угловые еврочетверки с проходной-кухней-гостиной и мастер-спальней

80,5 кв.м
80,5 кв.м

Стоимость квартир в ЖК Level Южнопортовая рассмотрим на примере однушки ≈ 40 кв.м

Сейчас, в мае 2022 г. такую можно купить за 13,6-15,7 млн.руб, в зависимости от корпуса, этажа и варианта отделки

Будущие жильцы получат свои квартиры без отделки, с предчистовой или чистовой отделкой

Высота потолков (на всех этажах, кроме последнего) - 2,85 м

Вам есть что добавить? Напишите в комментариях ↓

Смотрите все обзоры на карте новостроек

Чтобы не пропускать новые обзоры подпишитесь на Телеграм или Вконтакте

Обязательно ставьте лайк здесь. Спасибо!