Добавить в корзинуПозвонить
Найти в Дзене

Потолки 4,24 метра в одноэтажном доме. Интересный проект дома

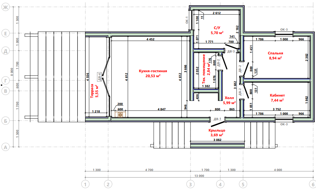
Как же сильно мы любим нестандартные проекты. Тем более когда они такие красивые) Главной комнатой в этом доме можно с уверенностью назвать гостинную. Много остекления, и, как следствие, много естественного света. Торцевая стена полностью выполнена из панорамных окон, плюс в кровле сделано дополнительное окно по центру гостинной. Конечно, перед домом есть терраса, с которой спускаются ступеньки во внутренний двор. А во дворе уже можно сделать все что угодно: детскую площадку, гриль-домик, летнюю кухню, бассейн, в конце концов)) Еще один момент - это высота потолков. В самой высокой точке высота составляет 4,24 метра. Ощущение большого пространства, много естественного света, именно это и создает уют в гостинной. Также в доме есть две комнаты, которые можно использовать как спальни, или сделать из одной из них кабинет или детскую. Техническое помещение находится в центре дома и из него удобно протянуть коммуникации к санузлу и кухне-гостиной. Объект сдали давно, но все равно поздравл

Как же сильно мы любим нестандартные проекты. Тем более когда они такие красивые)

Главной комнатой в этом доме можно с уверенностью назвать гостинную. Много остекления, и, как следствие, много естественного света. Торцевая стена полностью выполнена из панорамных окон, плюс в кровле сделано дополнительное окно по центру гостинной.

Конечно, перед домом есть терраса, с которой спускаются ступеньки во внутренний двор. А во дворе уже можно сделать все что угодно: детскую площадку, гриль-домик, летнюю кухню, бассейн, в конце концов))

-2

Еще один момент - это высота потолков. В самой высокой точке высота составляет 4,24 метра. Ощущение большого пространства, много естественного света, именно это и создает уют в гостинной.

Также в доме есть две комнаты, которые можно использовать как спальни, или сделать из одной из них кабинет или детскую.

Техническое помещение находится в центре дома и из него удобно протянуть коммуникации к санузлу и кухне-гостиной.

Объект сдали давно, но все равно поздравляем владельцев и желаем больше приятных моментов в новом доме. А в наших домах по-другому и не бывает)

-4

Ну как? Есть среди вас любители нестандартной архитектуры? Нравится проект?