Добавить в корзинуПозвонить
Найти в Дзене

Модульные дома FL Haus. Новые планировки - все для вашего удобства!

Мы занимаемся производством модульных домов уже более 7-и лет, все время совершенствуемся и ищем новые решения для нашего продукта. Недавно мы запустили новую линейку домов FL Next. Модель FL 77 стала наиболее востребованной и мы решили создать ещё больше вариантов планировок для вашего удобства. Мы старались сделать максимально вариативно, собрали самые функциональные и комфортные варианты, планировок получилось целых 9! Ниже представлены несколько из них со всеми вариантами можно ознакомиться на нашем сайте по ссылке: Теперь вы можете выбрать дом с гардеробной, сауной, техническим помещением, вариантов много! Полезная площадь дома - 77 м² Площадь веранды - 27 м² Высота потолков - 2.1-3,05м (отличительная черта FL Next) Также есть возможность сделать дополнительные террасы в разных вариациях. Полный список доп. опций и более подробная информация о проектах есть на нашем сайте Смотрите, выбирайтесь оценивайте! • Чтобы ознакомиться с нашими проектами вы всегда можете посетить наш в

Мы занимаемся производством модульных домов уже более 7-и лет, все время совершенствуемся и ищем новые решения для нашего продукта.

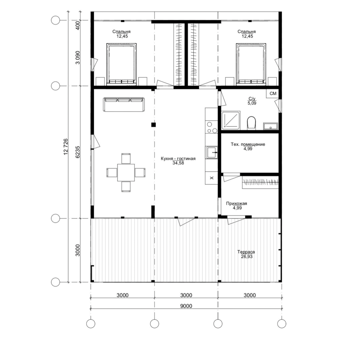
Недавно мы запустили новую линейку домов FL Next. Модель FL 77 стала наиболее востребованной и мы решили создать ещё больше вариантов планировок для вашего удобства.

Мы старались сделать максимально вариативно, собрали самые функциональные и комфортные варианты, планировок получилось целых 9!

Ниже представлены несколько из них со всеми вариантами можно ознакомиться на нашем сайте по ссылке:

Модульный дом 77 м2

-2

Теперь вы можете выбрать дом с гардеробной, сауной, техническим помещением, вариантов много!

-3
-4

Полезная площадь дома - 77 м²

Площадь веранды - 27 м²

Высота потолков - 2.1-3,05м (отличительная черта FL Next)

Также есть возможность сделать дополнительные террасы в разных вариациях. Полный список доп. опций и более подробная информация о проектах есть на нашем сайте

Смотрите, выбирайтесь оценивайте!

• Чтобы ознакомиться с нашими проектами вы всегда можете посетить наш выставочный дом по адресу: 

Санкт-Петербург, Коломяги, 1-я Полевая 25А, предварительно записавшись по телефону:

8 (812) 660 - 58 - 49

На нашем сайте https://fl-haus.ru вы найдете все доступные варианты планировок, цены и всю необходимую информацию о домах нашего производства.

#модульный дом

#одноэтажный дом

#проект дома

#загородный дом

#строительство дома

#проект одноэтажного дома