Найти в Дзене

Проект каркасного дома КД-81

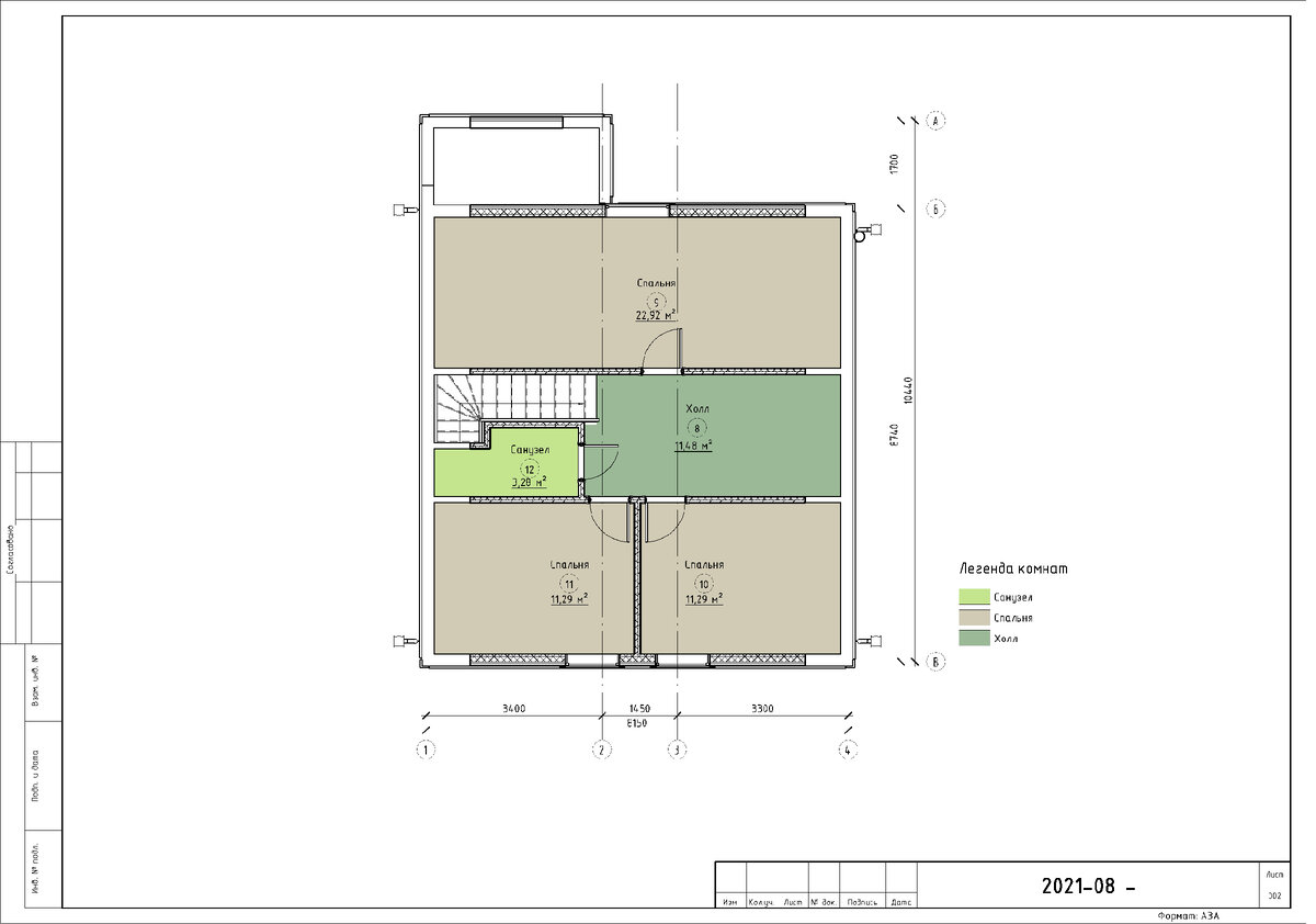
Проект каркасного дома КД-81​ Габариты дома 8,1х10,4 м. Общая площадь 128,7 кв.м. Площадь застройки 77 кв.м. Высота 1 этажа по каркасу 2,58 м. Высота 2 этажа по каркасу 0,425 - 2,59 м. Проект КД-81, это каркасный дом с мансардой. В доме располагаются - 4 спальни, 2 санузла, кухня и гостиная. Друзья, подробный проект для сборки этого дома вы можете найти по ссылке в моём магазине ВКонтакте. Моя группа в ВК https://vk.com/karkas_dom_proekt Если интересна тематика каркасных домов, не забудьте подписаться на канал, поставить лайк и оставить свой комментарий к записи, это помогает мне в продвижении канала. С уважением, Дмитрий.

Проект каркасного дома КД-81

Габариты дома 8,1х10,4 м.

Общая площадь 128,7 кв.м.

Площадь застройки 77 кв.м.

Высота 1 этажа по каркасу 2,58 м.

Высота 2 этажа по каркасу 0,425 - 2,59 м.

Проект КД-81, это каркасный дом с мансардой. В доме располагаются - 4 спальни, 2 санузла, кухня и гостиная.

-2

Друзья, подробный проект для сборки этого дома вы можете найти по ссылке в моём магазине ВКонтакте.

Моя группа в ВК https://vk.com/karkas_dom_proekt

Если интересна тематика каркасных домов, не забудьте подписаться на канал, поставить лайк и оставить свой комментарий к записи, это помогает мне в продвижении канала.

С уважением, Дмитрий.