Найти в Дзене

Объединение квартир?? #2 (сложные случаи:панельные дома, несущие стены)

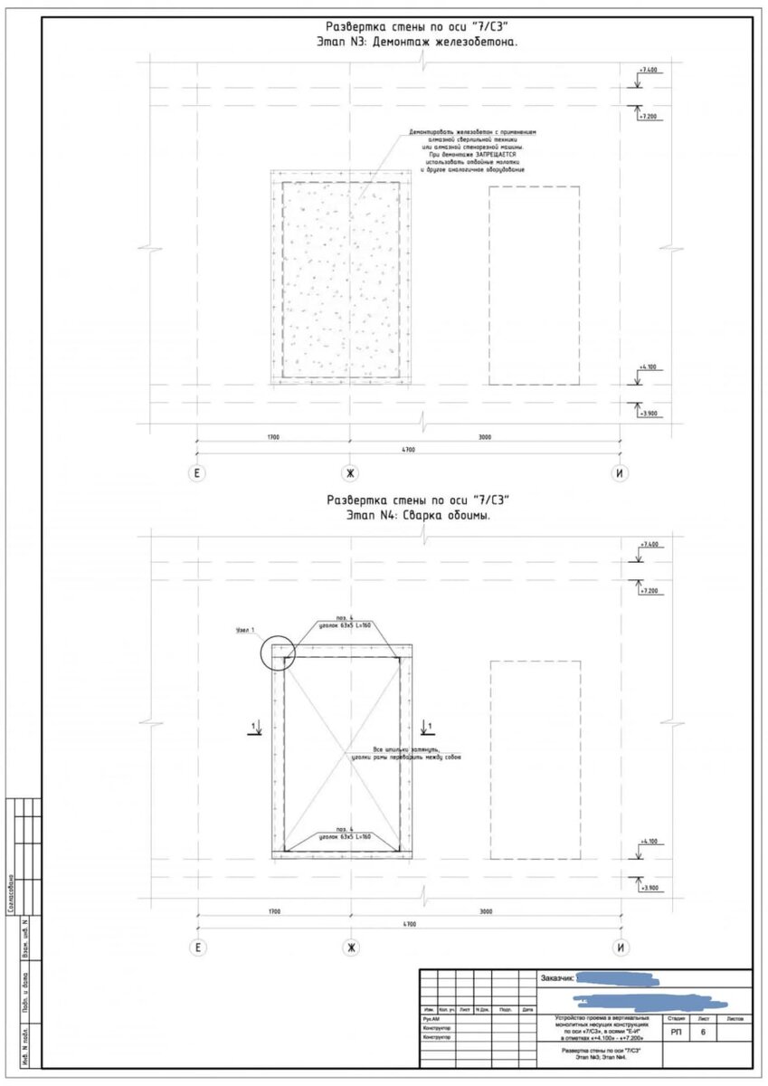
Продолжу разбор темы «объединения квартир» в рамках рубрики #bf_question для более сложных случаев. Непростая ситуация, если необходимо выполнить объединение квартир в панельном доме или стена, в которой нужно будет сделать проём, является несущей. В этом случае необходимо будет обратиться в проектную организацию с допуском в СРО, чтобы они разработали проект перепланировки с указанием проёма и расчетом его усиления. Будет иметь значение материал несущих стен, этаж, этажность дома и удаление проёма от других несущих конструкций. Например, в панельном доме, расстояние от нового проема до края стеновой панели, либо существующего проектного проема, должно быть не менее 1 метра. Также, чем выше этаж объекта, тем больше шансов согласовать проём, т.к. нагрузка будет меньше. В качестве усиления может выступать металлическая рама «П»-образная рама из угла, с опиранием на пластины. При необходимости инженер может дополнительно усилить всю стеновую панель, добавить дополнительное армиров
Оглавление

Продолжу разбор темы «объединения квартир» в рамках рубрики #bf_question для более сложных случаев.

Непростая ситуация, если необходимо выполнить объединение квартир в панельном доме или стена, в которой нужно будет сделать проём, является несущей.

В этом случае необходимо будет обратиться в проектную организацию с допуском в СРО, чтобы они разработали проект перепланировки с указанием проёма и расчетом его усиления.

Будет иметь значение материал несущих стен, этаж, этажность дома и удаление проёма от других несущих конструкций.

Например, в панельном доме, расстояние от нового проема до края стеновой панели, либо существующего проектного проема, должно быть не менее 1 метра.

Также, чем выше этаж объекта, тем больше шансов согласовать проём, т.к. нагрузка будет меньше.

В качестве усиления может выступать металлическая рама «П»-образная рама из угла, с опиранием на пластины. При необходимости инженер может дополнительно усилить всю стеновую панель, добавить дополнительное армирование.

-2

Далее необходимо будет сдать документы на согласование в инспекцию и получить разрешение на проведение работ.

Выполняя ремонт, необходимо будет подписывать акты скрытых работ, иначе доказать, что проем выполнен по проектной технологии и правильно усилен металлоконструкциями, в будущем будет очень сложно.

Весь процесс непростой и небыстрый, но нужно подойти к этому вопросу ответственно, т.к. внесение изменений в несущую конструкцию является значительной перепланировкой.

Даже если вы уверены в своей строительной бригаде, что они всё сделают надёжно и качественно, без согласования и разрешительных документов могут возникнуть проблемы в будущем.