Найти в Дзене

АВТОРСКИЙ НАДЗОР при ремонте квартиры — ЧТО ЭТО?

Чтобы ремонт квартиры был идеальным, нужно постоянно контролировать каждый этап. Если у вас нет времени или желания заниматься детальным изучением материалов, их возможной заменой и регулярными выездами на объект, услуга «авторский надзор» — именно то, что вам нужно. Оглавление 1 Что такое авторский надзор ремонта? 2 Зачем нужен дизайн-проект? 3 Что нужно обязательно включить в дизайн-проект? 4 Как дизайнер работает на объекте? 5 Можно ли справиться без специалиста? 6 Реальные примеры дизайн-проектов для клиентов Гудвилл-Строй Что такое авторский надзор ремонта? Это услуга от дизайнера, которая сопровождает ход ремонтных работ. Специалист контролирует процесс, следит за тем, чтобы итог ремонта соответствовал дизайн-проекту и пожеланиям заказчика, консультирует строителей, избавляя их от возможной ошибки, а также решает вопросы, связанные с комплектацией объекта. Зачем это нужно? Во время любого ремонта, а тем более, капитального, могут возникнуть и внезапные проблемы. Например, у поста
Оглавление

Чтобы ремонт квартиры был идеальным, нужно постоянно контролировать каждый этап. Если у вас нет времени или желания заниматься детальным изучением материалов, их возможной заменой и регулярными выездами на объект, услуга «авторский надзор» — именно то, что вам нужно.

Оглавление

1 Что такое авторский надзор ремонта?

2 Зачем нужен дизайн-проект?

3 Что нужно обязательно включить в дизайн-проект?

4 Как дизайнер работает на объекте?

5 Можно ли справиться без специалиста?

6 Реальные примеры дизайн-проектов для клиентов Гудвилл-Строй

Что такое авторский надзор ремонта?

Это услуга от дизайнера, которая сопровождает ход ремонтных работ. Специалист контролирует процесс, следит за тем, чтобы итог ремонта соответствовал дизайн-проекту и пожеланиям заказчика, консультирует строителей, избавляя их от возможной ошибки, а также решает вопросы, связанные с комплектацией объекта.

Зачем это нужно?

Во время любого ремонта, а тем более, капитального, могут возникнуть и внезапные проблемы. Например, у поставщика не оказалось краски нужного оттенка → строители выбрали другую на свой вкус → визуальная концепция всего помещения была непоправимо нарушена. Даже если изменения согласовали с вами, результат может кардинально отличаться от ожидаемого. А теперь представьте, если вам придется согласовывать сотню таких корректировок.

Другой пример, во время ремонта квартиры без авторского надзора обнаружились проблемы с геометрией помещения → бригада решила проблему на свое усмотрение → вы получили комнату другого размера, которую невозможно обустроить из-за измененных параметров.

Для решения именно таких проблем и нужен авторский надзор от дизайнера интерьера. Профессионал сэкономит ваше время, избавит от регулярного общения со строителями и поставщиками, а главное — сохранит ваш бюджет, избавив от ошибок и их исправления в будущем.

Чтобы узнать больше о стоимости работы дизайнера по данной услуге, переходите на наш сайт. 

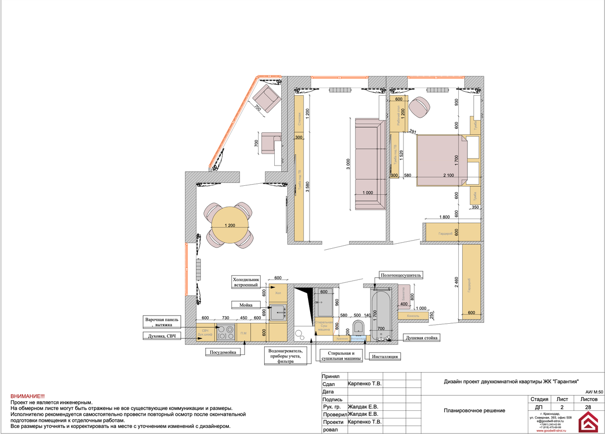
План расстановки мебели в квартире в ЖК Гарантия
План расстановки мебели в квартире в ЖК Гарантия

Зачем нужен дизайн-проект?

Авторский надзор не может существовать отдельно от дизайн-проекта. Прочитать о том, зачем он нужен, можно в нашей статье.

В этом разделе мы расскажем, как помогает дизайн-проект на реальном примере — двухкомнатной квартиры в ЖК «Тургенев».

Квартира площадью 80 кв. метров с нестандартной планировкой: левая часть объекта имеет неправильную форму, напоминающую треугольник, а правая сторона выполнена в виде прямоугольника. При этом мы получили четкие пожелания от заказчиков: в квартире должны расположиться спальная комната, большая ванная, кухня-гостиная открытого типа и гардеробная система хранения. Учитывая эти факторы, наш дизайнер приступил к разработке детального проекта.

– В правой прямоугольной части квартиры мы разместили спальню и ванную комнату.

– В прихожей выделили место для полноценного гардероба с системой хранения в виде распашного шкафа.

– В левой части квартиры расположили островную кухню с обеденным столом и ТВ-зоной.

-5

При этом каждый этап строительства, начиная от демонтажа и возведения новых перегородок до полной визуализации, отражался в технической документации. Благодаря дизайн-проекту, мы смогли расположить все зоны, о которых просили заказчики.

-6

Что нужно обязательно включить в дизайн-проект?

Важная часть дизайн-проекта и ключевая задача авторского надзора — комплектация объекта. Для этого дизайнер подбирает отделочные материалы, мебель и предметы интерьера в соответствии с вашими пожеланиями. В итоге в дизайн-проект включается отдельный раздел с ведомостью отделочных материалов, которые используются в проекте.

Дизайнер или комплектатор, кто осуществляет авторский надзор, ищет подходящие варианты, сравнивает цены и ищет самый выгодный вариант, организовывает закупку и доставку, а также вносит изменения при необходимости, чтобы в точности реализовать ваши представления об идеальной квартире.

О том, что включает в себя дизайн-проект в «Гудвилл-Строй», читайте по ссылке.

Комплектация квартиры отделочными материалами в ЖК Гарантия
Комплектация квартиры отделочными материалами в ЖК Гарантия

Как дизайнер работает на объекте?

При осуществлении авторского надзора в дизайне квартиры, дизайне должен действовать по заранее намеченному плану. Обычно в него входят:

– выезд дизайнера на объект — в нашей компании эксперт выезжает на объект 1 раз в неделю, в других строительных компаниях количество выездов может быть разной. Главное, чтобы вся информация обязательно прописывалась в договоре.

– подбор материалов и предметов интерьера, включая закупку, надзор за графиком поставки и проверка соответствия товаров проекту (проектному плану)

– корректировка чертежей объекта после черновой отделки и проверка соответствия выполненных работ дизайн-проекту.

– коммуникация с прорабом, поставщиками и клиентом.

– консультация клиента по вопросам ремонта при необходимости.

Стоимость услуги «авторский надзор» в компании «Гудвилл-Строй» составляет 25000 рублей в месяц.

Комплектация ванной комнаты квартиры в ЖК Гарантия
Комплектация ванной комнаты квартиры в ЖК Гарантия

Можно ли справиться без специалиста?

Конечно, можно проводить авторский надзор капитального ремонта самостоятельно. Для этого следует иметь большое количество свободного времени, навыки в дизайне интерьеров, а также умение работать со строительной документацией. И это еще не всё.

Вам придется:

– внимательно изучить технический план и дизайн-проект;

– быть готовым самостоятельно решать проблемы;

– проверить технологии работ и функциональные решения, а также эргономику пространства;

– предусмотреть варианты для замены материалов и мебели;

– лично отвечать за логистику материалов и мебели.

Мы советуем отказываться от услуги только в том случае, если вы всецело доверяете своему прорабу и легко относитесь к изменениям, которые могут возникнуть в процессе работы.

Комплектация квартиры дверьми и плинтусами в ЖК Гарантия
Комплектация квартиры дверьми и плинтусами в ЖК Гарантия

Реальные примеры дизайн-проектов для клиентов Гудвилл-Строй

На большинстве объектов «Гудвилл-Строй» мы выполняем работы по нашему дизайн-проекту. В этом разделе покажем примеры design интерьера и готового результата.

После разработки дизайн-проекта мы совместно с заказчиком внесли коррективы в аксессуары: например, заменили подвесные люстры, подобрали другую мебель из-за отсутствия прежних моделей.

Чтобы узнать больше о ремонте, авторском надзоре, дизайн-проектах и других темах, подписывайтесь на наш канал, читайте статьи, например, о дизайне кухни-гостиной, и делитесь своим мнением в комментариях!

#советы и рекомендации #ремонт #авторский #надзор