Найти в Дзене
Проектная мастерская №16

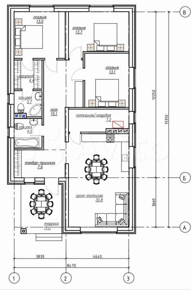
Планировка одноэтажного дома площадью 100кв.м. для узкого участка

Добрый день. Вы на канале проектной мастерской №16

Всех желающих просим посетить и подписаться на наши страницы

Официальный сайт Проектной мастерской №16

Канал Проектной мастерской №16 на Дзене

Канал Проектной мастерской №16 на Ютюбе

Страница Проектной мастерской №16 во Вконтакте

Страница Проектной мастерской №16 в Инстаграме

Страница Проектной мастерской №16 на Яндекс-бизнесе

Страница Проектной мастерской №16 на сайтах Вконтакте

Сегодня вашему вниманию одноэтажный дом площадью 100кв.м. с размерами в плане 9.5м на 16м. С учетом минимального отступа по бокам в 3м этот дом подойдет для участка шириной 16м.

-2

В доме имеются 3 спальных и 2 санузла, гостиная-кухня на 30кв.м., котельная, гардероб при мастер-спальне (спальной комнате хозяев дома), просторные крыльцо и прихожая.

Больше планировок смотрите на нашем канале.