Добавить в корзинуПозвонить
Найти в Дзене

Почему мы заказали проект ремонта: личный опыт

Всем известно, что ремонт с нуля – это малоприятное дело, занимающее абсолютно все время, мысли и нервы. Разумеется, в процессе необходимо иметь в виду массу нюансов, и это далеко не вопросы подбора ваз и ковра в спальню… Купив квартиру, мы буквально летали от радости, пархали, как бабочки, прямо как те, что у нас в животах. Предвкушение новой жизни в собственной квартире с панорамными окнами, высокими потолками и потрясающей гардеробной затмевало действительность. И вот наступил момент общения с мастером по ремонту, которому мы хотели поручить первостепенный демонтаж и монтаж перегородок. День Х настал и за 2 часа общения, идей наши розовые очки сползали с носов с каждой новой мыслью ремонтника… И дело было даже не в его экстравагантных идеях, а в фактах, о которых мы как-то и не подумали. Мы-то думали, что заранее продумали все детали, проект почти сложился в голове и надо было выяснить лишь пару деталей, но реальность ударила по нашим щекам довольно резко и дерзко. Сразу хотим преду

Всем известно, что ремонт с нуля – это малоприятное дело, занимающее абсолютно все время, мысли и нервы. Разумеется, в процессе необходимо иметь в виду массу нюансов, и это далеко не вопросы подбора ваз и ковра в спальню…

Купив квартиру, мы буквально летали от радости, пархали, как бабочки, прямо как те, что у нас в животах. Предвкушение новой жизни в собственной квартире с панорамными окнами, высокими потолками и потрясающей гардеробной затмевало действительность. И вот наступил момент общения с мастером по ремонту, которому мы хотели поручить первостепенный демонтаж и монтаж перегородок.

День Х настал и за 2 часа общения, идей наши розовые очки сползали с носов с каждой новой мыслью ремонтника… И дело было даже не в его экстравагантных идеях, а в фактах, о которых мы как-то и не подумали.

Технический дизайн-проект квартиры
Технический дизайн-проект квартиры

Мы-то думали, что заранее продумали все детали, проект почти сложился в голове и надо было выяснить лишь пару деталей, но реальность ударила по нашим щекам довольно резко и дерзко. Сразу хотим предупредить: если вы планируете ремонт с нуля и вам нужно сколько-нибудь переносить розетки, делать новую проводку или возводить короба в ванной комнате, то вам просто НЕОБХОДИМ проект…

Читайте еще наши статьи

Главная бьюти-процедура за день: почему вам нужно заменить хлопковую наволочку на шелковую!
Ретро интерьеры: самые стильные черно-белые кино-дома
Как сделать кухню дороже без лишних трат?
"По статистике каждый пятый посетитель читал другие наши статьи" Ремэлль

Ни один адекватные ремонтник – частный или в строительной компании – не возьмется за вашу квартиру без плана. Ну а если вам кто-то сказал, чтобы вы лишь указали пальцем на место для розетки и «будет сделано в лучшем виде», ждите проблем с подключением, отключением электричества, непонятному расположению розеток относительно мебели и углов, а еще тотальному разочарованию в самих себе.

Наш опыт – хорошо – оказался не таким печальным, ведь мы вовремя осознали необходимость технического проекта ремонта. В какой-то момент пришло осознание, что всю необходимую информацию в голове удержать просто нереально, а для качественного ремонта для будущей жизни нужен четкий план с чертежами и расчетами.

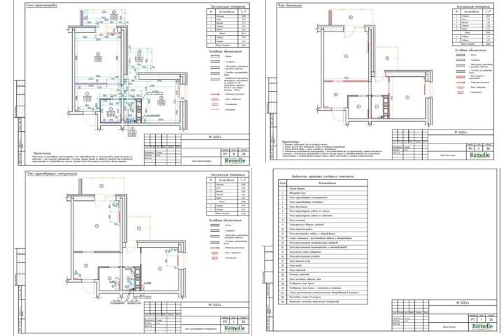
Планы в рамках проекта, которые вы получаете
Планы в рамках проекта, которые вы получаете

Вам вряд ли надо напоминать, что уют в квартире зависит от массы деталей и нюансов, но продумать все это самостоятельно, не имея опыта в соответствующей сфере деятельности – невозможно и бессмысленно. Посудите сами, ведь самый ценный ресурс у нас – это время, а на указывание пальцем мест под розетки, диван, кровать, шкаф или стиральную машину – гиблое дело, заранее обреченное на провал.

Мы осознали, что не должны и не хотим заниматься этой пустой работой, чтобы потом случайно потратить еще больше денег, превысив бюджет, да еще и значительно увеличить время на работы.

План электрики квартиры
План электрики квартиры

Да, деньги и тут играют крайне серьезную роль, ведь самостоятельный ремонт – это большие финансовые риски, но они серьезно повышаются без конкретного проекта работ, составленного заранее.

Многие считают, что смогут и сами спланировать пространство, учесть все и нет смысла тратить на проект от профессионала большие деньги. К слову, стоимость нашего проекта не такая уж и высокая. Мы отдали примерно 750 рублей за квадратный метр, а получили толстенную папку или даже книгу, с тоннами чертежей, вариантами планировки, разметкой розеток и выключателей, сантехникой, освещением и еще кучей деталей.

Однозначно, цена оправдана тем, что с проектом вы получаете еще и точную смету по количеству строительных материалов, отделочных работ. Вы приезжаете в магазин и покупаете ровно столько, сколько нужно и не тратите ни одного лишнего рубля! Разве можно рассчитывать на что-то подобное, когда держишь в голове столько информации самостоятельно?

Преимущество наличия проекта – это, в первую очередь, продуманная эргономика помещений, удобство пользования каждым сантиметром будущего жилища, экономия средств на работы и материалы. Последнее, о чем хочется сказать: главная разница в подходе к ремонту между наличием проекта и без него в очередности. Ремонт без проекта начинается не с того – с электрики и штукатурки, а заканчивается мебелью. А по проекту ремонт начинается с мебели, а электрикой и штукатуркой только заканчивается…

Знаете, в чем разница? С проектом вы точно понимаете, где и какая тумбочка стоит, а значит, любые ремонтные работы будут это учитывать. Ну а без проекта вы делаете работы заведомо без учета итоговой картинки действительности. Поймите, это того стоит!

Надеемся, что наш пример послужит вам добрую службу и поможет понять необходимость дизайн-проекта от профессионалов своего дела.

20.02.2022 ♥ Ремэлль. Подписывайтесь и оставайтесь с нами.