Найти в Дзене

Дайджест новостей по девелоперским проектам. Часть 3.

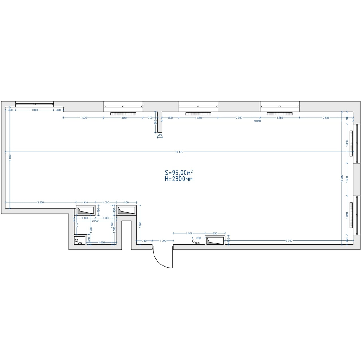
ЖК «Нормандия». Два апартамента, общей площадью 190 м2 - 10 студий. Жилой комплекс «Нормандия» - известный среди инвесторов в доходные студии ЖК, как минимум потому, что не так уж много подобных проектов было сдано в эксплуатацию в 21-м году. Мы всегда понимали, что там будет существенная конкуренция в посуточной аренде. Хорошая цена. Удачные планировки. Совокупность факторов неизбежно приведёт к высокой концентрации студий, а значит и к демпингу цен. Всё это раз за разом приводило нас к негативным оценкам перспектив работы в этой локации. Тем более, что транспортную доступность ЖК никак нельзя назвать идеальной. Что же заставило нас принять решение о покупке именно этих объектов? 1. Проект девелоперский. Наша цель перепродажа. Мы не будем участвовать в конкуренции по посуточной аренде. Для жизни ЖК действительно отличный. 2. Сумма одобренной ипотеки позволяла купить более чем один объект при условии одного собственника. 3. Покупка сразу нескольких крупных апартаментов напрямую

ЖК «Нормандия». Два апартамента, общей площадью 190 м2 - 10 студий.

Жилой комплекс «Нормандия» - известный среди инвесторов в доходные студии ЖК, как минимум потому, что не так уж много подобных проектов было сдано в эксплуатацию в 21-м году.

Мы всегда понимали, что там будет существенная конкуренция в посуточной аренде. Хорошая цена. Удачные планировки. Совокупность факторов неизбежно приведёт к высокой концентрации студий, а значит и к демпингу цен. Всё это раз за разом приводило нас к негативным оценкам перспектив работы в этой локации. Тем более, что транспортную доступность ЖК никак нельзя назвать идеальной.

Что же заставило нас принять решение о покупке именно этих объектов?

1. Проект девелоперский. Наша цель перепродажа. Мы не будем участвовать в конкуренции по посуточной аренде. Для жизни ЖК действительно отличный.

2. Сумма одобренной ипотеки позволяла купить более чем один объект при условии одного собственника.

3. Покупка сразу нескольких крупных апартаментов напрямую у застройщика позволила договориться о существенной скидке.

4. Два одинаковых апартамента позволит существенно сэкономить на проектных работах.

5. Наша цель – раскадастрирование помещений. Мало кто так делает. Если мы будем продавать студии как готовые бизнесы, наличие подобных объектов от конкурентов будет скорее выгодно показывать, что здесь есть успешные объекты. При этом предложения о продаже одной отдельной студии будут встречаться крайне редко, что сделает наше условия ещё более привлекательными.

6. Студии большие, а ЖК совсем новый. Здесь отлично сработает долгосрочная аренда.

7. Эталон активно застраивают этот участок. Новые корпуса жилого комплекса будут вводиться в эксплуатацию один за другим. Это подстегнёт стоимость квадратного метра.

8. Наличие недостроенных корпусов на грани введения в эксплуатацию говорит о том, что впереди ещё не один раунд активных продаж. Застройщик будет вкладываться в рекламу своего ЖК. Весь этот маркетинг, фактически, работает на нас.

-2