Найти в Дзене
INMYROOM

Яркая квартира для семьи фотографа в Тамбове

Вкратце Дизайнер Татьяна Бакланова оформила один из самых ярких и нестандартных интерьеров в своей карьере. Заказчица — профессиональный фотограф, она попросила преобразить квартиру в новостройке в яркую фотозону с эффектным интерьером и акцентами. Подробности Требования по функционалу были во многом стандартными — спланировать три спальни, две гардеробные и два санузла. Квартира расположена в новом жилом комплексе в северной части Тамбова. В результате перепланировки получились просторная кухня-гостиная, спальня для родителей и две детские. Гостиная в квартире выкрашена в глубокие бежевые цвета, использовалась антивандальная краска. В дальнейшем стены планируется дополнить и украсить примерами работ хозяйки — это позволит сделать квартиру еще более уютной и индивидуальной. Рабочее место с компьютерным столом разместили в мастер-спальне родителей, а за счет сноса нескольких перегородок в квартире получилось сделать две функциональные гардеробные и много систем хранения.
Оглавление

Вкратце

Дизайнер Татьяна Бакланова оформила один из самых ярких и нестандартных интерьеров в своей карьере. Заказчица — профессиональный фотограф, она попросила преобразить квартиру в новостройке в яркую фотозону с эффектным интерьером и акцентами.

 📷
📷

Подробности

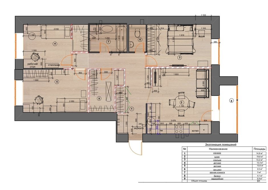
Требования по функционалу были во многом стандартными — спланировать три спальни, две гардеробные и два санузла. Квартира расположена в новом жилом комплексе в северной части Тамбова. В результате перепланировки получились просторная кухня-гостиная, спальня для родителей и две детские.

 📷
📷

 📷
📷

 📷
📷

Гостиная в квартире выкрашена в глубокие бежевые цвета, использовалась антивандальная краска. В дальнейшем стены планируется дополнить и украсить примерами работ хозяйки — это позволит сделать квартиру еще более уютной и индивидуальной.

 📷
📷

 📷
📷

Рабочее место с компьютерным столом разместили в мастер-спальне родителей, а за счет сноса нескольких перегородок в квартире получилось сделать две функциональные гардеробные и много систем хранения.

 📷
📷

 📷
📷

 📷
📷

Вся мебель выполнена на заказ и по индивидуальным эскизам дизайнера. Гардеробную старались сделать максимально просторной и функциональной, но в целом это самая экономически незатратная комната. Самым любимым элементом в квартире для дизайнера стал зеленый шкаф в спальне.

 📷
📷

 📷
📷

 📷
📷

«Уникальная особенность детской — магнитные фотообои. На стене смонтирована особая магнитная основа, к которой крепятся обои. Это очень удобно: позволяет менять обстановку в комнате так часто, как это потребуется. С такими обоями это так же просто, как прикрепить новый магнитик на холодильник», — рассказывает дизайнер.

Больше фото тут:

Яркая квартира для семьи фотографа в Тамбове