Найти в Дзене
INMYROOM

Потрясающий двухэтажный микролофт 25 м²

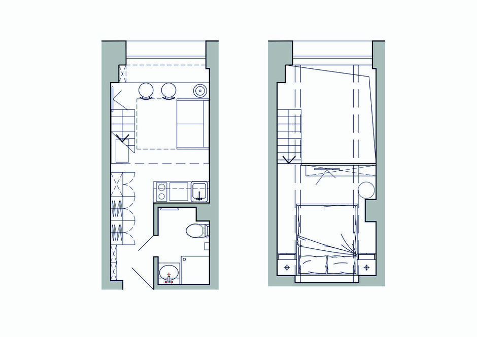
Вкратце Студия находится в здании бывшего монтажного техникума в Москве, построенном в 1970 году. Ранее здесь располагались офисы, учебный комбинат, а сейчас его превратили в жилой комплекс. В работу Роману Капёнкину досталась студия площадью 25 кв. м. Дизайнер разместил в ней мини-кухню, обеденную и рабочую зоны, спальню и даже гостевое спальное место. А в санузле на 3 кв. м установил не только душ и раковину, но и стиральную машину. Подробности Квартира была куплена с ремонтом. В санузле от застройщика были расположены унитаз, душ и раковина, раковину поставили новую, на том же месте. Антресоль на второй уровень и лестница на нее уже были, их оставили без изменений. Основное пространство первого этажа разделено на зоны: кухня-ниша под антресолью, в центре раскладной диван и ТВ, у окна барная стойка, она же может служить рабочим столом. На антресоли расположили двуспальную кровать, она находится между двух потолочных балок, тем самым над головой больше высоты потолка. Рабочая зона
Оглавление

Вкратце

Студия находится в здании бывшего монтажного техникума в Москве, построенном в 1970 году. Ранее здесь располагались офисы, учебный комбинат, а сейчас его превратили в жилой комплекс. В работу Роману Капёнкину досталась студия площадью 25 кв. м. Дизайнер разместил в ней мини-кухню, обеденную и рабочую зоны, спальню и даже гостевое спальное место. А в санузле на 3 кв. м установил не только душ и раковину, но и стиральную машину.

 📷
📷

Подробности

Квартира была куплена с ремонтом. В санузле от застройщика были расположены унитаз, душ и раковина, раковину поставили новую, на том же месте. Антресоль на второй уровень и лестница на нее уже были, их оставили без изменений.

Основное пространство первого этажа разделено на зоны: кухня-ниша под антресолью, в центре раскладной диван и ТВ, у окна барная стойка, она же может служить рабочим столом. На антресоли расположили двуспальную кровать, она находится между двух потолочных балок, тем самым над головой больше высоты потолка.

 📷
📷

Рабочая зона ограничена габаритами ниши, в которой разместилась кухня. На рабочей поверхности расположена раковина и двухкомфорочная плита, есть свободное место для готовки. В нижнем уровне — холодильник и ящики для хранения. В верхнем уровне — полки и сушилка для посуды, в будущем там планируется разместить микроволновую печь.

 📷
📷

Графика плитки на фартуке перекликается с графикой металлического ограждения на антресоли.

 📷
📷

Бюджет был ограничен — около 500 тысяч рублей — и в качестве декоративного приема выбрали колор-блок — игра яркими цветами и создание из них геометрической композиции. Часть отделки от застройщика сохранили. Потолочные балки никак не декорированы, они напоминают о прошлом самого здания и его истории. Яркие принты на постерах как неотъемлемая часть стиля мемфис дополняют и перекликаются с основными цветами интерьера.

 📷
📷

 📷
📷

Цветом выделили зону кухни, которая переходит оранжевым цветовым акцентом в мягкую зону с ТВ, ярким чернильно-синим обрамлением подчеркнуто большое окно с барной стойкой. К контрастным цветовым пятнам выбрали нежно-розовый оттенок для одной из стен, переходящей с первого на второй уровень.

 📷
📷

 📷
📷

Из интересных деталей: антикварная «Ригонда» с ретро-пластинками. У дивана и на антресоли яркими акцентами являются картины Ольги Папшевой, саратовской художницы.

Больше фото тут:

Потрясающий двухэтажный микролофт 25 м²